MEIN ERGEBNIS ANPASSEN

Schöne 3-Zimmer Neubauwohnung mit Balkon in Nähe Bahnhof Penzing - Objektnr. 5646675

1140
Ort
€ 1.149,00
Gesamtkosten
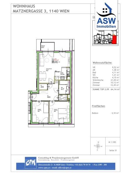
64,00 m²
Fläche
3.0
Zimmer

ECKDATEN
FindMyHome.at // Externe Immobilien-ID5646675 // 11864
ImmobilienartWohnung - Miete
AnschriftMatznergasse
1140 Wien
Baujahr2011
Stock2
Mietdauer3
Fläche64,00 m²
Zimmer3.0
Bad1
WC1
Kaution:€ 4.596,00
Brutto-Miete:€ 1.149,00
Betriebskosten (inkl. MwSt):€ 189,68
Mehrwertsteuer:€ 17,24
Monatliche Gesamtkosten:€ 1.149,00
Provision: Gemäß Erstauftraggeberprinzip bezahlt der Abgeber die Provision.




BESCHREIBUNG

Schöne 3-Zimmer Neubauwohnung mit Balkon in Nähe Bahnhof Penzing

 

- 3 Zimmer und 3m² Balkon
- Komplettküche mit E-Geräten
- Exklusive Ausstattung mit Parkettböden, exquisites Badezimmer, etc.
- Garagenplatz im Haus möglich
- Sehr gute Infrastruktur (Schnellbahn, Bus, Einkaufsmöglichkeiten)


Lassen auch Sie sich von dieser Neubauwohnung überzeugen und vereinbaren Sie einen unverbindlichen Beratungs- und Besichtigungstermin per E-Mail unter office@aswimmo.at

 

Der Immobilienmakler erklärt, dass er entgegen dem in der Immobilienwirtschaft üblichen Geschäftsgebrauch des Doppelmaklers einseitig nur für den Vermieter tätig ist.


Infrastruktur / Entfernungen

Gesundheit
Arzt <250m
Apotheke <500m
Klinik <750m
Krankenhaus <1.250m

Kinder & Schulen
Schule <500m
Kindergarten <250m
Universität <1.000m
Höhere Schule <2.000m

Nahversorgung
Supermarkt <500m
Bäckerei <500m
Einkaufszentrum <1.500m

Sonstige
Geldautomat <500m
Bank <500m
Post <1.000m
Polizei <500m

Verkehr
Bus <250m
U-Bahn <750m
Straßenbahn <250m
Bahnhof <250m
Autobahnanschluss <4.250m

Angaben Entfernung Luftlinie / Quelle: OpenStreetMap

Provision: Gemäß Erstauftraggeberprinzip bezahlt der Abgeber die Provision.


Alle Details anzeigen

KONTAKT






 

Lasse dich kostenlos vom Anbieter dieser Immobilie zurückrufen.







 


 
ASW Immobilien Service & Consulting GmbH
ASW Immobilien Service & Consulting GmbH Firmensitz Wien
Telefonnummer anzeigen Telefon Allgemein: +43732272802100
 
Bitte dem Makler die FindMyHome.at - ID bekanntgeben: 5646675

Bewertungen dieses Anbieters
Qualitätsmakler
Qualitätsmakler:
2017, 2018, 2020, 2023,
Netiquette
Freundlichkeit

BEWERTUNGEN DIESES ANBIETERS

 
Qualit�tsmakler
Qualitätsmakler
2017, 2018, 2020, 22/23
Freundlichkeit
BESONDERS
FREUNDLICH
Netiquette
FINDMYHOME
NETIQUETTE
Auch du kannst bewerten! 7 Tage nach deiner Anfrage erhältst du dafür von uns ein Bewertungsmail.
Alle Infos zu unseren Auszeichnungen und dem FINDMYHOME.AT Qualitätsprogramm findest du hier: Übersicht anzeigen


Du willst wissen, wie viel dein Umzug kosten wird?

Mach gleich den kostenlosen Preisvergleich und schau, welche seriösen Anbieter in deiner Region günstig deinen Umzug organisieren


ZUM UMZUGS-VERGLEICH
-->

MYHOME BLOG
SuchAgentin auf FindMyHome.at
Unterschiedlichen Rechtsthemen, köstliche Rezepte, neueste Design-Highlights, sowie aktuelle Technik-Tools für Ihr Eigenheim.


FINDMYHOME.AT SUCHAGENTIN
SuchAgentin auf FindMyHome.at
Hallo, soll ich dir ähnliche Immobilien kostenfrei per E-Mail schicken?


ÄHNLICHE IMMOBILIEN
Aehnliche Immobilie - Vorschaubild 1

Top gepflegte Mietwohnung mit WG-Eignung gegenüber Bahnhof H... - Objektnr. 5632029

66,00 m² - 3.0 Zimmer
1120 €
PLZ: 1140

Mehr anzeigen

Durch die Nutzung unserer Seite erklären Sie sich mit der Verwendung von Cookies zur Verbesserung Ihres Online-Erlebnisses einverstanden. Detaillierte Informationen zu diesem und weiteren Themen erhalten Sie in unserer Datenschutzerklärung.