MEIN ERGEBNIS ANPASSEN

#SQ - 2 ZIMMER ERSTBEZUG - STILVOLLER ALTBAU MIT IDEALEM GRUNDRISS IN RUHIGER LAGE - Objektnr. 5646670

  • Die Möblierung wurde mittels KI generiert
  • Die Möblierung wurde mittels KI generiert
  • Die Möblierung wurde mittels KI generiert
  • Die Möblierung wurde mittels KI generiert
  • Die Möblierung wurde mittels KI generiert
  • Die Möblierung wurde mittels KI generiert
1170
Ort
40,50 m²
Fläche
2.0
Zimmer

ECKDATEN
FindMyHome.at // Externe Immobilien-ID5646670 // 21470
ImmobilienartEigentum
Anschrift1170 Wien,Hernals
Baujahr1900
Fläche40,50 m²
Zimmer2.0
Bad1
WC1
Kaufpreis:€ 213.750,00
Ratenzahlung:Finanzierungsmöglichkeiten für diese Immobilie anzeigen
Provision: 3% zzgl. 20 USt.







BESCHREIBUNG

#SQ - 2 ZIMMER ERSTBEZUG - STILVOLLER ALTBAU MIT IDEALEM GRUNDRISS IN RUHIGER LAGE

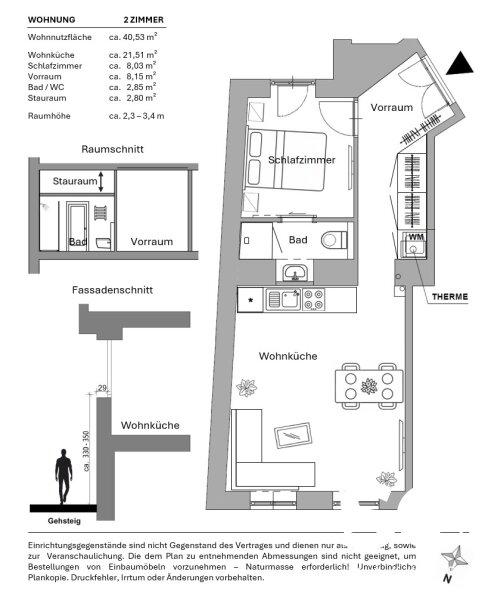
In einer ruhigen und zugleich trendigen Wohnlage des 16. Bezirks befindet sich diese außergewöhnlich gut geschnittene Altbauwohnung mit ca. 40,5 m² Wohnfläche. Sie liegt uneinsichtig im Hochparterre (Niveau 1. OG) eines gepflegten Hauses aus der Jahrhundertwende und überzeugt durch eine seltene Kombination aus Altbauflair, modernem Wohnkomfort und durchdachter Raumplanung.

Gerade im Altbau sind stimmige Grundrisse und zeitgemäße Ausstattung keine Selbstverständlichkeit hier wurde beides auf höchstem Niveau vereint. Die lichte Raumhöhe von ca. 3,40 m in allen Aufenthaltsräumen, große Fensterflächen und ein französischer Balkon mit Blick in den absolut ruhigen, begrünten Innenhof schaffen ein offenes, angenehmes Wohngefühl mit viel Licht und Privatsphäre.

Der hervorragende Grundriss bietet:

  • eine großzügige Wohnküche mit ausreichend Platz für Küche, Esstisch und Wohnbereich,

  • ein ruhiges Schlafzimmer zum Innenhof mit direktem Badezimmerzugang,

  • einen zusätzlichen, clever integrierten Stauraum (ca. 2,8 m²),

  • sowie einen zentralen Vorraum, der Platz für einen großzügigen Einbauschrank bietet und in dem Waschmaschine und Therme elegant verborgen werden können.

Die Wohnung wurde soeben generalsaniert und wird als hochwertiger Erstbezug angeboten. Historische Elemente wie Stuckatur treffen hier auf ein modernes Beleuchtungskonzept mit stilvollen Wandleuchten, edle Materialien und zeitloses Design.


Ausstattungs-Highlights

  • Vollständig erneuerte Elektrik und Heizung

  • Bad mit Keramiken von Villeroy & Boch und Armaturen von Hansgrohe

  • Großformatiges Feinsteinzeug

  • Edles Eichenparkett im Fischgrätmuster

  • Hochwertiges, stimmiges Wohn- und Lichtkonzept

  • Französischer Balkon mit Blick in den ruhigen Innenhof


Eckdaten

  • Wohnfläche: ca. 40,5 m²

  • Zimmer: 2

  • Baujahr: ca. 1900 Altbau

  • Zustand: Erstbezug nach Generalsanierung

  • Heizung: WOLF Gas-Etagenheizung mit Radiatoren

  • Böden: Fischgrät-Parkett & moderne Fliesen

  • Fenster: Isolier-Kunststofffenster mit Doppelverglasung

  • Sehr gute öffentliche Anbindung

  • Kaufpreis: € 213.750, -

  • Provision: 3% zzgl. 20 USt.

 

Diese Wohnung ist eine echte Rarität im Altbau-Segment: perfekter Grundriss, hochwertige Sanierung und ein Wohngefühl, das man in dieser Größe nur selten findet. Ideal für Singles, Paare oder Anleger, die urbanen Lebensstil, Qualität und das Besondere suchen.

Kontaktdaten:

Bitte kontaktieren Sie Herrn Adam Brandis direkt über das Kontaktformular oder unter +43 699 814 70 580 sowie  für weitere Fragen und Besichtigungen.

Wir freuen uns auf Ihre Anfrage!
Weitere Objekte auf www.stadtquartier.at

 

Disclaimer: Die in den Bildern dargestellten Einrichtungen sind als Vorschläge zu verstehen und wurden mit KI in die originalen Bilder eingefügt.

Wir weisen darauf hin, dass zwischen dem Vermittler und dem zu vermittelnden Dritten ein familiäres oder wirtschaftliches Naheverhältnis besteht.

Der Vermittler ist als Doppelmakler tätig.


Infrastruktur / Entfernungen

Gesundheit
Arzt <500m
Apotheke <500m
Klinik <500m
Krankenhaus <1.500m

Kinder & Schulen
Schule <500m
Kindergarten <500m
Universität <1.500m
Höhere Schule <1.000m

Nahversorgung
Supermarkt <500m
Bäckerei <500m
Einkaufszentrum <1.000m

Sonstige
Geldautomat <500m
Bank <500m
Post <500m
Polizei <500m

Verkehr
Bus <500m
U-Bahn <1.000m
Straßenbahn <500m
Bahnhof <1.000m
Autobahnanschluss <4.500m

Angaben Entfernung Luftlinie / Quelle: OpenStreetMap

Kabel/SAT/TV: JA
Provision:


Alle Details anzeigen

KONTAKT






 

Lasse dich kostenlos vom Anbieter dieser Immobilie zurückrufen.







 


 
STADTQUARTIER Home GmbH
Adam Brandis
Telefonnummer anzeigen Telefon Allgemein: +4369981470580
Handy Bearbeiter: +4369981470580
 
Bitte dem Makler die FindMyHome.at - ID bekanntgeben: 5646670

Bewertungen dieses Anbieters
Qualitätsmakler
Qualitätsmakler:
2013, 2018, 2019, 2021,
Netiquette
Freundlichkeit

BEWERTUNGEN DIESES ANBIETERS

 
Qualit�tsmakler
Qualitätsmakler
2013, 2018, 2019, 2021
Freundlichkeit
BESONDERS
FREUNDLICH
Netiquette
FINDMYHOME
NETIQUETTE
Auch du kannst bewerten! 7 Tage nach deiner Anfrage erhältst du dafür von uns ein Bewertungsmail.
Alle Infos zu unseren Auszeichnungen und dem FINDMYHOME.AT Qualitätsprogramm findest du hier: Übersicht anzeigen

FINANZIERUNG
?>

Du willst wissen, wie viel dein Umzug kosten wird?

Mach gleich den kostenlosen Preisvergleich und schau, welche seriösen Anbieter in deiner Region günstig deinen Umzug organisieren


ZUM UMZUGS-VERGLEICH
-->

MYHOME BLOG
SuchAgentin auf FindMyHome.at
Unterschiedlichen Rechtsthemen, köstliche Rezepte, neueste Design-Highlights, sowie aktuelle Technik-Tools für Ihr Eigenheim.


FINDMYHOME.AT SUCHAGENTIN
SuchAgentin auf FindMyHome.at
Hallo, soll ich dir ähnliche Immobilien kostenfrei per E-Mail schicken?


Durch die Nutzung unserer Seite erklären Sie sich mit der Verwendung von Cookies zur Verbesserung Ihres Online-Erlebnisses einverstanden. Detaillierte Informationen zu diesem und weiteren Themen erhalten Sie in unserer Datenschutzerklärung.