MEIN ERGEBNIS ANPASSEN

#SQ - SANIERUNGSBEDÜRFTIGER STILALTBAU MIT BALKON - MARIAHILFERSTRAßE / TOP 23 - Objektnr. 5646658

1150
Ort
70,09 m²
Fläche
2.5
Zimmer

ECKDATEN
FindMyHome.at // Externe Immobilien-ID5646658 // 21488
ImmobilienartWohnung - Eigentum
Anschrift1150 Wien
Baujahr1900
Stock2
Fläche70,09 m²
Zimmer2.5
Bad1
WC2
Kaufpreis:€ 275.000,00
Ratenzahlung:Finanzierungsmöglichkeiten für diese Immobilie anzeigen
Provision: 3 % vom KP zzgl. gesetzl. Mwst. 







BESCHREIBUNG

#SQ - SANIERUNGSBEDÜRFTIGER STILALTBAU MIT BALKON - MARIAHILFERSTRAßE / TOP 23

Zum Verkauf steht eine sanierungsbedürftige Stilaltbauwohnung in einem imposanten Haus der Jahrhundertwende in der äußeren Mariahilferstraße. Das Objekt ist komplett hof - und straßenseitig ausgerichtet und liegt im zweiten Liftstock. Das Objekt ist hell und verfügt über die klassischen Altbauelemente wie Kastenfenster, Altbautüren und eine tolle Raumhöhe. Die Liegenschaft verfügt in der Stiege 1 über einen Personenlift. Der Hof ist weitläufig und sehr schön begrünt. 

Im gesamten Gebäude werden insgesamt 14 sanierungsbedürftige Einheiten verkauft.  Zusätzlich können 3 unbefristete Wohnung erworben werden. Ebenso werden 4 leere GF Lokale als auch ein befristetes Geschäftslokal angeboten. 

Ein Beschluss zur Begrünung der gesamten äußeren Mariahilferstraße ist bereits seitens der Stadt Wien in Arbeit, und die Verknappung von 2 zu einer Fahrspur, werden diesen Teil der Stadt als besonders attraktiv machen. 

 

Eckdaten im Überblick: 

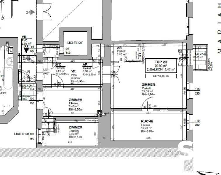
WNFL: ca. 70,09m² 
Zimmer: 2,5
Eingang
Vorraum
separates WC
SZ 
Badezimmer 
Wohnküche 
AR 

 

Kosten: 
Kaufpreis: € 275.000,-
Provision: 3 % vom KP zzgl. gesetzl. Mwst. 

 

Kontaktdaten: 

Für Fragen und Besichtigungen kontaktieren Sie bitte Frau Ines Guelmami unter 0676 40 60 310 oder unter ines.guelmami@stadtquartier.at

Weitere Objekte auf: 

www.stadtquartier.at 

Hinweis gemäß Energieausweisvorlagegesetz: Ein Energieausweis wurde vom Eigentümer bzw. Verkäufer, nach unserer Aufklärung über die generell geltende Vorlagepflicht, sowie Aufforderung zu seiner Erstellung noch nicht vorgelegt. Daher gilt zumindest eine dem Alter und der Art des Gebäudes entsprechende Gesamtenergieeffizienz als vereinbart. Wir übernehmen keinerlei Gewähr oder Haftung für die tatsächliche Energieeffizienz der angebotenen Immobilie.

Wir weisen darauf hin, dass zwischen dem Vermittler und dem zu vermittelnden Dritten ein familiäres oder wirtschaftliches Naheverhältnis besteht.

Der Vermittler ist als Doppelmakler tätig.


Infrastruktur / Entfernungen

Gesundheit
Arzt <500m
Apotheke <500m
Klinik <500m
Krankenhaus <2.000m

Kinder & Schulen
Schule <500m
Kindergarten <500m
Universität <1.000m
Höhere Schule <1.500m

Nahversorgung
Supermarkt <500m
Bäckerei <500m
Einkaufszentrum <1.000m

Sonstige
Geldautomat <500m
Bank <500m
Post <500m
Polizei <1.000m

Verkehr
Bus <500m
U-Bahn <1.000m
Straßenbahn <500m
Bahnhof <1.000m
Autobahnanschluss <4.000m

Angaben Entfernung Luftlinie / Quelle: OpenStreetMap

Provision: 3% des Kaufpreises zzgl. 20% USt.


Alle Details anzeigen

KONTAKT






 

Lasse dich kostenlos vom Anbieter dieser Immobilie zurückrufen.







 


 
STADTQUARTIER Home GmbH
Ines Guelmami
Telefonnummer anzeigen Telefon Allgemein: +436764060310
Handy Bearbeiter: +436764060310
 
Bitte dem Makler die FindMyHome.at - ID bekanntgeben: 5646658

Bewertungen dieses Anbieters
Qualitätsmakler
Qualitätsmakler:
2013, 2018, 2019, 2021,
Netiquette
Freundlichkeit

BEWERTUNGEN DIESES ANBIETERS

 
Qualit�tsmakler
Qualitätsmakler
2013, 2018, 2019, 2021
Freundlichkeit
BESONDERS
FREUNDLICH
Netiquette
FINDMYHOME
NETIQUETTE
Auch du kannst bewerten! 7 Tage nach deiner Anfrage erhältst du dafür von uns ein Bewertungsmail.
Alle Infos zu unseren Auszeichnungen und dem FINDMYHOME.AT Qualitätsprogramm findest du hier: Übersicht anzeigen

FINANZIERUNG
?>

Du willst wissen, wie viel dein Umzug kosten wird?

Mach gleich den kostenlosen Preisvergleich und schau, welche seriösen Anbieter in deiner Region günstig deinen Umzug organisieren


ZUM UMZUGS-VERGLEICH
-->

MYHOME BLOG
SuchAgentin auf FindMyHome.at
Unterschiedlichen Rechtsthemen, köstliche Rezepte, neueste Design-Highlights, sowie aktuelle Technik-Tools für Ihr Eigenheim.


FINDMYHOME.AT SUCHAGENTIN
SuchAgentin auf FindMyHome.at
Hallo, soll ich dir ähnliche Immobilien kostenfrei per E-Mail schicken?


ÄHNLICHE IMMOBILIEN
Aehnliche Immobilie - Vorschaubild 1

Helles Altbaujuwel nahe Schloss Schönbrunn ? Stadtnah & Ruhi... - Objektnr. 5546424

70,00 m² - 3 Zimmer
330000 €
PLZ: 1150

Mehr anzeigen

Aehnliche Immobilie - Vorschaubild 2

Charmante 2-Zimmer-Wohnung im Herzen des 15. Bezirks... - Objektnr. 5589970

66,00 m² - 2.0 Zimmer
264000 €
PLZ: 1150

Mehr anzeigen

Aehnliche Immobilie - Vorschaubild 3

2 Zimmer Altbauwohnung zentral gelegen nächst U6 Station Gum... - Objektnr. 5643040

57,60 m² - 2.0 Zimmer
249000 €
PLZ: 1150

Mehr anzeigen

Durch die Nutzung unserer Seite erklären Sie sich mit der Verwendung von Cookies zur Verbesserung Ihres Online-Erlebnisses einverstanden. Detaillierte Informationen zu diesem und weiteren Themen erhalten Sie in unserer Datenschutzerklärung.