MEIN ERGEBNIS ANPASSEN

Neubauwohnung als Kapitalanlage ? Nähe Lorettowiese | befristet vermietet | sofort Cashflow! - Objektnr. 5646033

virtuell besichtigen
  • Wohnzimmer 1
  • Wohnzimmer
  • Schlafzimmer
  • Küche
  • Vorraum
  • Badezimmer
  • Terrasse
  • Hausflur
  • Fahrradraum
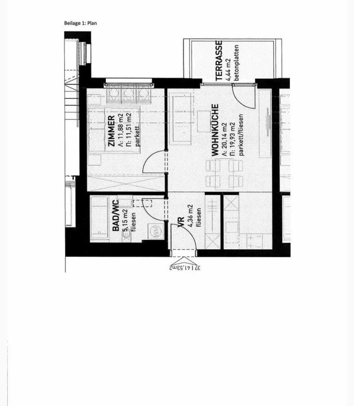
  • Grundriss
1210
Ort
41,53 m²
Fläche
2.0
Zimmer
WEITERE MEDIEN

Virtuelle Rundgänge


ECKDATEN
FindMyHome.at // Externe Immobilien-ID5646033 // 2483/22194
ImmobilienartWohnung - Eigentum
Anschrift1210 Wien
KategorieA
Baujahr2021
NäheSCN
HeizungFußbodenheizung
Stock2
Liftja
Beziehbar abnach Vereinbarung
Fläche41,53 m²
Terrassen1 (4,44 m²)
Zimmer2.0
Bad1
WC1
Kaufpreis:€ 198.000,00
Ratenzahlung:Finanzierungsmöglichkeiten für diese Immobilie anzeigen
sonstige Kosten (inkl. MwSt):€ 241,65
Provision Euro: 3.00 % exkl. MwSt.







BESCHREIBUNG

Neubauwohnung als Kapitalanlage ? Nähe Lorettowiese | befristet vermietet | sofort Cashflow!

Zum Verkauf gelangt eine moderne 2-Zimmer-Wohnung ( ca.41,53 m²) in ruhiger Lage des 21. Bezirks. Neubau 2021 mit gut durchdachtem Grundriss, hellen Räumen und einer Terrasse für zusätzlichen Wohnkomfort. Ideal als Kapitalanlage oder Eigennutzerwohnung mit mittel- bis langfristiger Planung.

WICHTIGER HINWEIS:
Die Liegenschaft befindet sich auf Baurechtsgrund (gültig bis 2118) und ist bis 30.11.2028 befristet vermietet € gesicherte Mieteinnahmen für Investoren.

Raumaufteilung:
- Wohnküche
- Separates Schlafzimmer
- Badezimmer und WC
- Vorraum
- Terrasse
- Kellerabteil

Lage:
Die Wohnung befindet sich in attraktiver Wohnlage im 21. Wiener Gemeindebezirk, in unmittelbarer Nähe zur Lorettowiese, einem beliebten Grün und Erholungsgebiet. Diese Lage bietet eine gelungene Kombination aus städtischer Infrastruktur und naturnaher Umgebung.

Die Lorettowiese lädt zu Spaziergängen, Sport und Erholung im Freien ein und erhöht die Wohn und Lebensqualität deutlich. Gleichzeitig sind Einkaufsmöglichkeiten, Schulen, Ärzte sowie öffentliche Verkehrsmittel rasch erreichbar.

? Verkehrsanbindung:
- Direkte Busverbindung über 34A
- Zusätzliche Buslinien 36A, 36B und regionale Linie 850 fußläufig erreichbar
- Straßenbahn in ~8 Min Gehweg
- Gute Anbindung an die U6 in Floridsdorf für schnellen Zugang ins Stadtzentrum


Zögern Sie nicht, uns für weitere Informationen oder eine Besichtigung zu kontaktieren.

Gerne senden wir Ihnen mehrere Informationen per E-Mail-Anfrage. Für weitere Auskünfte, oder einen Besichtigungstermin steht Ihnen gerne jederzeit Frau Lejla Guso unter der Telefonnummer +43 660 9025 119 oder per E-Mail guso@4m-immo.at zur Verfügung.

BITTE BEACHTEN SIE, DASS WIR AUFGRUND DER NACHWEISPFLICHT GEGENÜBER DEM EIGENTÜMER NUR ANFRAGEN MIT VOLLSTÄNDIGER ANGABE DER ANSCHRIFT BEARBEITEN KÖNNEN.

Irrtümer und Änderungen vorbehalten!

VERKAUFEN AUCH SIE DERZEIT IHRE IMMOBILIE?Angaben gemäß gesetzlichem Erfordernis:
Heizwärmebedarf:29.09 kWh/(m²a)Klasse Heizwärmebedarf:BFaktor Gesamtenergieeffizienz:0.78Klasse Faktor Gesamtenergieeffizienz:AKabel/SAT/TV: JA
Barrierefrei: JA
Provision Euro: 3.00 % exkl. MwSt.


Alle Details anzeigen

KONTAKT






 

Lasse dich kostenlos vom Anbieter dieser Immobilie zurückrufen.







 


 
4M Immobilien&Consulting GmbH & Co KG
Lejla Guso
Telefonnummer anzeigen Handy Bearbeiter: +436609025119
 
Bitte dem Makler die FindMyHome.at - ID bekanntgeben: 5646033

Bewertungen dieses Anbieters
Qualitätsmakler
Qualitätsmakler:
2014, 2016, 2018, 2024, 2025,
Netiquette
Freundlichkeit

BEWERTUNGEN DIESES ANBIETERS

 
Qualit�tsmakler
Qualitätsmakler
2014, 2016, 2018, 2024, 2025
Freundlichkeit
BESONDERS
FREUNDLICH
Netiquette
FINDMYHOME
NETIQUETTE
Auch du kannst bewerten! 7 Tage nach deiner Anfrage erhältst du dafür von uns ein Bewertungsmail.
Alle Infos zu unseren Auszeichnungen und dem FINDMYHOME.AT Qualitätsprogramm findest du hier: Übersicht anzeigen

FINANZIERUNG
?>

Du willst wissen, wie viel dein Umzug kosten wird?

Mach gleich den kostenlosen Preisvergleich und schau, welche seriösen Anbieter in deiner Region günstig deinen Umzug organisieren


ZUM UMZUGS-VERGLEICH
-->

MYHOME BLOG
SuchAgentin auf FindMyHome.at
Unterschiedlichen Rechtsthemen, köstliche Rezepte, neueste Design-Highlights, sowie aktuelle Technik-Tools für Ihr Eigenheim.


FINDMYHOME.AT SUCHAGENTIN
SuchAgentin auf FindMyHome.at
Hallo, soll ich dir ähnliche Immobilien kostenfrei per E-Mail schicken?


ÄHNLICHE IMMOBILIEN
Aehnliche Immobilie - Vorschaubild 1

KTG 44, Nachhaltige Architektur trifft auf urbane Lebensqual... - Objektnr. 5634029

48,74 m² - 2.0 Zimmer
235000 €
PLZ: 1210

Mehr anzeigen

Aehnliche Immobilie - Vorschaubild 2

KTG 44, Nachhaltige Architektur trifft auf urbane Lebensqual... - Objektnr. 5634036

48,73 m² - 2.0 Zimmer
235000 €
PLZ: 1210

Mehr anzeigen

Aehnliche Immobilie - Vorschaubild 3

Ruhige 2-Zimmer-Wohnung mit Gartenblick und Garagenplatz... - Objektnr. 5558289

49,00 m²
215000 €
PLZ: 1210

Mehr anzeigen

Durch die Nutzung unserer Seite erklären Sie sich mit der Verwendung von Cookies zur Verbesserung Ihres Online-Erlebnisses einverstanden. Detaillierte Informationen zu diesem und weiteren Themen erhalten Sie in unserer Datenschutzerklärung.