MEIN ERGEBNIS ANPASSEN

TANBRUCKGASSE, UNBEFRISTET, 37 m2 Altbau mit 3 m2 Balkon, 1 Zimmer, Küche, Duschbad, Parketten, Bahnhof Meidling - Objektnr. 5645978

1120
Ort
€ 528,45
Gesamtkosten
37,27 m²
Fläche
1.0
Zimmer

ECKDATEN
FindMyHome.at // Externe Immobilien-ID5645978 // 2421
ImmobilienartWohnung - Miete
AnschriftTanbruckgasse
1120 Wien
Stock3
Mietdauerunbefristet
Zimmer1.0
Bad1
WC1
Kaution:€ 1.590,00
Brutto-Miete:€ 528,45
Betriebskosten (inkl. MwSt):€ 103,31
Mehrwertsteuer:€ 48,04
Monatliche Gesamtkosten:€ 528,45
Provision: Gemäß Erstauftraggeberprinzip bezahlt der Abgeber die Provision.




BESCHREIBUNG

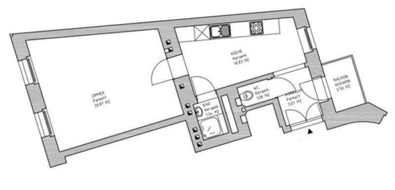
TANBRUCKGASSE, UNBEFRISTET, 37 m2 Altbau mit 3 m2 Balkon, 1 Zimmer, Küche, Duschbad, Parketten, Bahnhof Meidling

IN DER TANBRUCKGASSE GELANGT DIESE CA. 37,40 m2 ALTBAUWOHNUNG MIT CA. 2,50 m2 IM 3. LIFTSTOCK ZUR UNBEFRISTETEN VERMIETUNG

Vorzimmer, Einzelwohnraum, ca. 2,50 m2 Balkon, Küche, Badezimmer, separates WC und Kellerabteil

Ausstattung: 

+ Küche mit Einbaugeräte
+ Bad mit Dusche und WaschtischWaschmaschinenanschluss
+ separates WC
+ Waschmaschinenanschluss vorhanden
+ Parketten, Fliesen in den Nassräumen
+ Telekabelfernsehanschluss, Gegensprechanlage
+ Fernwärmeheizung
+ Kellerabteil
+ Fahrradabstellraum im Haus
+ HWB 75,12 kWh/m2a

Lage

TANBRUCKGASSE ECKE ROLLINGERGASSE mit bester Infrastruktur des 12. Bezirks (Meidlinger Hauptstraße, Ruckergasse, Rollingergasse, Eichenstraße, Bahnhof Meidling) und optimalen Verkehrsverbindungen, der Bahnhof Meidling mit der S-Bahn Meidling, die U6-Station Meidling (Philadelphiabrücke) sowie die Linien 62, WLB, 7A, 8A, 9A, 63A, N8 + N62 sind in unmittelbarer Nähe


Sonstiges

Gesamtmiete € 528,45 inklusive Betriebskosten, Aufzug, 10 % MwSt.
Heizung und Strom wird separat zur Vorschreibung gebracht.

 
Kaution: € 1.590,00 per Überweisung
unbefristete Hauptmiete, ablösefrei, Bezug ab 01.07.2026 möglich!
1 Jahr Kündigungsverzicht, 3 Monate Kündigungsfrist

Anbindung öffentlicher Verkehr

der Bahnhof Meidling mit der S-Bahn Meidling, die U6-Station Meidling (Philadelphiabrücke) sowie die Linien 62, WLB, 7A, 8A, 9A, 63A, N8 + N62 sind in unmittelbarer Nähe

Der Immobilienmakler erklärt, dass er entgegen dem in der Immobilienwirtschaft üblichen Geschäftsgebrauch des Doppelmaklers einseitig nur für den Vermieter tätig ist.


Infrastruktur / Entfernungen

Gesundheit
Arzt <250m
Apotheke <250m
Klinik <500m
Krankenhaus <1.250m

Kinder & Schulen
Schule <250m
Kindergarten <250m
Universität <1.000m
Höhere Schule <500m

Nahversorgung
Supermarkt <250m
Bäckerei <250m
Einkaufszentrum <250m

Sonstige
Geldautomat <250m
Bank <250m
Post <500m
Polizei <500m

Verkehr
Bus <250m
U-Bahn <250m
Straßenbahn <250m
Bahnhof <250m
Autobahnanschluss <2.000m

Angaben Entfernung Luftlinie / Quelle: OpenStreetMap

Kabel/SAT/TV: JA
Barrierefrei: JA
Provision: Gemäß Erstauftraggeberprinzip bezahlt der Abgeber die Provision.


Alle Details anzeigen

KONTAKT






 

Lasse dich kostenlos vom Anbieter dieser Immobilie zurückrufen.







 


 
ROS REALITÄTEN OG
Alexander Ros
Telefonnummer anzeigen Handy Bearbeiter: +436644665202
 
Bitte dem Makler die FindMyHome.at - ID bekanntgeben: 5645978

Bewertungen dieses Anbieters
Qualitätsmakler
Qualitätsmakler:
2014, 2016, 2017, 2018, 2021, 2025,
Netiquette
Freundlichkeit

BEWERTUNGEN DIESES ANBIETERS

 
Qualit�tsmakler
Qualitätsmakler
2014, 2016, 2017, 2018, 2021, 2025
Freundlichkeit
BESONDERS
FREUNDLICH
Netiquette
FINDMYHOME
NETIQUETTE
Auch du kannst bewerten! 7 Tage nach deiner Anfrage erhältst du dafür von uns ein Bewertungsmail.
Alle Infos zu unseren Auszeichnungen und dem FINDMYHOME.AT Qualitätsprogramm findest du hier: Übersicht anzeigen


Du willst wissen, wie viel dein Umzug kosten wird?

Mach gleich den kostenlosen Preisvergleich und schau, welche seriösen Anbieter in deiner Region günstig deinen Umzug organisieren


ZUM UMZUGS-VERGLEICH
-->

MYHOME BLOG
SuchAgentin auf FindMyHome.at
Unterschiedlichen Rechtsthemen, köstliche Rezepte, neueste Design-Highlights, sowie aktuelle Technik-Tools für Ihr Eigenheim.


FINDMYHOME.AT SUCHAGENTIN
SuchAgentin auf FindMyHome.at
Hallo, soll ich dir ähnliche Immobilien kostenfrei per E-Mail schicken?


Durch die Nutzung unserer Seite erklären Sie sich mit der Verwendung von Cookies zur Verbesserung Ihres Online-Erlebnisses einverstanden. Detaillierte Informationen zu diesem und weiteren Themen erhalten Sie in unserer Datenschutzerklärung.