MEIN ERGEBNIS ANPASSEN

Helle 3-Zi-Wohnung in 1100 Wien, 85m², Balkon, Lift, Einbauküche, Top Preis! - Objektnr. 5645829

1100
Ort
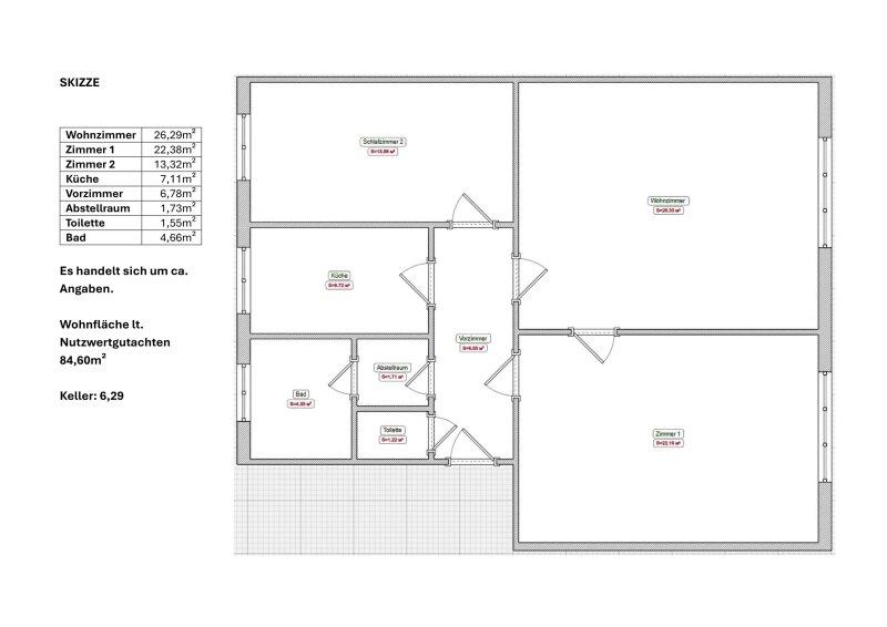
84,60 m²
Fläche
3.0
Zimmer

ECKDATEN
FindMyHome.at // Externe Immobilien-ID5645829 // 7191/239
ImmobilienartEigentum
Anschrift1100 Wien,Favoriten
Baujahr1958
Stock5
Geschosse7
Fläche84,60 m²
Zimmer3.0
Bad1
WC1
 Abstellraum
Kaufpreis:€ 329.000,00
Ratenzahlung:Finanzierungsmöglichkeiten für diese Immobilie anzeigen
Provision: 3% des Kaufpreises zzgl. 20% USt.







BESCHREIBUNG

Helle 3-Zi-Wohnung in 1100 Wien, 85m², Balkon, Lift, Einbauküche, Top Preis!

Herzlich willkommen in Ihrem neuen Zuhause im 10. Wiener Gemeindebezirk!

Diese attraktive Wohnung in der 5. Etage bietet Ihnen auf großzügigen 84,6 m² Wohnfläche viel Platz zum Wohlfühlen und Entspannen. Mit insgesamt 3 Zimmern und separater Küche ist die Wohnung ideal für Paare, kleine Familien oder auch als stilvolle Single-Wohnung mit großzügigem Raumangebot geeignet.

Den Halbstock oberhalb der 5 Etage sowie auch das Kellergeschoß erreicht man bequem mit dem Aufzug. So sind Getränke und der Einkauf schnell in der Wohnung und die Ski oder das Fahrrad schnell im großzügigen Keller verstaut.

Die gepflegte Immobilie besticht durch eine gute Raumaufteilung und zentral begehbare Zimmer. Parkettböden verleihen den Wohnräumen ein behagliches Ambiente. Die zentrale Gas-Zentralheizung sorgt für wohlige Wärme auch an kalten Tagen. Der im Wohnzimmer platzierte Ofen dient nur noch dekorativen Zwecken, wäre aber voraussichtlich auch zu reaktivieren. 

Die Einbauküche lädt dazu ein, kulinarische Köstlichkeiten zu zaubern und durch die separate Lage den Gästen den Blick auf Teller und Co zu ersparen .

Das Tageslichtbad mit Fenster in den weitläufigen Innenhof bietet Ihnen täglich einen hellen und freundlichen Ort der Erholung. 

Ein weiterer Pluspunkt sind die hervorragenden Verkehrsanbindungen: Bus, U-Bahn und Straßenbahn befinden sich in unmittelbarer Nähe, sodass Sie schnell und unkompliziert in ganz Wien unterwegs sind. Auch der Bahnhof und der Autobahnanschluss sind gut erreichbar, was die Mobilität zusätzlich erhöht. Die U-Bahn erreichen sie in 3 Gehminuten! 

 

Nutzen Sie die derzeit noch gültige Gebührenbefreiung bei Hauptwohnsitzbegründung und sparen Sie sich die Eintragungsgebühren sowie die Pfandrechtseintragung bei Finanzierung. 

Der Kaufpreis von 329.000,00 € bietet Ihnen eine hervorragende Gelegenheit, in eine gut gelegene und gepflegte Wohnung in einem dynamischen und lebendigen Stadtteil Wiens zu investieren. Lassen Sie sich diese Chance nicht entgehen und vereinbaren Sie noch heute einen Besichtigungstermin. Ihr neues Zuhause in 1100 Wien wartet auf Sie!

 

Highlights

  • Personenlift vorhanden
  • Zentral begehbare Zimmer
  • 2 Schlafzimmer
  • Separate Küche
  • Querlüften möglich (1 Seite Innenhof, eine Seite Straßenseitig)
  • Große Distanzflächen zu den Nachbarhäusern
  • Tageslichtbad
  • Bad und Wc getrennt
  • Großes Kellerabteil von Rd. 6,3m²
  • Top Verkehrsanbindung
  • FÜR INVESTOREN: Freier Mietzins!

 

Mehr Fotos finden Sie im Expose, einfach anfragen wir senden Ihnen umgehend alle Informationen.

Der Vermittler ist als Doppelmakler tätig.


Infrastruktur / Entfernungen

Gesundheit
Arzt <500m
Apotheke <500m
Klinik <1.000m
Krankenhaus <2.500m

Kinder & Schulen
Schule <500m
Kindergarten <500m
Universität <1.000m
Höhere Schule <3.000m

Nahversorgung
Supermarkt <500m
Bäckerei <500m
Einkaufszentrum <1.500m

Sonstige
Geldautomat <500m
Bank <500m
Post <500m
Polizei <1.000m

Verkehr
Bus <500m
U-Bahn <500m
Straßenbahn <500m
Bahnhof <500m
Autobahnanschluss <1.000m

Angaben Entfernung Luftlinie / Quelle: OpenStreetMap

Provision: 3% des Kaufpreises zzgl. 20% USt.


Alle Details anzeigen

KONTAKT






 

Lasse dich kostenlos vom Anbieter dieser Immobilie zurückrufen.







 


 
Hillinger Immobilien GmbH
Robert Holzmann
Telefonnummer anzeigen Telefon Allgemein: +4366499960996
 
Bitte dem Makler die FindMyHome.at - ID bekanntgeben: 5645829

Bewertungen dieses Anbieters
Freundlichkeit
100 %

BEWERTUNGEN DIESES ANBIETERS

 
Weiterempfehlung
WIRD SEHR GERNE

Freundlichkeit
BESONDERS
FREUNDLICH
Auch du kannst bewerten! 7 Tage nach deiner Anfrage erhältst du dafür von uns ein Bewertungsmail.
Alle Infos zu unseren Auszeichnungen und dem FINDMYHOME.AT Qualitätsprogramm findest du hier: Übersicht anzeigen

FINANZIERUNG
?>

Du willst wissen, wie viel dein Umzug kosten wird?

Mach gleich den kostenlosen Preisvergleich und schau, welche seriösen Anbieter in deiner Region günstig deinen Umzug organisieren


ZUM UMZUGS-VERGLEICH
-->

MYHOME BLOG
SuchAgentin auf FindMyHome.at
Unterschiedlichen Rechtsthemen, köstliche Rezepte, neueste Design-Highlights, sowie aktuelle Technik-Tools für Ihr Eigenheim.


FINDMYHOME.AT SUCHAGENTIN
SuchAgentin auf FindMyHome.at
Hallo, soll ich dir ähnliche Immobilien kostenfrei per E-Mail schicken?


ÄHNLICHE IMMOBILIEN
Aehnliche Immobilie - Vorschaubild 1

Charmante 3,5-Zimmer Altbauwohnung, Nähe Reumannplatz... - Objektnr. 5549214

99,00 m² - 3.5 Zimmer
339000 €
PLZ: 1100

Mehr anzeigen

Aehnliche Immobilie - Vorschaubild 2

GROSSE FAMILIENWOHNUNG - BEFRISTET VERMIETET BIS 12/2026 - ... - Objektnr. 5640953

101,00 m² - 4.0 Zimmer
295000 €
PLZ: 1100

Mehr anzeigen

Aehnliche Immobilie - Vorschaubild 3

Alles fix und fertig - Einziehen und losleben! Mega-Lage - R... - Objektnr. 5642088

70,69 m² - 3.0 Zimmer
320000 €
PLZ: 1100

Mehr anzeigen

Durch die Nutzung unserer Seite erklären Sie sich mit der Verwendung von Cookies zur Verbesserung Ihres Online-Erlebnisses einverstanden. Detaillierte Informationen zu diesem und weiteren Themen erhalten Sie in unserer Datenschutzerklärung.