MEIN ERGEBNIS ANPASSEN

Elegante Altbauwohnung in der Josefstadt - Wiener Charme trifft großzügigen Wohnkomfort | Nähe MuseumsQuartier, 1. Bezirk - Objektnr. 5645360

1080
Ort
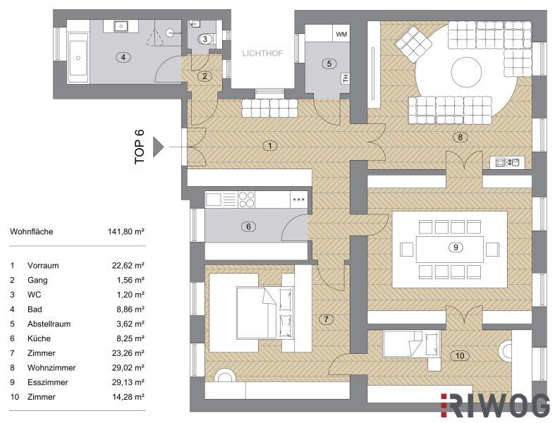
140,28 m²
Fläche
4.0
Zimmer

ECKDATEN
FindMyHome.at // Externe Immobilien-ID5645360 // 56681
ImmobilienartWohnung - Eigentum
Anschrift1080 Wien
Baujahr1900
Stock2
Geschosse6
Fläche140,28 m²
Zimmer4.0
Bad1
WC1
 Abstellraum
Kaufpreis:€ 990.000,00
Ratenzahlung:Finanzierungsmöglichkeiten für diese Immobilie anzeigen
Provision: 35.640,00 ? inkl. 20% USt.







BESCHREIBUNG

Elegante Altbauwohnung in der Josefstadt - Wiener Charme trifft großzügigen Wohnkomfort | Nähe MuseumsQuartier, 1. Bezirk

Diese stilvolle Altbauwohnung in der begehrten Josefstadt vereint klassischen Wiener Charme mit großzügigem Wohnkomfort. Auf ca.140 m² Wohnfläche entfaltet sich ein stilvolles Wohnambiente mit beeindruckenden Raumhöhen bis zu ca. 3,4 m, edlem Fischgrätparkett und eleganten Flügeltüren, die den repräsentativen Charakter der Gründerzeit widerspiegeln. Gelegen ist das Altbaujuwel in der 2. Etage eines prachtvollen Gründerzeithauses mit ornamentreicher Straßenfassade und präsentiert sich in einem bezugsfertigen Zustand

Die Raumaufteilung mit vier Zimmern, wovon ein Schlafzimmer komplett hofseitig ausgerichtet ist, und einer separaten Küche verbindet repräsentative Wohnbereiche mit privatem Rückzugsraum. Abgerundet wird das Ensemble durch ein Badezimmer mit Fenster, einen großzügigen, einladenden Vorraum sowie einen praktischen Abstellraum, ebenfalls mit Fenster - Komfort und Alltagstauglichkeit perfekt vereint.

Nur wenige Schritte vom MuseumsQuartier entfernt und in kurzer Distanz zur Inneren Stadt gelegen, bietet diese Wohnung eine erstklassige Lage mit exzellenter Infrastruktur und perfekter Anbindung urban, exklusiv und hervorragend angebunden.

HIGHLIGHTS

  • Fischgrätparkett 
  • Flügeltüren 
  • teils Holzkastenfenster 
  • Raumhöhen bis zu ca. 3,4 m
  • separate Küche mit Einbauküche
  • eines der Schlafzimmer komplett hofseitig
  • Bad mit Fenster, Dusche und Badewanne
  • separates WC mit Handwaschbecken und Fenster
  • Abstellraum mit WM-Anschluss und Fenster
  • großzügiger Vorraum mit Platz für eine große Garderobe
  • prachtvolles Gründerzeithaus mit ornamentreicher Straßenfassade
  • nur einen kurzen Spaziergang vom Museumsquartier entfernt
  • ca. 10 Gehminuten (oder ca. 3 Radminuten) in den 1. Bezirk 

INFOS ZUR WOHNUNG

  • STOCKWERK: 2. Etage (1. Stock nach Mezzanin)
  • WOHNFLÄCHE: ca. 140,2 m²
  • ZIMMER: 4
  • AUSRICHTUNG: Südost (Lerchenfelder Straße) / Nordwest (Innenhof)
  • LIFT: ja, hält im Halbstock
  • KÜCHE: Einbauküche mit Geräten (gebrauchter Zustand)
  • RAUMHÖHE: bis zu ca. 8,3  m
  • HEIZUNG: Gasetagenheizung (Therme im Abstellraum)
  • KELLERABTEIL: ca. 1,68 m² als Zubehör
  • VERKEHRSANBINDUNG: U-Bahn-Stationen Volkstheater, Rathaus und Thaliastraße sowie mehrere Bus- und Straßenbahnlinien
  • INFRASTRUKTUR: zahlreiche Geschäfte des täglichen Bedarfs in unmittelbarer Nähe (Billa, Spar, Hofer, Bipa, DM)

Kaufpreis: € 990.000,00

Betriebskosten: € 335,08 inkl. 10 % USt. p. M. derzeit
Aufzugskosten: 
84,17 inkl. 10 % USt. p. M. derzeit
Instandh. Rückl.: € 
125,70 p. M. derzeit
Rücklagenstand per 31.8.2025: rd. € 150.000,00

Provision: 3% vom Kaufpreis zzgl. 20 % USt.

Vertragserrichtung (gebunden): 1,5 % netto zzgl. 20% USt., zzgl. Barauslagen und Beglaubigungskosten (Kanzlei Tiefenthaler Gnesda Rechtsanwälte GmbH)

Die Wohnung wird im gebrauchten IST-Zustand verkauft, wie liegt und steht und wie besichtigt. Die Wohnung wurde frisch ausgemalt und der Parkett wurde geschliffen. 


Zögern Sie nicht und vereinbaren Sie noch heute einen Besichtigungstermin! Ich freue mich auf Ihre Anfrage!

Besuchen Sie auch unsere Homepage unter www.RIWOG.at mit zahlreichen aktuellen TOP-Objekten!

Wir weisen darauf hin, dass zwischen dem Vermittler und dem zu vermittelnden Dritten ein familiäres oder wirtschaftliches Naheverhältnis besteht.

Der Vermittler ist als Doppelmakler tätig.


Infrastruktur / Entfernungen

Gesundheit
Arzt <500m
Apotheke <500m
Klinik <500m
Krankenhaus <1.500m

Kinder & Schulen
Schule <500m
Kindergarten <500m
Universität <500m
Höhere Schule <500m

Nahversorgung
Supermarkt <500m
Bäckerei <500m
Einkaufszentrum <1.000m

Sonstige
Geldautomat <500m
Bank <500m
Post <1.000m
Polizei <500m

Verkehr
Bus <500m
U-Bahn <1.000m
Straßenbahn <500m
Bahnhof <1.000m
Autobahnanschluss <4.000m

Angaben Entfernung Luftlinie / Quelle: OpenStreetMap

Provision: 35.640,00 ? inkl. 20% USt.


Alle Details anzeigen

KONTAKT






 

Lasse dich kostenlos vom Anbieter dieser Immobilie zurückrufen.







 


 
RIWOG Real Estate Management GmbH
Learco Andrea Tews, MSc (WU)
Telefonnummer anzeigen Handy Bearbeiter: +436602479331
 
Bitte dem Makler die FindMyHome.at - ID bekanntgeben: 5645360

Bewertungen dieses Anbieters
Qualitätsmakler
Qualitätsmakler:
2015, 2016, 2017, 2018, 2019, 2021, 2023 ,
Netiquette
Freundlichkeit

BEWERTUNGEN DIESES ANBIETERS

 
Qualit�tsmakler
Qualitätsmakler
2015, 2016, 2017, 2018, 2019, 2021, 22/23
Freundlichkeit
BESONDERS
FREUNDLICH
Netiquette
FINDMYHOME
NETIQUETTE
Auch du kannst bewerten! 7 Tage nach deiner Anfrage erhältst du dafür von uns ein Bewertungsmail.
Alle Infos zu unseren Auszeichnungen und dem FINDMYHOME.AT Qualitätsprogramm findest du hier: Übersicht anzeigen

FINANZIERUNG
?>

Du willst wissen, wie viel dein Umzug kosten wird?

Mach gleich den kostenlosen Preisvergleich und schau, welche seriösen Anbieter in deiner Region günstig deinen Umzug organisieren


ZUM UMZUGS-VERGLEICH
-->

MYHOME BLOG
SuchAgentin auf FindMyHome.at
Unterschiedlichen Rechtsthemen, köstliche Rezepte, neueste Design-Highlights, sowie aktuelle Technik-Tools für Ihr Eigenheim.


FINDMYHOME.AT SUCHAGENTIN
SuchAgentin auf FindMyHome.at
Hallo, soll ich dir ähnliche Immobilien kostenfrei per E-Mail schicken?


ÄHNLICHE IMMOBILIEN
Aehnliche Immobilie - Vorschaubild 1

Wiener Altbauflair in saniertem Stilaltbau im 8. Bezirk... - Objektnr. 5624962

140,00 m² - 4.0 Zimmer
990000 €
PLZ: 1080

Mehr anzeigen

Aehnliche Immobilie - Vorschaubild 2

#SQ - ALTBAUCHARME IN TOPLAGE - 5-ZIMMER MIT BALKON NÄHE RAT... - Objektnr. 5635885

145,18 m² - 5.0 Zimmer
1149000 €
PLZ: 1080

Mehr anzeigen

Aehnliche Immobilie - Vorschaubild 3

Wiener Altbauflair im sanierten Stilaltbau im 8. Bezirk... - Objektnr. 5570126

140,00 m² - 4.0 Zimmer
990000 €
PLZ: 1080

Mehr anzeigen

Durch die Nutzung unserer Seite erklären Sie sich mit der Verwendung von Cookies zur Verbesserung Ihres Online-Erlebnisses einverstanden. Detaillierte Informationen zu diesem und weiteren Themen erhalten Sie in unserer Datenschutzerklärung.