MEIN ERGEBNIS ANPASSEN

NEU! Erstbezug 3-4 Zimmer Balkon/Terrasse Klimaanlage 1050 Wien - Objektnr. 5645272

1050
Ort
90,00 m²
Fläche
4.0
Zimmer

ECKDATEN
FindMyHome.at // Externe Immobilien-ID5645272 // 28477
ImmobilienartEigentum
Anschrift/14
1050 Wien
Baujahr1900
Stock4
Geschosse7
Fläche90,00 m²
Zimmer4.0
Bad1
WC2
Kaufpreis:€ 649.000,00
Ratenzahlung:Finanzierungsmöglichkeiten für diese Immobilie anzeigen
Provision: 3% des Kaufpreises zzgl. 20% USt.







BESCHREIBUNG

NEU! Erstbezug 3-4 Zimmer Balkon/Terrasse Klimaanlage 1050 Wien

PROJEKT:

Auf einem wunderschönen Altbau unweit des Siebenbrunnenplatzes entstehen aktuell drei neu errichtete Stockwerke (4.6. Stock), die jeweils zwei großzügige Wohnungen mit hochwertiger, schlüsselfertiger Ausstattung bieten. Im Zuge der Aufstockung wird das Gebäude umfassend modernisiert (Aufzug, Stiegenhaus, Fassade, Balkone, Keller) und technisch sowie optisch auf einen zeitgemäßen Standard gebracht.

Im 4. Stock und im 1. Dachgeschoss entstehen großzügige 4-Zimmer-Wohnungen mit Balkonen, im 2. Dachgeschoss 3-Zimmer-Wohnungen mit Terrassen.

Ebenso wurde jeder Wohnung ein Kellerabteil mit einer Größe von etwa 3 bis 4 m² zugeordnet.

Planmäßige Fertigstellung / geplanter Bezug: bis 01.08.2026.

LAGE:

Die Lage überzeugt durch eine ideale Kombination aus urbanem Flair, hervorragender Nahversorgung, zahlreichen Grünflächen und charmanten Lokalen, ergänzt durch eine exzellente Anbindung an den öffentlichen Verkehr. Ein umfangreiches Lageexposé (50 Seiten) steht nach Eingang Ihrer Anfrage zum Download zur Verfügung.

-----------------------------------

VERFÜGBARE WOHNUNGEN:

-----------------------------------

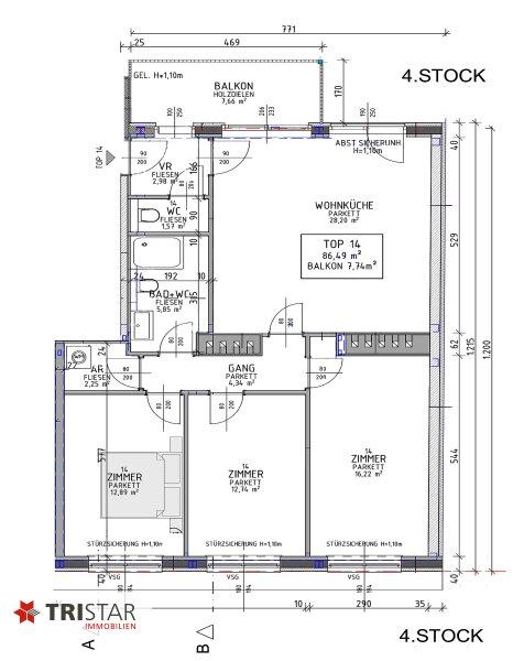
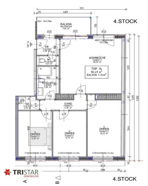
4. STOCK:

Top 14 4 Zimmer | ca. 87 m² WNFL + Balkon ca. 8 m² | Kaufpreis: EUR 649.000 - Schlüsselfertig!

Top 15 4 Zimmer | ca. 92 m² WNFL + Balkon ca. 4,18 m² | Kaufpreis: EUR 699.000 - Schlüsselfertig!

-----------------------------------

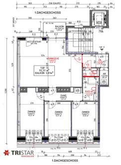
STOCK (DG 1):

VERKAUFT: DG 16 4 Zimmer | ca. 90 m² WNFL + Balkon ca. 7 m² | Kaufpreis: EUR 669.000 - Schlüsselfertig! - VERKAUFT!

DG 17 4 Zimmer | ca. 93 m² WNFL + Balkon ca. 4 m² | Kaufpreis: EUR 689.000 - Schlüsselfertig!

-----------------------------------

STOCK (DG 2):

DG 18 3 Zimmer | ca. 68,30 m² WNFL + Terrasse ca. 3,12 m² | Kaufpreis: EUR 499.000 - Schlüsselfertig!

DG 19 3 Zimmer | ca. 63,19 m² WNFL + Terrasse ca. 2,15 m² | Kaufpreis: EUR 474.000 - Schlüsselfertig!

-----------------------------------

VERMITTLUNGSPROVISION / DOPPELMAKLERTÄTIGKEIT:

Der Ordnung halber wird darauf hingewiesen, dass die Vermittlungsprovision 3 % des Kaufpreises zuzüglich 20 % USt. (insgesamt 3,6 %) beträgt und mit Zustandekommen des vermittelten Rechtsgeschäfts (Annahme des Kaufanbots ohne aufschiebende Bedingungen durch den Verkäufer) fällig wird. Der Makler ist als Doppelmakler tätig.

NEU! Erstbezug 34 Zimmer Balkon/Terrasse Klimaanlage 1050 Wien

Wir weisen darauf hin, dass zwischen dem Vermittler und dem zu vermittelnden Dritten ein familiäres oder wirtschaftliches Naheverhältnis besteht.

Der Vermittler ist als Doppelmakler tätig.

Klimaanlage: JA
Barrierefrei: JA
Provision: 3% des Kaufpreises zzgl. 20% USt.


Alle Details anzeigen

KONTAKT






 

Lasse dich kostenlos vom Anbieter dieser Immobilie zurückrufen.







 


 
TRISTAR Immobilien
TRISTAR Immobilien
Telefonnummer anzeigen Handy Bearbeiter: +436769017374
 
Bitte dem Makler die FindMyHome.at - ID bekanntgeben: 5645272

Bewertungen dieses Anbieters
Qualitätsmakler
Qualitätsmakler:
2017, 2019, 2020, 2021,
Netiquette
Freundlichkeit

BEWERTUNGEN DIESES ANBIETERS

 
Qualit�tsmakler
Qualitätsmakler
2017, 2019, 2020, 2021
Freundlichkeit
BESONDERS
FREUNDLICH
Netiquette
FINDMYHOME
NETIQUETTE
Auch du kannst bewerten! 7 Tage nach deiner Anfrage erhältst du dafür von uns ein Bewertungsmail.
Alle Infos zu unseren Auszeichnungen und dem FINDMYHOME.AT Qualitätsprogramm findest du hier: Übersicht anzeigen

FINANZIERUNG
?>

Du willst wissen, wie viel dein Umzug kosten wird?

Mach gleich den kostenlosen Preisvergleich und schau, welche seriösen Anbieter in deiner Region günstig deinen Umzug organisieren


ZUM UMZUGS-VERGLEICH
-->

MYHOME BLOG
SuchAgentin auf FindMyHome.at
Unterschiedlichen Rechtsthemen, köstliche Rezepte, neueste Design-Highlights, sowie aktuelle Technik-Tools für Ihr Eigenheim.


FINDMYHOME.AT SUCHAGENTIN
SuchAgentin auf FindMyHome.at
Hallo, soll ich dir ähnliche Immobilien kostenfrei per E-Mail schicken?


ÄHNLICHE IMMOBILIEN
Aehnliche Immobilie - Vorschaubild 1

NEU! Erstbezug 6 DG-Wohnungen Weitblick 1050 Wien... - Objektnr. 5645277

77,00 m² - 3.0 Zimmer
599000 €
PLZ: 1050

Mehr anzeigen

Aehnliche Immobilie - Vorschaubild 2

"AH11" - Erstbezug deluxe: Qualität, Lage & Preis im Einklan... - Objektnr. 5637684

98,78 m² - 4.0 Zimmer
740877 €
PLZ: 1050

Mehr anzeigen

Aehnliche Immobilie - Vorschaubild 3

NEU! Erstbezug 3-Zimmer DG Weitblick + Terrasse 1050 Wie... - Objektnr. 5601717

77,00 m² - 3.0 Zimmer
599000 €
PLZ: 1050

Mehr anzeigen

Durch die Nutzung unserer Seite erklären Sie sich mit der Verwendung von Cookies zur Verbesserung Ihres Online-Erlebnisses einverstanden. Detaillierte Informationen zu diesem und weiteren Themen erhalten Sie in unserer Datenschutzerklärung.