MEIN ERGEBNIS ANPASSEN

Cottageviertel I Traumhafte Dachwohnung im Jugendstil-Palais I Garagenplatz - Objektnr. 5644979

virtuell besichtigen
1190
Ort
153,16 m²
Fläche
4.0
Zimmer
WEITERE MEDIEN

Virtuelle Rundgänge


ECKDATEN
FindMyHome.at // Externe Immobilien-ID5644979 // 67533
ImmobilienartWohnung - Eigentum
AnschriftChimanistraße
1190 Wien
Baujahr2020
Stock5
Geschosse6
Fläche153,16 m²
Terrassen1 (14,00 m²)
Zimmer4.0
Bad2
WC2
Kaufpreis:€ 1.950.000,00
Ratenzahlung:Finanzierungsmöglichkeiten für diese Immobilie anzeigen
Provision: 3% des Kaufpreises zzgl. 20% USt.







BESCHREIBUNG

Cottageviertel I Traumhafte Dachwohnung im Jugendstil-Palais I Garagenplatz

Für eine noch größere Auswahl an Immobilien besuchen Sie www.akkadia.at.

Im begehrten Cottageviertel von Döbling befindet sich dieses außergewöhnliche Jugendstil-Palais, welches im Jahr 1912 nach den Plänen des Architekten Jakob Reitzer errichtet wurde.
Im Zuge einer umfassenden Sanierung im Jahr 2020 wurde der Dachboden ausgebaut und sechs exklusive Dachgeschosswohnungen geschaffen. Die gelungene Verbindung aus historischem Charme und modernster Ausstattung, kombiniert mit edelsten Materialien und dem unverwechselbaren Flair von Oberdöbling, macht diese Residenz zu einer absoluten Rarität.

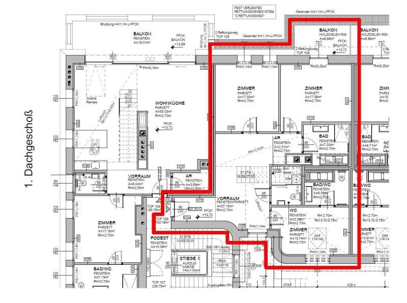
Die gegenständliche Maisonette erstreckt sich über eine Wohnfläche von ca. 153 m² und überzeugt durch eine durchdachte Raumaufteilung.
Über ein großzügiges Vorzimmer betreten Sie die angenehm ruhig gelegene Wohnung.
Auf der unteren Ebene erwarten Sie ein weitläufiger Eingangsbereich, ein Masterbedroom mit angeschlossenem Badezimmer mit WC, zwei weitere Schlafzimmer mit vorgelagertem Balkon, ein zweites Badezimmer, eine Gäste-Toilette sowie ein praktischer Abstellraum.
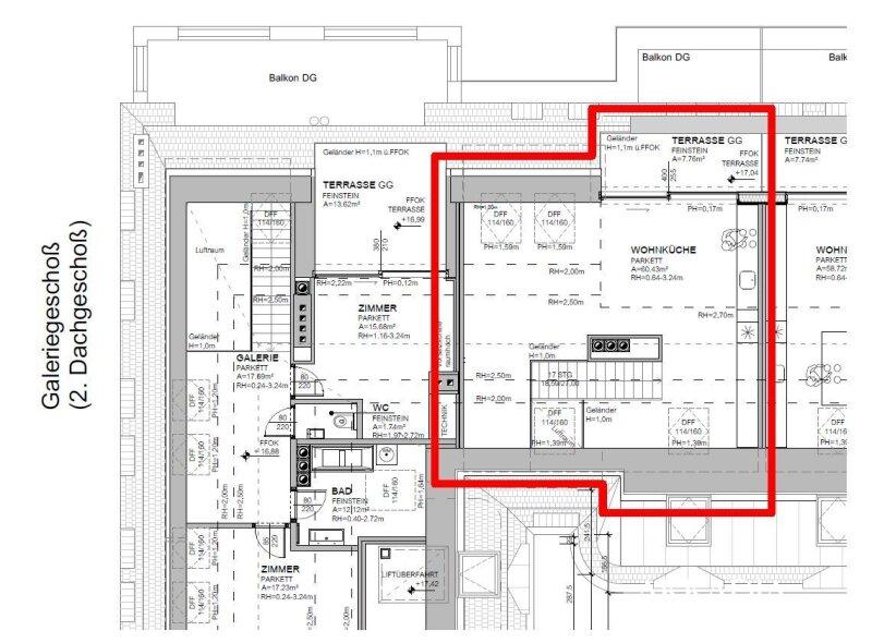
Über eine Treppe gelangen Sie in die obere Ebene, die mit einem großzügigen Wohnbereich samt hochwertiger Bulthaup Küche beeindruckt. Auf dieser Ebene befindet sich auch die Terrasse, welche einen herrlichen Blick ins Grüne und in die Stadt bietet.

Ein geräumiges Kellerabteil sowie ein eigener Garagenstellplatz runden dieses exklusive Angebot ab.

Auf Grund der EU-Richtlinien zum Fernabsatz- und Auswärtsgeschäfte-Gesetz bitten wir um Ihr Verständnis, dass wir Ihnen seit 13. Juni 2014 die Objekt-Unterlagen erst nach Ihrer Bestätigung, dass Sie unser Tätigwerden wünschen und über Ihre Rücktrittsrechte aufgeklärt wurden, zusenden können. Bevor Sie die Unterlagen zugesendet bekommen, erhalten Sie eine Mail in der Sie diese beiden Punkte bestätigen müssen. Vielen Dank für Ihr Vertrauen!
 

Der Vermittler ist als Doppelmakler tätig.


Infrastruktur / Entfernungen

Gesundheit
Arzt <250m
Apotheke <500m
Klinik <500m
Krankenhaus <750m

Kinder & Schulen
Schule <250m
Kindergarten <250m
Universität <750m
Höhere Schule <500m

Nahversorgung
Supermarkt <500m
Bäckerei <500m
Einkaufszentrum <2.500m

Sonstige
Geldautomat <500m
Bank <500m
Post <750m
Polizei <750m

Verkehr
Bus <250m
U-Bahn <1.000m
Straßenbahn <500m
Bahnhof <500m
Autobahnanschluss <1.500m

Angaben Entfernung Luftlinie / Quelle: OpenStreetMap

Klimaanlage: JA
Provision: 3% des Kaufpreises zzgl. 20% USt.


Alle Details anzeigen

KONTAKT






 

Lasse dich kostenlos vom Anbieter dieser Immobilie zurückrufen.







 


 
AKKADIA Immobilienvermittlung GmbH
Michael Schlaffer
Telefonnummer anzeigen Telefon Allgemein: +431512908554
Handy Bearbeiter: +436645225073
 
Bitte dem Makler die FindMyHome.at - ID bekanntgeben: 5644979

Bewertungen dieses Anbieters
Netiquette
Freundlichkeit

BEWERTUNGEN DIESES ANBIETERS

 
Freundlichkeit
BESONDERS
FREUNDLICH
Netiquette
FINDMYHOME
NETIQUETTE
Auch du kannst bewerten! 7 Tage nach deiner Anfrage erhältst du dafür von uns ein Bewertungsmail.
Alle Infos zu unseren Auszeichnungen und dem FINDMYHOME.AT Qualitätsprogramm findest du hier: Übersicht anzeigen

FINANZIERUNG
?>

Du willst wissen, wie viel dein Umzug kosten wird?

Mach gleich den kostenlosen Preisvergleich und schau, welche seriösen Anbieter in deiner Region günstig deinen Umzug organisieren


ZUM UMZUGS-VERGLEICH
-->

MYHOME BLOG
SuchAgentin auf FindMyHome.at
Unterschiedlichen Rechtsthemen, köstliche Rezepte, neueste Design-Highlights, sowie aktuelle Technik-Tools für Ihr Eigenheim.


FINDMYHOME.AT SUCHAGENTIN
SuchAgentin auf FindMyHome.at
Hallo, soll ich dir ähnliche Immobilien kostenfrei per E-Mail schicken?


ÄHNLICHE IMMOBILIEN
Aehnliche Immobilie - Vorschaubild 1

Luxuriöse Penthouse-Wohnung mit 123 m² privater Dachterrasse... - Objektnr. 5609078

151,63 m² - 3.0 Zimmer
1900000 €
PLZ: 1190

Mehr anzeigen

Aehnliche Immobilie - Vorschaubild 2

SieVienne - Living - Top 6 - Die Große mit Weitblick... - Objektnr. 5642036

136,68 m² - 5 Zimmer
1605000 €
PLZ: 1190

Mehr anzeigen

Aehnliche Immobilie - Vorschaubild 3

Penthouse mit Blick in die Weinberge - Objektnr. 5633231


165,67 m² - 3.0 Zimmer
1990000 €
PLZ: 1190

Mehr anzeigen

Durch die Nutzung unserer Seite erklären Sie sich mit der Verwendung von Cookies zur Verbesserung Ihres Online-Erlebnisses einverstanden. Detaillierte Informationen zu diesem und weiteren Themen erhalten Sie in unserer Datenschutzerklärung.