MEIN ERGEBNIS ANPASSEN

Moderne 3-Zimmer-Neubauwohnung mit Eigengarten in ruhiger Innenhoflage - Objektnr. 5644550

1160
Ort
110,91 m²
Fläche
3.0
Zimmer

ECKDATEN
FindMyHome.at // Externe Immobilien-ID5644550 // 16240
ImmobilienartWohnung - Eigentum
Anschrift1160 Wien
Baujahr2008
Befeuerung
Stock2
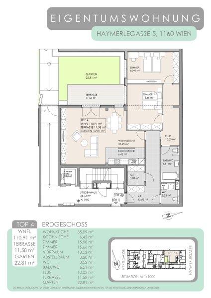
Fläche110,91 m²
Terrassen1 (12,00 m²)
Zimmer3.0
Bad1
WC1
 Abstellraum
Kaufpreis:€ 620.000,00
Ratenzahlung:Finanzierungsmöglichkeiten für diese Immobilie anzeigen
Provision: 3% des Kaufpreises zzgl. 20% USt.







BESCHREIBUNG

Moderne 3-Zimmer-Neubauwohnung mit Eigengarten in ruhiger Innenhoflage

Moderne 3-Zimmer-Neubauwohnung mit Eigengarten in ruhiger Innenhoflage Haymerlegasse, 1160 Wien

Zum Verkauf gelangt eine lichtdurchflutete 3-Zimmerwohnung mit Eigengarten, gelegen im Innenhof eines modernen Wohnhauses (Baujahr 2008) mit Aufzug. Die Immobilie überzeugt durch ihre ruhige Innenhofausrichtung, durchdachte Raumplanung sowie den gepflegten Zustand ideal für Eigennutzer oder Anleger.


Raumaufteilung:

  • Geräumiger Vorraum

  • Abstellraum mit praktischer Nutzungsmöglichkeit

  • Wohnküche mit Zugang in den Garten  offenes und helles Raumgefühl

  • 2 Schlafzimmer separat begehbar

  • Badezimmer mit Badewanne und WC

  • Zusätzliches Gäste-WC mit Handwaschbecken

Ein Garagenstellplatz im Haus kann optional zu einem Preis von € 7.000 mitgekauft werden.


Ausstattung & Highlights:

  • Neubau aus 2008 mit zeitgemäßer Technik

  • Lift im Haus

  • Hofseitiger Eigengarten mit optimaler Sonnenausrichtung

  • Große Fensterflächen für natürliches Licht

  • Kellerabteil zur Wohnung zugeordnet

  • Gepflegte Allgemeinflächen, Fahrradabstellbereich und Kinderwagenraum


Lage & Infrastruktur:

Die Wohnung befindet sich in der Haymerlegasse, ruhig gelegen und dennoch zentral im Herzen von Ottakring. Sämtliche Geschäfte des täglichen Bedarfs (Billa, Spar, BIPA) sowie Cafés und Lokale sind bequem zu Fuß erreichbar. Die Nähe zur Burggasse-Stadthalle, zum Brunnenmarkt oder zur Lugner City garantiert beste urbane Infrastruktur und Freizeitmöglichkeiten.


Öffentliche Verkehrsmittel:

  • U-Bahnlinie U6 Burggasse-Stadthalle (etwa 10 Gehminuten)

  • Straßenbahnlinie 9

  • Buslinie 48A


 

Nebenkosten: 

Grundbucheintragung: 1,1% d.KP. 

Grunderwerbssteuer: 3,5% d.KP.

Maklerprovision: 3% d.KP. + 20% USt. 

Kaufvertragshonorar: 1,2% zzgl. Barauslagen und USt. | Die Errichtung und Durchführung des Kaufvertrages erfolgt durch die Kanzlei Tiefenthaler Gnesda Rechtsanwälte GmbH.

 

Maklervereinbarung: Wir ersuchen um Verständnis, dass wir bei Anfragen zur Objektadresse, bzw. Besichtigungstermin  aufgrund neuer gesetzlicher Bestimmungen Unterlagen erst dann zusenden können, wenn Sie vorab bestätigen, dass Sie unser sofortiges Tätigwerden wünschen und über Ihre Rücktrittsrechte aufgeklärt wurden. Sie bekommen nach Ihrer schriftlichen Anfrage mit vollständiger Angabe des Namens, Anschrift und Telefonnummer ein Email, in dem Sie diese Punkte bestätigen müssen.


Haftungsausschluss:  Wir weisen darauf hin, dass sämtliche Daten im vorliegenden Angebot sowie die von unserem Büro an Sie weitergegebenen Auskünfte, vom Eigentümer der Immobilie zur Verfügung gestellt wurden. Ebenso sind Informationen von Dritten (z.B. behördliche Informationen) eingeholt worden, auch für diese können wir unsererseits keinerlei Haftung für deren uneingeschränkte Richtigkeit übernehmen.

Wir weisen darauf hin, dass zwischen dem Vermittler und dem zu vermittelnden Dritten ein familiäres oder wirtschaftliches Naheverhältnis besteht.


Infrastruktur / Entfernungen

Gesundheit
Arzt <500m
Apotheke <500m
Klinik <1.000m
Krankenhaus <2.000m

Kinder & Schulen
Schule <500m
Kindergarten <500m
Universität <1.000m
Höhere Schule <1.000m

Nahversorgung
Supermarkt <500m
Bäckerei <500m
Einkaufszentrum <1.000m

Sonstige
Geldautomat <500m
Bank <1.000m
Post <1.000m
Polizei <1.000m

Verkehr
Bus <500m
U-Bahn <1.000m
Straßenbahn <500m
Bahnhof <1.000m
Autobahnanschluss <5.000m

Angaben Entfernung Luftlinie / Quelle: OpenStreetMap

Barrierefrei: JA
Provision: 3% des Kaufpreises zzgl. 20% USt.


Alle Details anzeigen

KONTAKT






 

Lasse dich kostenlos vom Anbieter dieser Immobilie zurückrufen.







 


 
Moritz Immobilien
Julia Koch
Telefonnummer anzeigen Telefon Allgemein: +436606647444
 
Bitte dem Makler die FindMyHome.at - ID bekanntgeben: 5644550

Bewertungen dieses Anbieters
Netiquette
Freundlichkeit
100 %

BEWERTUNGEN DIESES ANBIETERS

 
Weiterempfehlung
WIRD SEHR GERNE

Freundlichkeit
BESONDERS
FREUNDLICH
Netiquette
FINDMYHOME
NETIQUETTE
Auch du kannst bewerten! 7 Tage nach deiner Anfrage erhältst du dafür von uns ein Bewertungsmail.
Alle Infos zu unseren Auszeichnungen und dem FINDMYHOME.AT Qualitätsprogramm findest du hier: Übersicht anzeigen

FINANZIERUNG
?>

Du willst wissen, wie viel dein Umzug kosten wird?

Mach gleich den kostenlosen Preisvergleich und schau, welche seriösen Anbieter in deiner Region günstig deinen Umzug organisieren


ZUM UMZUGS-VERGLEICH
-->

MYHOME BLOG
SuchAgentin auf FindMyHome.at
Unterschiedlichen Rechtsthemen, köstliche Rezepte, neueste Design-Highlights, sowie aktuelle Technik-Tools für Ihr Eigenheim.


FINDMYHOME.AT SUCHAGENTIN
SuchAgentin auf FindMyHome.at
Hallo, soll ich dir ähnliche Immobilien kostenfrei per E-Mail schicken?


ÄHNLICHE IMMOBILIEN
Aehnliche Immobilie - Vorschaubild 1

DG-WOHNUNG MIT RUHIGER TERRASSE: Großzügige 4,5-Zimmer-Wohnu... - Objektnr. 5649316

127,67 m² - 4.5 Zimmer
549000 €
PLZ: 1160

Mehr anzeigen

Aehnliche Immobilie - Vorschaubild 2

GRAND GARDEN | NATUR GENIESSEN. STADT ERLEBEN. - Objektnr. 5513918

92,20 m² - 3.0 Zimmer
722500 €
PLZ: 1160

Mehr anzeigen

Aehnliche Immobilie - Vorschaubild 3

Grünes Lebensgefühl - Wohnen in einer großzügigen 4-Zimmer-O... - Objektnr. 5496188

102,11 m² - 4.0 Zimmer
702600 €
PLZ: 1160

Mehr anzeigen

Durch die Nutzung unserer Seite erklären Sie sich mit der Verwendung von Cookies zur Verbesserung Ihres Online-Erlebnisses einverstanden. Detaillierte Informationen zu diesem und weiteren Themen erhalten Sie in unserer Datenschutzerklärung.