MEIN ERGEBNIS ANPASSEN

# SQ - HELLE WOHNUNG IN ZENTRALER UND RUHIGER LAGE DES 20. BEZIRKS - Objektnr. 5643687

1200
Ort
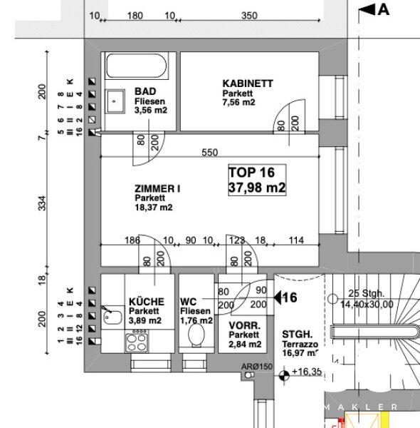
37,17 m²
Fläche
1.0
Zimmer

ECKDATEN
FindMyHome.at // Externe Immobilien-ID5643687 // 21446
ImmobilienartWohnung - Eigentum
Anschrift1200 Wien
Baujahr1900
Stock3
Fläche37,17 m²
Zimmer1.0
Bad1
WC1
Kaufpreis:€ 139.500,00
Ratenzahlung:Finanzierungsmöglichkeiten für diese Immobilie anzeigen
Provision: 3% vom Kaufpreis zzgl. 20% Ust.







BESCHREIBUNG

# SQ - HELLE WOHNUNG IN ZENTRALER UND RUHIGER LAGE DES 20. BEZIRKS

Zum Verkauf gelangt eine charmante, hofseitig gelegene Altbauwohnung in äußerst zentraler und zugleich ruhiger Lage des 20. Wiener Gemeindebezirks. Die helle Wohnung besticht durch ihren gut geschnittenen Grundriss und ein angenehmes Wohnambiente.

Die Wohnung befindet sich in einem sanierungsbedürftigen Zustand. 

Dank der hervorragenden Lage sind sowohl öffentliche Verkehrsmittel als auch diverse Einkaufsmöglichkeiten, Cafés und Restaurants in wenigen Minuten erreichbar ideal für Stadtliebhaber, die zentrales Wohnen mit Ruhe verbinden möchten.


Eckdaten im Überblick:
 

  • Raumhöhe ca. 3,5 Meter
  • Wohnungsgröße ca. 37,17 m² 
  • Hofseitige Ruhelage
  • Gründerzeithaus mit schöne gegliederter Fassade
  • Sehr gute öffentliche Verkehrsanbindung (U4 Station Friedensbrücke ist zu Fuss in 6 Minuten erreichbar)
     

Kosten:

  • Kaufpreis: € 139.500,-
  • Provision: 3% vom Kaufpreis zzgl. 20% Ust.

 

Haben wir Ihr Interesse geweckt 

Dann kontaktieren Sie uns einfach über das Kontaktformular oder per E-Mail an 

Wir weisen darauf hin, dass zwischen dem Vermittler und dem zu vermittelnden Dritten ein familiäres oder wirtschaftliches Naheverhältnis besteht.

Der Vermittler ist als Doppelmakler tätig.


Infrastruktur / Entfernungen

Gesundheit
Arzt <500m
Apotheke <500m
Klinik <1.000m
Krankenhaus <1.500m

Kinder & Schulen
Schule <500m
Kindergarten <500m
Universität <500m
Höhere Schule <1.000m

Nahversorgung
Supermarkt <500m
Bäckerei <500m
Einkaufszentrum <1.500m

Sonstige
Geldautomat <500m
Bank <500m
Post <500m
Polizei <500m

Verkehr
Bus <500m
U-Bahn <500m
Straßenbahn <500m
Bahnhof <500m
Autobahnanschluss <1.500m

Angaben Entfernung Luftlinie / Quelle: OpenStreetMap

Provision: 3% des Kaufpreises zzgl. 20% USt.


Alle Details anzeigen

KONTAKT






 

Lasse dich kostenlos vom Anbieter dieser Immobilie zurückrufen.







 


 
STADTQUARTIER Home GmbH
Adam Brandis
Telefonnummer anzeigen Telefon Allgemein: +4369981470580
Handy Bearbeiter: +4369981470580
 
Bitte dem Makler die FindMyHome.at - ID bekanntgeben: 5643687

Bewertungen dieses Anbieters
Qualitätsmakler
Qualitätsmakler:
2013, 2018, 2019, 2021,
Netiquette
Freundlichkeit

BEWERTUNGEN DIESES ANBIETERS

 
Qualit�tsmakler
Qualitätsmakler
2013, 2018, 2019, 2021
Freundlichkeit
BESONDERS
FREUNDLICH
Netiquette
FINDMYHOME
NETIQUETTE
Auch du kannst bewerten! 7 Tage nach deiner Anfrage erhältst du dafür von uns ein Bewertungsmail.
Alle Infos zu unseren Auszeichnungen und dem FINDMYHOME.AT Qualitätsprogramm findest du hier: Übersicht anzeigen

FINANZIERUNG
?>

Du willst wissen, wie viel dein Umzug kosten wird?

Mach gleich den kostenlosen Preisvergleich und schau, welche seriösen Anbieter in deiner Region günstig deinen Umzug organisieren


ZUM UMZUGS-VERGLEICH
-->

MYHOME BLOG
SuchAgentin auf FindMyHome.at
Unterschiedlichen Rechtsthemen, köstliche Rezepte, neueste Design-Highlights, sowie aktuelle Technik-Tools für Ihr Eigenheim.


FINDMYHOME.AT SUCHAGENTIN
SuchAgentin auf FindMyHome.at
Hallo, soll ich dir ähnliche Immobilien kostenfrei per E-Mail schicken?


ÄHNLICHE IMMOBILIEN
Aehnliche Immobilie - Vorschaubild 1

+++NEU+++ sanierungsbedürftige 1 Zimmerwohnung - tolle Lage... - Objektnr. 5594808

39,28 m² - 1.0 Zimmer
139000 €
PLZ: 1200

Mehr anzeigen

Aehnliche Immobilie - Vorschaubild 2

ALTBAU-WOHNUNG zu SANIEREN, HOFRUHELAGE im 3. Stock!... - Objektnr. 5641943

41,00 m²
128000 €
PLZ: 1200

Mehr anzeigen

Aehnliche Immobilie - Vorschaubild 3

++NEU++ Sanierungsbedürftige 1,5-Zimmer Altbauwohnung, tolle... - Objektnr. 5634519

40,59 m² - 1.5 Zimmer
125000 €
PLZ: 1200

Mehr anzeigen

Durch die Nutzung unserer Seite erklären Sie sich mit der Verwendung von Cookies zur Verbesserung Ihres Online-Erlebnisses einverstanden. Detaillierte Informationen zu diesem und weiteren Themen erhalten Sie in unserer Datenschutzerklärung.