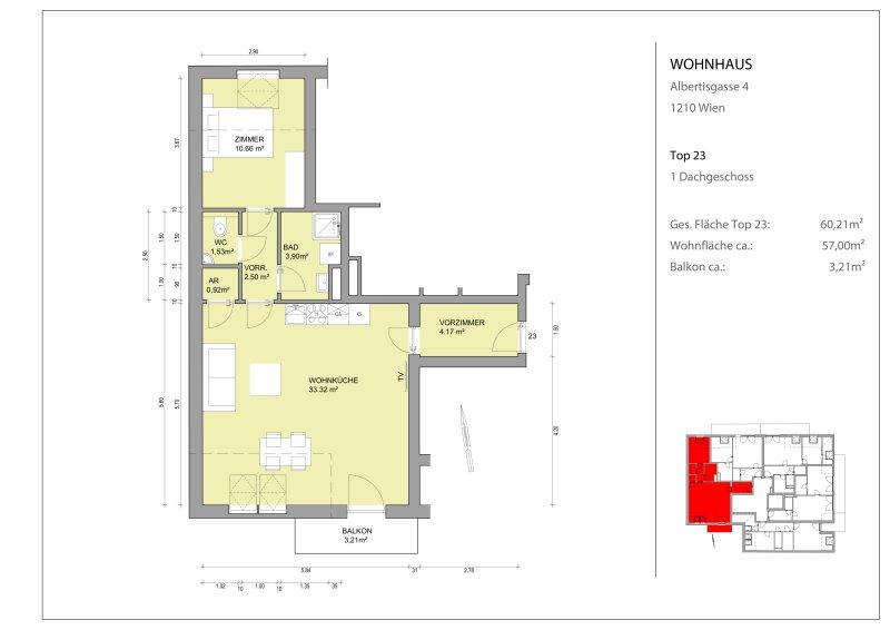
Erdwärme: Schöne 2-Zimmer-Neubauwohnung mit Südbalkon - Objektnr. 5643063
ECKDATEN
BESCHREIBUNG
KONTAKT
Lasse dich kostenlos vom Anbieter dieser Immobilie zurückrufen.
convival Immobilien im Auftrag von GEZI Immobilienvermittlung, Inh. Gregor Zimmel
Gregor Zimmel
Gregor Zimmel
Telefonnummer anzeigen
Telefon Allgemein: +436702014614
Bitte dem Makler die FindMyHome.at - ID bekanntgeben: 5643063
Bitte dem Makler die FindMyHome.at - ID bekanntgeben: 5643063
BEWERTUNGEN DIESES ANBIETERS
BESONDERS
FREUNDLICH
FREUNDLICH
FINDMYHOME.AT
NETIQUETTE
NETIQUETTE
Auch du kannst bewerten! 7 Tage nach deiner Anfrage erhältst du dafür von uns ein Bewertungsmail.
Alle Infos zu unseren Auszeichnungen und dem FINDMYHOME.AT Qualitätsprogramm findest du hier: Übersicht anzeigen
Alle Infos zu unseren Auszeichnungen und dem FINDMYHOME.AT Qualitätsprogramm findest du hier: Übersicht anzeigen
Du willst wissen, wie viel dein Umzug kosten wird?
Mach gleich den kostenlosen Preisvergleich und schau, welche seriösen Anbieter in deiner Region günstig deinen Umzug organisieren
ZUM UMZUGS-VERGLEICH




















