MEIN ERGEBNIS ANPASSEN

Gefördertes betreutes Wohnen - Objektnr. 5642948

3263
Ort
€ 520,74
Gesamtkosten
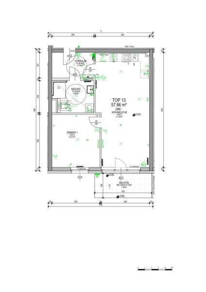
57,86 m²
Fläche
2.0
Zimmer

ECKDATEN
FindMyHome.at // Externe Immobilien-ID5642948 // 3644
ImmobilienartWohnung - Miete
Anschrift3263 Randegg
Baujahr2020
Stock2
Geschosse3
Mietdauerunbefristet
Fläche57,86 m²
Zimmer2.0
WC1
Brutto-Miete:€ 520,74
Monatliche Gesamtkosten:€ 520,74
Provision: Gemäß Erstauftraggeberprinzip bezahlt der Abgeber die Provision.




BESCHREIBUNG

Gefördertes betreutes Wohnen

Geförderte 2-Zimmer Dachgeschosswohnung mit Balkon (Top 13 Betreutes Wohnen)

Willkommen in Ihrem neuen Zuhause in Randegg, einer charmanten Gemeinde im malerischen Niederösterreich! Diese attraktive Dachgeschosswohnung überzeugt nicht nur durch ihren komfortablen Wohnraum, sondern auch durch eine hohe Lebensqualität.

Die Wohnung bietet eine Wohnfläche von ca. 58 m² sowie einen rund 8 m² großen Balkon, der zu entspannten Stunden im Freien einlädt. Der wunderschöne Grünblick sorgt zusätzlich für eine angenehme Wohnatmosphäre.

Die gut geschnittene Wohnung verfügt über zwei großzügige Zimmer mit vielfältigen Gestaltungsmöglichkeiten. Der helle und freundliche Wohnbereich lädt zum Entspannen und Verweilen ein. Das Schlafzimmer ist direkt von der Wohnküche aus erreichbar.

Das modern verflieste Badezimmer ist mit Dusche, Waschbecken, Waschmaschinenanschluss und WC ausgestattet.

Ein eigener Autoabstellplatz steht Ihnen ebenfalls zur Verfügung.

Das Haus bietet zahlreiche Annehmlichkeiten wie einen Lift, einen Gemeinschaftsraum mit Teeküche, ein WC sowie einen Müllraum. Zusätzlich ist jeder Wohnung ein Kellerabteil zugeordnet. Beheizt wird die Wohnanlage mittels Fernwärme.

Die Marktgemeinde Randegg, auch als Perle des kleinen Erlauftals bekannt, besticht durch ihre idyllische Lage mit Blick auf Hügel, Wälder und Wiesen. Gleichzeitig sind sämtliche Einrichtungen des täglichen Bedarfs wie Einkaufsmöglichkeiten, Ärzte, Kindergarten, Volksschule und weitere Institutionen in unmittelbarer Nähe vorhanden.

Diese Wohnung vereint alles, was Sie für ein angenehmes und erfülltes Wohnen benötigen. Vereinbaren Sie noch heute einen Besichtigungstermin und überzeugen Sie sich selbst!

Details im Überblick:

  • Befristung: unbefristet, 1 Jahr Kündigungsverzicht, 3 Monate Kündigungsfrist
  • Bezug: ab sofort
  • Heizwärmebedarf: 24,2 kWh/m²a (Klasse A)
  • Gesamtenergieeffizienz-Faktor: 0,73 (Klasse A)
  • Einmaliger Finanzierungsbeitrag: € 5.000,--
  • Monatliche Miete: € 520,74 (inkl. BK und USt)
  • Monatliches Betreuungsentgelt: € 76,

 

Die Wohnform betreutes Wohnen (für Personen ab dem 60. Lebensjahr bzw. für Personen mit Handicap) ist speziell auf die Bedürfnisse von Seniorinnen und Senioren ausgerichtet und ermöglicht eine selbstständige Lebensführung in den eigenen vier Wänden bis ins hohe Alter. Die Lage im Ortskern mit geeigneter Infrastruktur, barrierefreie Ausstattung und die soziale Grundbetreuung durch eine Betreuungsorganisation zeichnen sie aus.

Noch nichts gefunden Wir informieren Sie über geeignete Immobilienangebote noch vor allen anderen.
Legen Sie jetzt Ihren individuellen Suchagenten unter folgendem Link an. Wir schicken Ihnen passende Immobilien exklusiv vorab zu.
Suchagent anlegen - https://s-commerz-immobilienvermittlung.service.immo/registrieren/de

Wir weisen darauf hin, dass zwischen dem Vermittler und dem zu vermittelnden Dritten ein wirtschaftliches Naheverhältnis mit gesellschaftlicher Verflechtung besteht.


Infrastruktur / Entfernungen

Gesundheit
Arzt <500m
Apotheke <5.000m

Kinder & Schulen
Schule <500m
Kindergarten <500m

Nahversorgung
Supermarkt <500m
Bäckerei <5.500m

Sonstige
Bank <500m
Geldautomat <500m
Post <5.500m
Polizei <5.500m

Verkehr
Bus <500m

Angaben Entfernung Luftlinie / Quelle: OpenStreetMap

Barrierefrei: JA
Provision: Gemäß Erstauftraggeberprinzip bezahlt der Abgeber die Provision.


Alle Details anzeigen

KONTAKT






 

Lasse dich kostenlos vom Anbieter dieser Immobilie zurückrufen.







 


 
S-COMMERZ Immobilienvermittlung GmbH
Karin LOCSMANDI
Telefonnummer anzeigen Telefon Allgemein: +4350100672791
Handy Bearbeiter: +436648389815
 
Bitte dem Makler die FindMyHome.at - ID bekanntgeben: 5642948

Bewertungen dieses Anbieters
Qualitätsmakler
Qualitätsmakler:
2018, 2019, 2020,
Netiquette
Freundlichkeit

BEWERTUNGEN DIESES ANBIETERS

 
Qualit�tsmakler
Qualitätsmakler
2018, 2019, 2020
Freundlichkeit
BESONDERS
FREUNDLICH
Netiquette
FINDMYHOME
NETIQUETTE
Auch du kannst bewerten! 7 Tage nach deiner Anfrage erhältst du dafür von uns ein Bewertungsmail.
Alle Infos zu unseren Auszeichnungen und dem FINDMYHOME.AT Qualitätsprogramm findest du hier: Übersicht anzeigen


Du willst wissen, wie viel dein Umzug kosten wird?

Mach gleich den kostenlosen Preisvergleich und schau, welche seriösen Anbieter in deiner Region günstig deinen Umzug organisieren


ZUM UMZUGS-VERGLEICH
-->

MYHOME BLOG
SuchAgentin auf FindMyHome.at
Unterschiedlichen Rechtsthemen, köstliche Rezepte, neueste Design-Highlights, sowie aktuelle Technik-Tools für Ihr Eigenheim.


FINDMYHOME.AT SUCHAGENTIN
SuchAgentin auf FindMyHome.at
Hallo, soll ich dir ähnliche Immobilien kostenfrei per E-Mail schicken?


ÄHNLICHE IMMOBILIEN
Aehnliche Immobilie - Vorschaubild 1

Betreutes Wohnen in Randegg - Objektnr. 5642949


57,86 m² - 2.0 Zimmer
520.74 €
PLZ: 3263

Mehr anzeigen

Durch die Nutzung unserer Seite erklären Sie sich mit der Verwendung von Cookies zur Verbesserung Ihres Online-Erlebnisses einverstanden. Detaillierte Informationen zu diesem und weiteren Themen erhalten Sie in unserer Datenschutzerklärung.