Traumhaft geschnittene 3-Zimmerwohnung in 1110 Wien! - Objektnr. 5642889
ECKDATEN
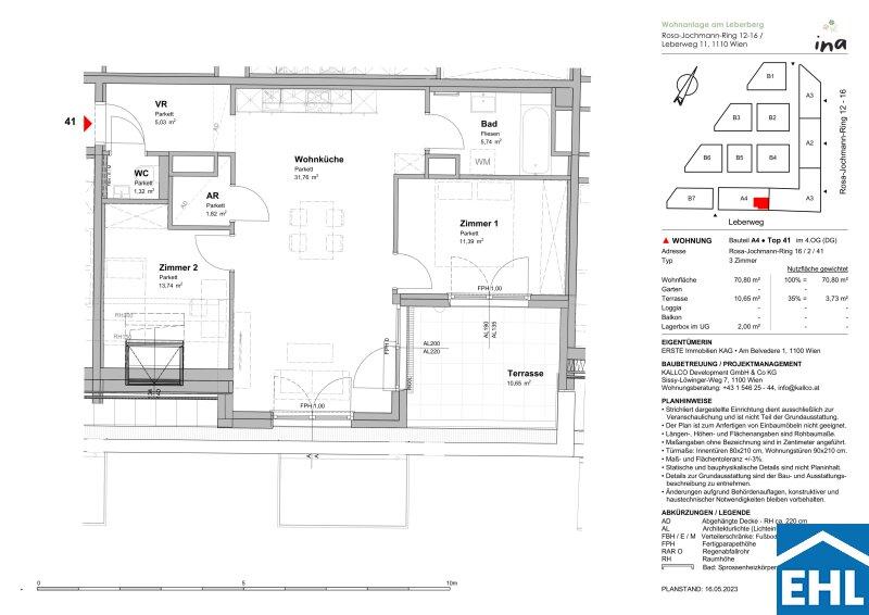
BESCHREIBUNG
KONTAKT
Lasse dich kostenlos vom Anbieter dieser Immobilie zurückrufen.
EHL Wohnen GmbH
Andreas Minarik
Andreas Minarik
Telefonnummer anzeigen
Telefon Allgemein: +4315127690425
Bitte dem Makler die FindMyHome.at - ID bekanntgeben: 5642889
Bitte dem Makler die FindMyHome.at - ID bekanntgeben: 5642889
BEWERTUNGEN DIESES ANBIETERS
UNSERE HALL OF FAME DER BESTEN ANBIETER
Qualitätsmakler
2012, 2013, 2014, 2015, 2016, 2017, 2018, 2019, 2020, 2021, 22/23, 2024, 2025
2012, 2013, 2014, 2015, 2016, 2017, 2018, 2019, 2020, 2021, 22/23, 2024, 2025
WIRD GERNE
WEITEREMPFOHLEN
WEITEREMPFOHLEN
BESONDERS
FREUNDLICH
FREUNDLICH
FINDMYHOME.AT
NETIQUETTE
NETIQUETTE
Auch du kannst bewerten! 7 Tage nach deiner Anfrage erhältst du dafür von uns ein Bewertungsmail.
Alle Infos zu unseren Auszeichnungen und dem FINDMYHOME.AT Qualitätsprogramm findest du hier: Übersicht anzeigen
Alle Infos zu unseren Auszeichnungen und dem FINDMYHOME.AT Qualitätsprogramm findest du hier: Übersicht anzeigen
Du willst wissen, wie viel dein Umzug kosten wird?
Mach gleich den kostenlosen Preisvergleich und schau, welche seriösen Anbieter in deiner Region günstig deinen Umzug organisieren
ZUM UMZUGS-VERGLEICH


























