MEIN ERGEBNIS ANPASSEN

Hofseitiger Balkon! Ihre Chance - Top-Haus, Top-Lage, Top-Potenzial! Gestalten Sie Ihr Meisterwerk und erfüllen Sie sich Ihren Wohntraum! Rundum saniertes Gebäude inkl. Lift! - Objektnr. 5642816

1160
Ort
80,45 m²
Fläche
3.5
Zimmer

ECKDATEN
FindMyHome.at // Externe Immobilien-ID5642816 // 296945
ImmobilienartEigentum
AnschriftHerbststraße
1160 Wien,Ottakring
Baujahr1899
Stock3
Geschosse6
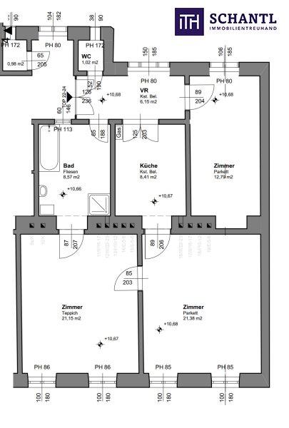
Fläche80,45 m²
Zimmer3.5
Bad1
WC1
 Abstellraum
Kaufpreis:€ 319.000,00
Ratenzahlung:Finanzierungsmöglichkeiten für diese Immobilie anzeigen
Provision: 3% des Kaufpreises zzgl. 20% USt.







BESCHREIBUNG

Hofseitiger Balkon! Ihre Chance - Top-Haus, Top-Lage, Top-Potenzial! Gestalten Sie Ihr Meisterwerk und erfüllen Sie sich Ihren Wohntraum! Rundum saniertes Gebäude inkl. Lift!

Hofseitiger Balkon! Ihre Chance - Top-Haus, Top-Lage, Top-Potenzial! Gestalten Sie Ihr Meisterwerk und erfüllen Sie sich Ihren Wohntraum! Rundum saniertes Gebäude inkl. Lift!

Ein bisschen Arbeit, sehr viel Wow!

 

Ihre neue Wohnung wird Sie begeistern und bietet Ihnen die Chance Ihre eigenen Vorstellungen umzusetzen! Sie teilt sich in einen geräumigen Vorraum, ein separates WC mit Fenster, ein hofseitiges und sehr ruhiges Schlafzimmer, eine separate Küche, ein großes Badezimmer mit Badewanne, Dusche und Waschmaschinenanschluss, ein großes und gemütliches Wohn-Esszimmer, sowie ein großes Master-Bedroom.

Es steht Ihnen natürlich frei, die Räume ganz nach Ihren Wünschen und Bedarf zu gestalten.

Das schöne Altbauhaus wurde bereits 2018 rundum saniert, die Steigleitungen erneuert, ein Lift eingebaut sowie das Dachgeschoss ausgebaut.

In der Wohnung selbst, wurden auch bereits 2018 die Fenster erneuert und ein attraktiver Balkon angebaut!

 

Altbau + Lift + Balkon + Ruhe Ja, das gibts!

Wohnfläche: ca. 80,45m² + Balkon: ca. 6,20m²

Kaufpreis: € 319.000.-

Bezug: ab sofort

 

Worauf warten Sie noch Dieser Rohdiamant wird nicht lange zu haben sein!

www.schantl -ith.at

 

Bei konkretem Interesse senden wir Ihnen sehr gerne weiterführende Dokumente zu, wie:

o Grundbuchauszug

o Wohnungseigentumsvertrag

o Nutzwertgutachten

o Eigentümerversammlungsprotokoll (Falls vorhanden) etc...

 

Unser Service für Sie: Wenn Sie sich für diese Immobilie entschieden haben, begleiten wir Sie gerne vom Kaufanbot weg inkl. Klärung von Sonderwünschen und der Vertragsunterzeichnung über die Wohnungsübergabe bis hin zu diversen Ummeldungen wie Strom und Gas. Entsprechende Formulare oder auch Meldezettel stellen wir Ihnen sehr gerne zur Verfügung.

Gerne unterstützen wir Sie auch bei der Finanzierung Ihres Traumobjekts und finden mit unseren langjährigen Partnern die besten Konditionen für Sie.

Vereinbaren Sie noch heute einen Termin, wir beraten Sie gerne!

www.schantl-ith.at

Wir weisen darauf hin, dass zwischen dem Vermittler und dem zu vermittelnden Dritten ein familiäres oder wirtschaftliches Naheverhältnis besteht.

Der Vermittler ist als Doppelmakler tätig.


Infrastruktur / Entfernungen

Gesundheit
Arzt <250m
Apotheke <250m
Klinik <750m
Krankenhaus <1.750m

Kinder & Schulen
Schule <250m
Kindergarten <250m
Universität <1.000m
Höhere Schule <1.000m

Nahversorgung
Supermarkt <250m
Bäckerei <250m
Einkaufszentrum <750m

Sonstige
Geldautomat <250m
Bank <500m
Post <500m
Polizei <500m

Verkehr
Bus <250m
U-Bahn <750m
Straßenbahn <250m
Bahnhof <750m
Autobahnanschluss <4.500m

Angaben Entfernung Luftlinie / Quelle: OpenStreetMap

Objekt ist für eine Wohngemeinschaft geeignet
Provision: 3% des Kaufpreises zzgl. 20% USt.


Alle Details anzeigen

KONTAKT






 

Lasse dich kostenlos vom Anbieter dieser Immobilie zurückrufen.







 


 
Schantl ITH Immobilientreuhand GmbH
Samir Agha-Schantl
Telefonnummer anzeigen Telefon Allgemein: +436643070009
Handy Bearbeiter: +436604701793
 
Bitte dem Makler die FindMyHome.at - ID bekanntgeben: 5642816

Bewertungen dieses Anbieters
Qualitätsmakler
Qualitätsmakler:
2015, 2016, 2018, 2019, 2020, 2021, 2023 , 2024, 2025,
Netiquette
Freundlichkeit
80 %

BEWERTUNGEN DIESES ANBIETERS

 
Qualit�tsmakler
Qualitätsmakler
2015, 2016, 2018, 2019, 2020, 2021, 22/23, 2024, 2025
Antwortzeit
ø 48h ANTWORT
Weiterempfehlung
WIRD GERNE

Freundlichkeit
BESONDERS
FREUNDLICH
Netiquette
FINDMYHOME
NETIQUETTE
Auch du kannst bewerten! 7 Tage nach deiner Anfrage erhältst du dafür von uns ein Bewertungsmail.
Alle Infos zu unseren Auszeichnungen und dem FINDMYHOME.AT Qualitätsprogramm findest du hier: Übersicht anzeigen

FINANZIERUNG
?>

Du willst wissen, wie viel dein Umzug kosten wird?

Mach gleich den kostenlosen Preisvergleich und schau, welche seriösen Anbieter in deiner Region günstig deinen Umzug organisieren


ZUM UMZUGS-VERGLEICH
-->

MYHOME BLOG
SuchAgentin auf FindMyHome.at
Unterschiedlichen Rechtsthemen, köstliche Rezepte, neueste Design-Highlights, sowie aktuelle Technik-Tools für Ihr Eigenheim.


FINDMYHOME.AT SUCHAGENTIN
SuchAgentin auf FindMyHome.at
Hallo, soll ich dir ähnliche Immobilien kostenfrei per E-Mail schicken?


ÄHNLICHE IMMOBILIEN
Aehnliche Immobilie - Vorschaubild 1

#SQ - URBANE PRAKTISCH AUFGETEILTE 2-ZIMMER-BALKONWOHNUNG BE... - Objektnr. 5640083

68,50 m² - 2.0 Zimmer
269000 €
PLZ: 1160

Mehr anzeigen

Aehnliche Immobilie - Vorschaubild 2

Letzte Wohnung! Neuer Preis! Happy in Ottakring! Tolle 2-Zim... - Objektnr. 5642092

75,06 m² - 2.0 Zimmer
299000 €
PLZ: 1160

Mehr anzeigen

Aehnliche Immobilie - Vorschaubild 3

++ WERTANLAGE ++ ZUKUNFTSORIENTIERT INVESTIEREN + rd. 4% Ren... - Objektnr. 5625482

66,95 m² - 3.0 Zimmer
299000 €
PLZ: 1160

Mehr anzeigen

Durch die Nutzung unserer Seite erklären Sie sich mit der Verwendung von Cookies zur Verbesserung Ihres Online-Erlebnisses einverstanden. Detaillierte Informationen zu diesem und weiteren Themen erhalten Sie in unserer Datenschutzerklärung.