MEIN ERGEBNIS ANPASSEN

72 m² DG-Wohnung - 2 Zimmer - fußläufig U6/S-Bahn - sofort beziehbar - Objektnr. 5642218

1210
Ort
72,16 m²
Fläche
2.0
Zimmer

ECKDATEN
FindMyHome.at // Externe Immobilien-ID5642218 // 7191/235
ImmobilienartWohnung - Eigentum
Anschrift1210 Wien
Fläche72,16 m²
Zimmer2.0
Kaufpreis:€ 227.000,00
Ratenzahlung:Finanzierungsmöglichkeiten für diese Immobilie anzeigen
Provision: 3% des Kaufpreises zzgl. 20% USt.







BESCHREIBUNG

72 m² DG-Wohnung - 2 Zimmer - fußläufig U6/S-Bahn - sofort beziehbar

Sonne. Ruhe. Alte Donau ums Eck.

 

Wer Dachgeschoß-Wohngefühl liebt, findet hier einen selten angenehmen Mix aus Licht, Ruhe und Alltagstauglichkeit: ca. 72 m², 2 Zimmer, große Wohnküche und sofort beziehbar. Dazu eine Lage, die urbanes Leben mit Grün verbindet Wasserpark/Alte Donau und gleichzeitig sehr gute Öffi-Anbindung. Ideal für Singles, Paare oder Käufer mit Homeoffice-Bedarf.

Diese Immobilie wird in Form einer digitalen Angebotslegung vermittelt. Das bedeutet, der angezeigte Preis ist ein Startpreis und kann im Laufe des Prozesses höher sein. Jetzt besichtigen!

Highlights

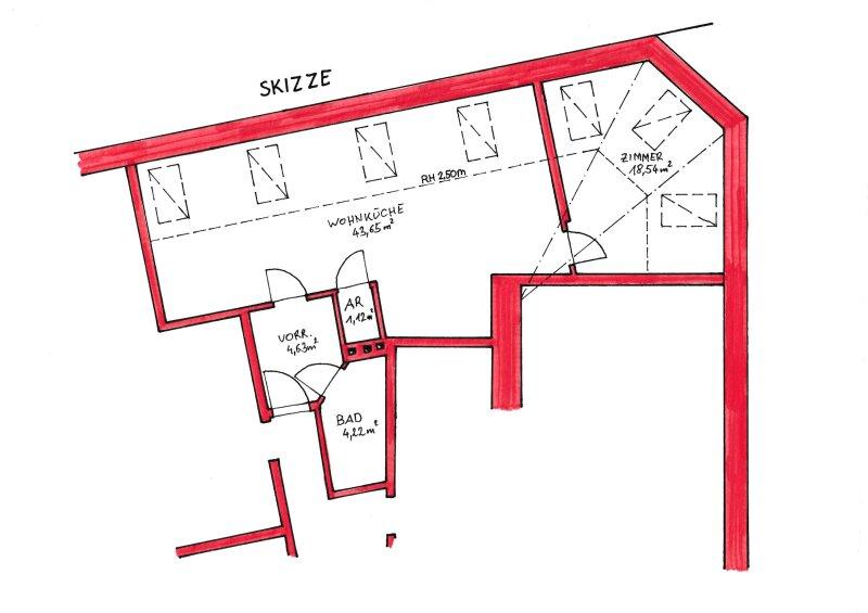
  • Ca. 72,16 m² Wohnfläche, 2 Zimmer

  • Dachgeschoß-Atmosphäre: hell, ruhig, angenehmes Raumgefühl

  • Große Wohnküche als Mittelpunkt

  • Sofort beziehbar (kein Einzug in 6 Monaten)

  • Sehr gute Öffi-Anbindung (U-Bahn/Straßenbahn/Bus in der Nähe)

  • Nähe Wasserpark/Alte Donau: Freizeitwert & Lebensqualität

  • Großes Kellerabteil (praktischer Stauraum)

  • Energieausweis vorhanden (HWB 66 | fGEE 1,36)

 

Raumaufteilung 

  • Wohnküche der zentrale Lebensbereich

  • Schlafzimmer separater Rückzugsraum

  • Bad/WC

  • Vorraum / Stauraum

  • Kellerabteil (überdurchschnittlich groß)

 

Ehrlich & klar

Die Wohnung liegt im Dachgeschoß (2. Stock) ohne Lift. Wenn Stiegen für Sie grundsätzlich okay sind, bekommen Sie dafür Dachgeschoß-Licht und ein sehr angenehmes Wohngefühl zu einem Preis, der genau das berücksichtigt. Die Innenhof-Fassade braucht ein Update die Sanierung ist bereits vorgesehen. Ich kann Ihnen Rücklagenstand, Protokolle und den aktuellen Informationsstand dazu zeigen. Das Kellerabteil ist geräumig und ausbaufähig.

Für Sie heißt das: Beste Lage & Substanz mit großem Potenzial!

 

Fazit

Ein Zuhause für Menschen, die Tempo und Tiefenentspannung zugleich wollen: Schnell im Zentrum. Schnell am Wasser. Und daheim über den Dächern ruhig, hell, großzügig.

 

Finanzierung benötigt

Sichern Sie sich jetzt unsere unabhängige Finanzierungsberatung wir bieten alles aus einer Hand, maßgeschneidert, bankenübergreifend und ohne Beratungskosten. wir vergleichen für Sie die Konditionen mehrerer Banken, optimieren Fixzins-  und. variabele Angebote, Laufzeit und Sondertilgungen. Wir rechnen Ihre monatliche Rate realistisch durch, berücksichtigen Nebenkosten und erstellen eine tragfähige Strategie vom Vorkredit-Check bis zur strukturierten Unterlagenliste für eine zügige Zusage.

Kurz: Sie entscheiden, wir liefern klare Zahlen und die beste Option für Ihr Ziel.

Wenden Sie sich einfach an uns, wir erledigen alles aus einer Hand!

 

Der Vermittler ist als Doppelmakler tätig.


Infrastruktur / Entfernungen

Gesundheit
Arzt <500m
Apotheke <500m
Klinik <500m
Krankenhaus <1.500m

Kinder & Schulen
Schule <500m
Kindergarten <500m
Universität <1.000m
Höhere Schule <500m

Nahversorgung
Supermarkt <500m
Bäckerei <500m
Einkaufszentrum <500m

Sonstige
Geldautomat <500m
Bank <500m
Post <1.000m
Polizei <500m

Verkehr
Bus <500m
U-Bahn <500m
Straßenbahn <500m
Bahnhof <500m
Autobahnanschluss <500m

Angaben Entfernung Luftlinie / Quelle: OpenStreetMap

Provision: 3% des Kaufpreises zzgl. 20% USt.


Alle Details anzeigen

KONTAKT






 

Lasse dich kostenlos vom Anbieter dieser Immobilie zurückrufen.







 


 
Hillinger Immobilien GmbH
Robert Holzmann
Telefonnummer anzeigen Telefon Allgemein: +4366499960996
 
Bitte dem Makler die FindMyHome.at - ID bekanntgeben: 5642218

Bewertungen dieses Anbieters
Freundlichkeit
100 %

BEWERTUNGEN DIESES ANBIETERS

 
Weiterempfehlung
WIRD SEHR GERNE

Freundlichkeit
BESONDERS
FREUNDLICH
Auch du kannst bewerten! 7 Tage nach deiner Anfrage erhältst du dafür von uns ein Bewertungsmail.
Alle Infos zu unseren Auszeichnungen und dem FINDMYHOME.AT Qualitätsprogramm findest du hier: Übersicht anzeigen

FINANZIERUNG
?>

Du willst wissen, wie viel dein Umzug kosten wird?

Mach gleich den kostenlosen Preisvergleich und schau, welche seriösen Anbieter in deiner Region günstig deinen Umzug organisieren


ZUM UMZUGS-VERGLEICH
-->

MYHOME BLOG
SuchAgentin auf FindMyHome.at
Unterschiedlichen Rechtsthemen, köstliche Rezepte, neueste Design-Highlights, sowie aktuelle Technik-Tools für Ihr Eigenheim.


FINDMYHOME.AT SUCHAGENTIN
SuchAgentin auf FindMyHome.at
Hallo, soll ich dir ähnliche Immobilien kostenfrei per E-Mail schicken?


ÄHNLICHE IMMOBILIEN
Aehnliche Immobilie - Vorschaubild 1

3-Zimmer Wohnung mit Top-Anbindung | ca. 60 m² | Floridsdorf... - Objektnr. 5624191

60,00 m² - 3.0 Zimmer
217000 €
PLZ: 1210

Mehr anzeigen

Aehnliche Immobilie - Vorschaubild 2

2-Zimmerwohnung mit Terrasse - Objektnr. 5636536


64,52 m² - 2 Zimmer
234000 €
PLZ: 1210

Mehr anzeigen

Aehnliche Immobilie - Vorschaubild 3

1210 Wien - 2 Zimmerwohnung - Objektnr. 5615275


71,47 m² - 2.0 Zimmer
268000 €
PLZ: 1210

Mehr anzeigen

Durch die Nutzung unserer Seite erklären Sie sich mit der Verwendung von Cookies zur Verbesserung Ihres Online-Erlebnisses einverstanden. Detaillierte Informationen zu diesem und weiteren Themen erhalten Sie in unserer Datenschutzerklärung.