MEIN ERGEBNIS ANPASSEN

floé 225 - Stilvolle 2-Zimmer-Gartenwohnung Neubau & bereits attraktiv vermietet - Objektnr. 5641999

virtuell besichtigen
  • Übersicht
  • Seitenansicht Anlage
  • Blick vom Gemeinschaftsgarten
  • Stiegenhaus
  • Beispielbild Küche
  • Beispielbild Wohnzimmer
  • Beispielbild Terrasse
  • Beispielbild Balkon
  • Beispielbild Badezimmer
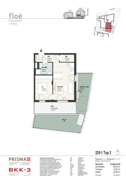
  • Grundriss
  • Lageplan
  • Untergeschoss Haus 1 - Einlagerungs- und Fahrradraum
  • Garagengeschoss + Einlagerungsräume
  • Schnitt
  • 1. Obergeschoss Haus 1
1140
Ort
46,52 m²
Fläche
2.0
Zimmer
WEITERE MEDIEN

ECKDATEN
FindMyHome.at // Externe Immobilien-ID5641999 // 7482/1521
ImmobilienartAnlage-Vorsorgewohnung - Eigentum
AnschriftFlötzersteig 225/2
1140 Wien
Baujahr2023
Geschosse4
Mietdauer5
Fläche46,52 m²
Terrassen1 (14,00 m²)
Zimmer2.0
Bad1
WC1
 Abstellraum
Kaufpreis:€ 340.000,00
Ratenzahlung:Finanzierungsmöglichkeiten für diese Immobilie anzeigen
Provision: 3% des Kaufpreises zzgl. 20% USt.







BESCHREIBUNG

floé 225 - Stilvolle 2-Zimmer-Gartenwohnung Neubau & bereits attraktiv vermietet

Diese bereits vermietete 2-Zimmer-Gartenwohnung bietet Investor:innen eine attraktive Gelegenheit, in ein modernes Neubauprojekt mit stabiler Nachfrage zu investieren. Mit kontinuierlichen Mieteinnahmen (Stand 03/2026: 860€ netto/Monat) und einer soliden Rendite (derzeit: ca. 3%) eignet sich die Wohnung ideal als langfristige, wertbeständige Kapitalanlage.

Die freundliche Top 02 befindet sich in Haus 1 und überzeugt durch ihren intelligent geplanten Grundriss sowie eine lichtreiche Süd-/Ost-Ausrichtung. Sowohl der helle Wohn- und Essbereich als auch das Schlafzimmer öffnen sich zur südseitigen Terrasse und zum privaten Garten ein gefragtes Merkmal, das nachhaltig zur Vermietbarkeit beiträgt.

Die Ausstattung entspricht modernen Mieterwünschen:
Eine hochwertige Einbauküche mit MIELE-Geräten, Eichen-Parkettboden sowie Feinsteinzeugfliesen im Bad/WC sorgen für langlebige Qualität. Im Winter schafft die Fußbodenheizung angenehme Wärme. An heißen Sommertagen bietet die Kombination aus elektrisch gesteuertem, außenliegendem Sonnenschutz und Temperierung via Fußbodenheizungskreislauf (Wärmepumpe, Abkühlung um ca. 2-3 °C, ohne fossile Energieträger) spürbare Entlastung ein Pluspunkt für Energieeffizienz und Betriebskosten.

Die Allgemeinflächen bieten zusätzlichen Komfort und erhöhen die Attraktivität für künftige Mieter:innen:

  • Derzeit mit der Wohnung vermieteter KFZ-Stellplatz in der Tiefgarage (ELadepunkte vorbereitet) - zzgl. 40.000€ exkl. USt.
  • Kellerabteil, Fahrrad- und Kinderwagenabstellraum
  • Digitale Paketstation (myRENZbox)
  • Kleinkinderspielplatz und Sitzbereiche im Hof
  • Gemeinschaftsgarten und Hochbeete zur Mitnutzung

Für einen Beratungstermin stehen wir gerne persönlich zur Verfügung.

Die angegebenen Kaufpreise verstehen sich netto zzgl. 20% USt.


Die Bilder und der 360°-Rundgang dienen als Beispiele aus ähnlichen Wohnungen derselben Anlage.

Wir weisen darauf hin, dass zwischen dem Vermittler und dem zu vermittelnden Dritten ein familiäres oder wirtschaftliches Naheverhältnis besteht.

Der Vermittler ist als Doppelmakler tätig.

Alle Angaben vorbehaltlich Änderungen und Irrtümer. Abbildungen, insbesondere Renderings haben Symbolcharakter.


Infrastruktur / Entfernungen

Gesundheit
Arzt <350m
Apotheke <475m
Klinik <1.475m
Krankenhaus <550m

Kinder & Schulen
Schule <250m
Kindergarten <925m
Universität <2.025m
Höhere Schule <3.625m

Nahversorgung
Supermarkt <375m
Bäckerei <650m
Einkaufszentrum <3.350m

Sonstige
Geldautomat <425m
Bank <425m
Post <950m
Polizei <775m

Verkehr
Bus <225m
U-Bahn <850m
Straßenbahn <325m
Bahnhof <825m
Autobahnanschluss <3.700m

Angaben Entfernung Luftlinie / Quelle: OpenStreetMap

Klimaanlage: JA
Gartennutzung: JA
Kabel/SAT/TV: JA
Barrierefrei: JA
Provision: 3% des Kaufpreises zzgl. 20% USt.


Alle Details anzeigen

KONTAKT






 

Lasse dich kostenlos vom Anbieter dieser Immobilie zurückrufen.







 


 
PRISMA Unternehmensgruppe
Matthias Rüf
Telefonnummer anzeigen Handy Bearbeiter: +436648538947
 
Bitte dem Makler die FindMyHome.at - ID bekanntgeben: 5641999

BEWERTUNGEN DIESES ANBIETERS


Die Anzahl der Bewertungen dieses Anbieters ist noch nicht aussagekrätig.
 
Auch du kannst bewerten! 7 Tage nach deiner Anfrage erhältst du dafür von uns ein Bewertungsmail.
Alle Infos zu unseren Auszeichnungen und dem FINDMYHOME.AT Qualitätsprogramm findest du hier: Übersicht anzeigen

FINANZIERUNG
?>

Du willst wissen, wie viel dein Umzug kosten wird?

Mach gleich den kostenlosen Preisvergleich und schau, welche seriösen Anbieter in deiner Region günstig deinen Umzug organisieren


ZUM UMZUGS-VERGLEICH
-->

MYHOME BLOG
SuchAgentin auf FindMyHome.at
Unterschiedlichen Rechtsthemen, köstliche Rezepte, neueste Design-Highlights, sowie aktuelle Technik-Tools für Ihr Eigenheim.


FINDMYHOME.AT SUCHAGENTIN
SuchAgentin auf FindMyHome.at
Hallo, soll ich dir ähnliche Immobilien kostenfrei per E-Mail schicken?


ÄHNLICHE IMMOBILIEN
Aehnliche Immobilie - Vorschaubild 1

Die Symbiose - Leben zwischen Stadtgefühl und Rückzug... - Objektnr. 5637857

51,56 m² - 2.0 Zimmer
374016 €
PLZ: 1140

Mehr anzeigen

Aehnliche Immobilie - Vorschaubild 2

Die Symbiose - Leben zwischen Stadtgefühl und Rückzug... - Objektnr. 5637851

51,56 m² - 2.0 Zimmer
381209 €
PLZ: 1140

Mehr anzeigen

Aehnliche Immobilie - Vorschaubild 3

floé 225 - Stilvolle 2-Zimmer-Wohnung mit Ausblick Neubau &... - Objektnr. 5641998

53,38 m² - 2.0 Zimmer
390000 €
PLZ: 1140

Mehr anzeigen

Durch die Nutzung unserer Seite erklären Sie sich mit der Verwendung von Cookies zur Verbesserung Ihres Online-Erlebnisses einverstanden. Detaillierte Informationen zu diesem und weiteren Themen erhalten Sie in unserer Datenschutzerklärung.