MEIN ERGEBNIS ANPASSEN

NEU! 5 Zimmer Garten + 2 Terrassen Nähe U6 1230 Wien - Objektnr. 5641602

1230
Ort
125,10 m²
Fläche
5.0
Zimmer

ECKDATEN
FindMyHome.at // Externe Immobilien-ID5641602 // 28465
ImmobilienartHaus - Eigentum
Anschrift/1
1230 Wien
Baujahr2024
Geschosse3
Fläche125,10 m²
Terrassen2 (24,00 m²)
Zimmer5.0
Bad2
WC3
Kaufpreis:€ 749.000,00
Ratenzahlung:Finanzierungsmöglichkeiten für diese Immobilie anzeigen
Provision: 3% des Kaufpreises zzgl. 20% USt.







BESCHREIBUNG

NEU! 5 Zimmer Garten + 2 Terrassen Nähe U6 1230 Wien

  • PROJEKT:

In der Nähe der U6-Station Perfektastraße im 23. Bezirk stehen ab sofort drei hochwertige Reihenhäuser zum Verkauf.

Die Häuser bieten 5-6 Zimmer, zwei Terrassen, eigene PKW-Stellplätze sowie private Gärten.

Es handelt sich um Eigentum kein Pacht- oder Baurecht.

Die Wohnflächen liegen zwischen 122 m² und 133 m² und bieten reichlich Platz für die ganze Familie sowie Homeoffice.

Modernste Ausstattung und zukunftsorientiertes Design machen diese Häuser zur perfekten Wahl.

Die Heizung im Winter sowie die Kühlung im Sommer erfolgen über den Fußboden mittels einer eigenen Luftwärmepumpe.

  • PHOTOVOLTAIK: 

Im Kaufpreis ist eine Photovoltaikanlage (5 kWp am Dach inklusive Wechselrichter) bereits enthalten.

In Kombination mit einer energieeffizienten Luft-Wärmepumpe, die über die Fußboden sowohl heizen als auch kühlen kann, können die laufenden Energiekosten nachhaltig und deutlich reduziert werden.

Bei entsprechender technischer Ausstattung (z. B. Batteriespeicher mit Notstromfunktion) kann die Anlage auch bei einem Blackout eine eingeschränkte Stromversorgung gewährleisten und sorgt somit für ein zusätzliches Maß an Unabhängigkeit.

Gleichzeitig bietet dieses System einen wirksamen Schutz vor steigenden Energiepreisen.

Das bedeutet langfristige Ersparnis und mehr Sicherheit für Ihre Familie gerade in unsicheren Zeiten.

  • KÜCHE: 

Eine neue, vollständig ausgestattete Küche mit Geräten ist ebenfalls im Kaufpreis enthalten.

----------------------------------------------------------------------------------------

  • ÜBERBLICK:

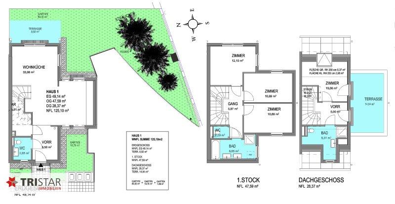
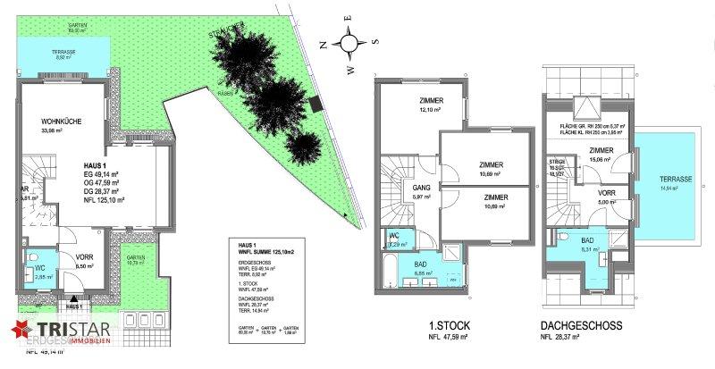
HAUS 1: Gesamtfläche ca. 234 m²

WNFL ca. 125,10 m² (5 Zimmer) + Garten ca. 73 m² + Terrasse (EG) ca. 9 m² + Terrasse (DG) ca. 15 m² + PKW Stellplatz 

Kaufpreis: EUR 749.000,- Schlüsselfertig,  inkl. Photovoltaikanlage , Küche und PKW Stellplatz

  •  

HAUS 2: VERKAUFT!

HAUS 3: VERKAUFT!

----------------------------------------------------------------------------------------

  • TOP LAGE:

DETAILLIERTES LAGEEXPOSÉ (68 Seiten!) vorhanden und erfolgt umgehend nach Anfrage.

  • VERMITTLUNGSPROVISION / DOPPELMAKLERTÄTIGKEIT:

Der Ordnung halber wird darauf hingewiesen, dass die Vermittlungsprovision 3 % des Kaufpreises zuzüglich 20 % USt. (insgesamt 3,6 %) beträgt und mit Zustandekommen des vermittelten Rechtsgeschäfts (Annahme des Kaufanbots ohne aufschiebende Bedingungen durch den Verkäufer) fällig wird. Der Makler ist als Doppelmakler tätig.

NEU! 5 Zimmer Garten + 2 Terrassen Nähe U6 1230 Wien

NEU! ++ Nähe U6 Perfektastraße ++ 3 Häuser mit Garten und PKW-Stellplatz ++ 1230 Wien ++ Eigentum

  • Projekt: 

In der Nähe der U6-Station Perfektastraße im 23. Bezirk stehen ab sofort drei hochwertige Reihenhäuser zum Verkauf.

Die Häuser bieten 5-6 Zimmer, zwei Terrassen, eigene PKW-Stellplätze sowie private Gärten.

Es handelt sich um Eigentum kein Pacht- oder Baurecht.

Die Wohnflächen liegen zwischen 122 m² und 133 m² und bieten reichlich Platz für die ganze Familie sowie Homeoffice.

Modernste Ausstattung und zukunftsorientiertes Design machen diese Häuser zur perfekten Wahl.

----------------------------------------------------------------------------------------

  • Überblick der derzeit verfügbaren Häuser:

HAUS 1: Gesamtfläche ca. 234 m²

WNFL ca. 125,10 m² (5 Zimmer) + Garten ca. 73 m² + Terrasse (EG) ca. 9 m² + Terrasse (DG) ca. 15 m² + PKW Stellplatz = EUR 799.000,- Schlüsselfertig und inkl. PKW Stellplatz

  •  

HAUS 2: Gesamtfläche ca. 171 m²

WNFL ca. 133,36 m² (6 Zimmer) + Garten ca. 23 m² + Terrasse (EG) ca. 7,63 m² + Terrasse (DG) ca. 6,55 m² + PKW Stellplatz = EUR 799.000,- Schlüsselfertig und inkl. PKW Stellplatz

  •  

HAUS 3: Gesamtfläche ca. 260 m²

WNFL ca. 122,69 m² (5 Zimmer) + Garten ca. 117 m² + Terrasse (EG) ca. 9,60 m² + Terrasse (DG) ca. 11 m² + PKW Stellplatz = EUR 799.000,- Schlüsselfertig und inkl. PKW Stellplatz

----------------------------------------------------------------------------------------

  • Top Lage:

DETAILLIERTES LAGEEXPOSÉ (68 Seiten!) vorhanden und erfolgt umgehend nach Anfrage.

  • Moderne und maßgeschneiderte Finanzierung:

Hausbank war gestern!

Heutzutage haben wir für Sie online und sofortigen Zugang zu den besten und neuesten Finanzprodukten von über 120 Kreditinstituten in Österreich und Deutschland.

Genau wie beim Immobilienvergleich, ermöglichen wir Ihnen, alle relevante Bankangebote zu vergleichen, um das beste für Sie zu finden!

Auch Angebote ohne Eigenmittel, mit festen Zinssätzen und einer beeindruckenden Laufzeit von bis zu 45 Jahren sind verfügbar!

So sparen Sie Zeit, Geld und Nerven!

Wir weisen darauf hin, dass zwischen dem Vermittler und dem zu vermittelnden Dritten ein familiäres oder wirtschaftliches Naheverhältnis besteht.

Der Vermittler ist als Doppelmakler tätig.

Objekt ist für eine Wohngemeinschaft geeignet
Provision: 3% des Kaufpreises zzgl. 20% USt.


Alle Details anzeigen

KONTAKT






 

Lasse dich kostenlos vom Anbieter dieser Immobilie zurückrufen.







 


 
TRISTAR Immobilien
TRISTAR Immobilien
Telefonnummer anzeigen Handy Bearbeiter: +436769017374
 
Bitte dem Makler die FindMyHome.at - ID bekanntgeben: 5641602

Bewertungen dieses Anbieters
Qualitätsmakler
Qualitätsmakler:
2017, 2019, 2020, 2021,
Netiquette
Freundlichkeit

BEWERTUNGEN DIESES ANBIETERS

 
Qualit�tsmakler
Qualitätsmakler
2017, 2019, 2020, 2021
Freundlichkeit
BESONDERS
FREUNDLICH
Netiquette
FINDMYHOME
NETIQUETTE
Auch du kannst bewerten! 7 Tage nach deiner Anfrage erhältst du dafür von uns ein Bewertungsmail.
Alle Infos zu unseren Auszeichnungen und dem FINDMYHOME.AT Qualitätsprogramm findest du hier: Übersicht anzeigen

FINANZIERUNG
?>

Du willst wissen, wie viel dein Umzug kosten wird?

Mach gleich den kostenlosen Preisvergleich und schau, welche seriösen Anbieter in deiner Region günstig deinen Umzug organisieren


ZUM UMZUGS-VERGLEICH
-->

MYHOME BLOG
SuchAgentin auf FindMyHome.at
Unterschiedlichen Rechtsthemen, köstliche Rezepte, neueste Design-Highlights, sowie aktuelle Technik-Tools für Ihr Eigenheim.


FINDMYHOME.AT SUCHAGENTIN
SuchAgentin auf FindMyHome.at
Hallo, soll ich dir ähnliche Immobilien kostenfrei per E-Mail schicken?


ÄHNLICHE IMMOBILIEN
Aehnliche Immobilie - Vorschaubild 1

Your Dream Home in Vienna-Liesing ? Modern, Bright & Family-... - Objektnr. 5598486

127,00 m² - 5 Zimmer
679000 €
PLZ: 1230

Mehr anzeigen

Aehnliche Immobilie - Vorschaubild 2

DOPPELHAUSHÄLFTEN | BEGEHRTE LAGE | BAUBEGINN FRÜHJAHR 2026... - Objektnr. 5431576

108,36 m² - 4.0 Zimmer
798000 €
PLZ: 1230

Mehr anzeigen

Aehnliche Immobilie - Vorschaubild 3

Doppelhaus-Neubau mit Garten, Terrasse & Dachterrasse ? Schl... - Objektnr. 5598488

126,71 m² - 5 Zimmer
679000 €
PLZ: 1230

Mehr anzeigen

Durch die Nutzung unserer Seite erklären Sie sich mit der Verwendung von Cookies zur Verbesserung Ihres Online-Erlebnisses einverstanden. Detaillierte Informationen zu diesem und weiteren Themen erhalten Sie in unserer Datenschutzerklärung.