MEIN ERGEBNIS ANPASSEN

Smart wohnen in der Smart City Graz - Ihr neues Zuhause wartet - Objektnr. 5641263

  • Stiegenhaus
8020
Ort
€ 1.045,00
Gesamtkosten
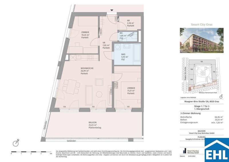
66,96 m²
Fläche
3.0
Zimmer
WEITERE MEDIEN

ECKDATEN
FindMyHome.at // Externe Immobilien-ID5641263 // 74608
ImmobilienartWohnung - Miete
AnschriftWaagner-Biro-Straße/3
8020 Graz
Stock1
Beziehbar ab2026-01-01
Mietdauer5
Fläche66,96 m²
Zimmer3.0
Bad1
WC1
 Abstellraum
Kaution:€ 3.135,00
Brutto-Miete:€ 1.045,00
Betriebskosten (inkl. MwSt):€ 181,19
Mehrwertsteuer:€ 95,00
Monatliche Gesamtkosten:€ 1.045,00
Provision: Gemäß Erstauftraggeberprinzip bezahlt der Abgeber die Provision.




BESCHREIBUNG

Smart wohnen in der Smart City Graz - Ihr neues Zuhause wartet

Modernes Wohnen im Smart Quadrat Ihr Zuhause im Herzen der Smart City Graz

Willkommen im Smart Quadrat, einem modernen Wohnprojekt im Herzen der Smart City Graz. Perfekt für Familien, Studierende, Berufstätige oder Best Ager, die stadtnah und dennoch ruhig wohnen möchten. Nur wenige Minuten vom pulsierenden Stadtzentrum entfernt, verbindet das Smart Quadrat urbanes Leben mit Rückzug und Erholung.

Mehr als Wohnen

Durchdachte Grundrisse, großzügige Wohnflächen und ein vielseitiger Wohnungsmix bieten für jede Lebensphase das passende Zuhause. Gemeinschafts- und Serviceflächen: Fitnessräume, Shared Offices, Spielplätze, Washing-Lounges, Fahrradwerkstatt, Hobby- & Freizeiträume. Nahversorgung, Bäckerei mit Café und Einkaufsmöglichkeiten fußläufig erreichbar. Auf dem Nachbargrundstück entsteht eine neue Parkanlage.

Mobil & flexibel

Straßenbahn, Buslinien und Hauptbahnhof in kurzer Zeit erreichbar. Car-Sharing direkt gegenüber. Eigene Fahrzeuge parken in der Tiefgarage, Fahrräder in sicheren Abstellplätzen.

Ausstattung & Highlights

  • Vinyl-/Parkettböden & hochwertige Fliesen
  • Markenküchen, Bad mit Dusche oder Wanne
  • Fußbodenheizung & Kühlung, Fernwärme
  • Aufzug, Lagerabteile, Tiefgaragen- und Fahrradstellplätze vorhanden

Befristung: 5 Jahre, 1 Jahr Kündigungsverzicht, 3 Monate Kündigungsfrist

Kaution: 3 BMM

Wir weisen darauf hin, dass zwischen dem Vermittler und dem zu vermittelnden Dritten ein familiäres oder wirtschaftliches Naheverhältnis besteht.

Der Immobilienmakler erklärt, dass er entgegen dem in der Immobilienwirtschaft üblichen Geschäftsgebrauch des Doppelmaklers einseitig nur für den Vermieter tätig ist.


Infrastruktur / Entfernungen

Gesundheit
Arzt <500m
Apotheke <500m
Klinik <250m
Krankenhaus <1.000m

Kinder & Schulen
Schule <500m
Kindergarten <250m
Universität <1.500m
Höhere Schule <1.500m

Nahversorgung
Supermarkt <250m
Bäckerei <250m
Einkaufszentrum <1.500m

Sonstige
Geldautomat <500m
Bank <500m
Post <500m
Polizei <1.000m

Verkehr
Bus <250m
Straßenbahn <250m
Autobahnanschluss <4.500m
Bahnhof <1.250m

Angaben Entfernung Luftlinie / Quelle: OpenStreetMap

Provision: Gemäß Erstauftraggeberprinzip bezahlt der Abgeber die Provision.


Alle Details anzeigen

KONTAKT






 

Lasse dich kostenlos vom Anbieter dieser Immobilie zurückrufen.







 


 
EHL Wohnen GmbH
Gerald Bruchmann

Bewertungen dieses Anbieters
Qualitätsmakler
Qualitätsmakler:
Netiquette
Freundlichkeit
82 %

BEWERTUNGEN DIESES ANBIETERS

 
Qualitätsmakler
UNSERE HALL OF FAME DER BESTEN ANBIETER
Qualit�tsmakler
Qualitätsmakler
2012, 2013, 2014, 2015, 2016, 2017, 2018, 2019, 2020, 2021, 22/23, 2024, 2025
Weiterempfehlung
WIRD GERNE

Freundlichkeit
BESONDERS
FREUNDLICH
Netiquette
FINDMYHOME
NETIQUETTE
Auch du kannst bewerten! 7 Tage nach deiner Anfrage erhältst du dafür von uns ein Bewertungsmail.
Alle Infos zu unseren Auszeichnungen und dem FINDMYHOME.AT Qualitätsprogramm findest du hier: Übersicht anzeigen


Du willst wissen, wie viel dein Umzug kosten wird?

Mach gleich den kostenlosen Preisvergleich und schau, welche seriösen Anbieter in deiner Region günstig deinen Umzug organisieren


ZUM UMZUGS-VERGLEICH
-->

MYHOME BLOG
SuchAgentin auf FindMyHome.at
Unterschiedlichen Rechtsthemen, köstliche Rezepte, neueste Design-Highlights, sowie aktuelle Technik-Tools für Ihr Eigenheim.


FINDMYHOME.AT SUCHAGENTIN
SuchAgentin auf FindMyHome.at
Hallo, soll ich dir ähnliche Immobilien kostenfrei per E-Mail schicken?


ÄHNLICHE IMMOBILIEN
Aehnliche Immobilie - Vorschaubild 1

| 1. MONAT MIETFREI | TOLLE 3 ZIMMER-WOHNUNG MIT BALKON | 3.... - Objektnr. 5541566

74,96 m² - 3.0 Zimmer
1189.01 €
PLZ: 8020

Mehr anzeigen

Aehnliche Immobilie - Vorschaubild 2

Urbanes Wohnen neu definiert: Smart Stick - Objektnr. 5641208


72,11 m² - 3.0 Zimmer
1250 €
PLZ: 8020

Mehr anzeigen

Aehnliche Immobilie - Vorschaubild 3

Aufblühen in Reininghaus - Objektnr. 5637069


73,27 m² - 3.0 Zimmer
1089 €
PLZ: 8020

Mehr anzeigen

Durch die Nutzung unserer Seite erklären Sie sich mit der Verwendung von Cookies zur Verbesserung Ihres Online-Erlebnisses einverstanden. Detaillierte Informationen zu diesem und weiteren Themen erhalten Sie in unserer Datenschutzerklärung.