MEIN ERGEBNIS ANPASSEN

FRANZ JOSEPH - RUHIGER WOHNTRAUM IM TRENDIGEN SONNWENDVIERTEL! - Objektnr. 5641219


ökologisch beheizt
1100
Ort
€ 1.949,99
Gesamtkosten
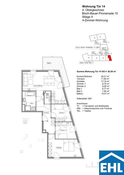
82,00 m²
Fläche
4.0
Zimmer

ECKDATEN
FindMyHome.at // Externe Immobilien-ID5641219 // 60607
ImmobilienartWohnung - Miete
AnschriftBloch Bauer Promenade 10/14
1100 Wien
Befeuerung
Fernwärme
Stock4
Mietdauer5
Fläche82,00 m²
Zimmer4.0
Bad1
WC1
Kaution:€ 5.849,97
Brutto-Miete:€ 1.949,99
Betriebskosten (inkl. MwSt):€ 234,51
Mehrwertsteuer:€ 177,27
Monatliche Gesamtkosten:€ 1.949,99
Provision: Gemäß Erstauftraggeberprinzip bezahlt der Abgeber die Provision.




BESCHREIBUNG

FRANZ JOSEPH - RUHIGER WOHNTRAUM IM TRENDIGEN SONNWENDVIERTEL!

FRANZ JOSEPH -  RUHIGER WOHNTRAUM IM TRENDIGEN SONNWENDVIERTEL!

Erleben Sie im Franz Joseph ein einzigartiges Wohngefühl zwischen dem Helmut-Zilk-Park und dem Wiener Hauptbahnhof!

Auf Sie warten variantenreiche 1-, 2-, 3- und 4-Zimmer Wohnungen mit teils großen Balkonen, Terrassen und Gärten in grüner Umgebung. 

Durch den angrenzenden Helmut-Zilk-Park, die guten Nahversorgungsmöglichkeiten und eine perfekte Verkehrsanbindung (U1) in das Stadtzentrum, überzeugt dieses Areal mit einzigartiger Wohnqualität.
Lassen Sie Ihrer Bewegung freien Lauf im angrenzenden  "Motorikpark"  sowie in den umliegenden Sportstätten.
Zahlreiche Geschäfte für den täglichen Bedarf und Gastronomiebetriebe für den kulinarischen Genuss stehen Ihnen in der BahnhofCity Wien Hauptbahnhof zur Verfügung.
Mit dem Auto sind Sie innerhalb weniger Minuten auf der A23 und erreichen so alle weiterführenden Autobahnen. 

Die Wohnung befindet sich in der 4. Etage und verfügt über eine geräumige Wohnküche, drei Schafzimmer, ein Badezimmer mit Badewanne, Dusche und Waschmaschinenanschluss, ein separates WC und einen Vorraum. Der rund 11m² große Balkon rundet das perfekte Wohngefühl ab.

Ausstattung

  • Attraktive Einbauküche
  • Badezimmer mit Dusche und Badewanne
  • Hochwertige Parkettböden in den Wohnräumen
  • Fliesen in den Nassräumen 
  • Fernwärme mit Fußbodenheizung 
  • Traumhafte Ausblicke auf Wien 
  • Kellerabteil inkl. Steckdose
  • Tiefgaragenplatz kann gesondert angemietet werden
  • Außenliegender Sonnenschutz
  • Kinder- und Jugendspielplatz direkt beim Helmut-Zilk-Park (Motorikpark)
  • Kinderwagen- und Fahrradabstellräume sowie ein Lift befinden sich im Haus

Öffentliche Verkehrsanbindung:

Hauptbahnhof - U-Bahn Linie U1

Hauptbahnhof - Schnellbahnlinien S1, S2, S3, S 60 und S 80 sowie Fernverkehr
Buslinie 14A, 69A
Straßenbahnlinie D

Befristung: 5 Jahre, 1 Jahr Kündigungsverzicht, 3 Monate Kündigungsfrist

Heizung und Warmwasser werden nach Verbrauch abgerechnet.

Bezug: ab sofort

Nebenkosten 
3 BMM Kaution, Vertragserrichtungsgebühr

Wir weisen darauf hin, dass zwischen dem Vermittler und dem zu vermittelnden Dritten ein familiäres oder wirtschaftliches Naheverhältnis besteht.

Der Immobilienmakler erklärt, dass er entgegen dem in der Immobilienwirtschaft üblichen Geschäftsgebrauch des Doppelmaklers einseitig nur für den Vermieter tätig ist.


Infrastruktur / Entfernungen

Gesundheit
Arzt <150m
Apotheke <400m
Klinik <625m
Krankenhaus <1.725m

Kinder & Schulen
Schule <275m
Kindergarten <150m
Universität <850m
Höhere Schule <1.575m

Nahversorgung
Supermarkt <125m
Bäckerei <100m
Einkaufszentrum <625m

Sonstige
Geldautomat <300m
Bank <550m
Post <650m
Polizei <550m

Verkehr
Bus <225m
U-Bahn <625m
Straßenbahn <225m
Bahnhof <625m
Autobahnanschluss <1.275m

Angaben Entfernung Luftlinie / Quelle: OpenStreetMap

Provision: Gemäß Erstauftraggeberprinzip bezahlt der Abgeber die Provision.


Alle Details anzeigen

KONTAKT






 

Lasse dich kostenlos vom Anbieter dieser Immobilie zurückrufen.







 


 
EHL Wohnen GmbH
Josef Michelfeit
Telefonnummer anzeigen Telefon Allgemein: +4315127690403
 
Bitte dem Makler die FindMyHome.at - ID bekanntgeben: 5641219

Bewertungen dieses Anbieters
Qualitätsmakler
Qualitätsmakler:
Netiquette
Freundlichkeit
82 %

BEWERTUNGEN DIESES ANBIETERS

 
Qualitätsmakler
UNSERE HALL OF FAME DER BESTEN ANBIETER
Qualit�tsmakler
Qualitätsmakler
2012, 2013, 2014, 2015, 2016, 2017, 2018, 2019, 2020, 2021, 22/23, 2024, 2025
Weiterempfehlung
WIRD GERNE

Freundlichkeit
BESONDERS
FREUNDLICH
Netiquette
FINDMYHOME
NETIQUETTE
Auch du kannst bewerten! 7 Tage nach deiner Anfrage erhältst du dafür von uns ein Bewertungsmail.
Alle Infos zu unseren Auszeichnungen und dem FINDMYHOME.AT Qualitätsprogramm findest du hier: Übersicht anzeigen


Du willst wissen, wie viel dein Umzug kosten wird?

Mach gleich den kostenlosen Preisvergleich und schau, welche seriösen Anbieter in deiner Region günstig deinen Umzug organisieren


ZUM UMZUGS-VERGLEICH
-->

MYHOME BLOG
SuchAgentin auf FindMyHome.at
Unterschiedlichen Rechtsthemen, köstliche Rezepte, neueste Design-Highlights, sowie aktuelle Technik-Tools für Ihr Eigenheim.


FINDMYHOME.AT SUCHAGENTIN
SuchAgentin auf FindMyHome.at
Hallo, soll ich dir ähnliche Immobilien kostenfrei per E-Mail schicken?


ÄHNLICHE IMMOBILIEN
Aehnliche Immobilie - Vorschaubild 1

FRANZ JOSEPH - RUHIGER WOHNTRAUM IM TRENDIGEN SONNWENDVIERTE... - Objektnr. 5641847

82,11 m² - 3.0 Zimmer
2050.01 €
PLZ: 1100

Mehr anzeigen

Aehnliche Immobilie - Vorschaubild 2

VDG18 - Lichtdurchflutete 2-Zimmer-DG-Wohnung - TOP 41... - Objektnr. 5615958

68,73 m² - 2.0 Zimmer
1749 €
PLZ: 1100

Mehr anzeigen

Aehnliche Immobilie - Vorschaubild 3

3-Zimmer-Wohnung mit privater Dachterrasse, Klimaanlage und ... - Objektnr. 5631930

88,93 m² - 3.5 Zimmer
1745 €
PLZ: 1100

Mehr anzeigen

Durch die Nutzung unserer Seite erklären Sie sich mit der Verwendung von Cookies zur Verbesserung Ihres Online-Erlebnisses einverstanden. Detaillierte Informationen zu diesem und weiteren Themen erhalten Sie in unserer Datenschutzerklärung.