MEIN ERGEBNIS ANPASSEN

Zwei "Wohnungen" Großzügige Altbauwohnung + kleines Atelier/Büro/Gästewohnung - Objektnr. 5640848

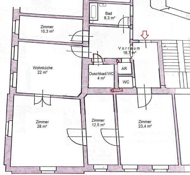
  • Skizzenpl.
1180
Ort
150,00 m²
Fläche
5.0
Zimmer

ECKDATEN
FindMyHome.at // Externe Immobilien-ID5640848 // 1096/20100
ImmobilienartWohnung - Eigentum
Anschrift1180 Wien
Baujahr1900
Stock1
Fläche150,00 m²
Zimmer5.0
Bad2
WC2
 Abstellraum
Kaufpreis:€ 860.000,00
Ratenzahlung:Finanzierungsmöglichkeiten für diese Immobilie anzeigen
Provision: 3% des Kaufpreises zzgl. 20% USt.







BESCHREIBUNG

Zwei "Wohnungen" Großzügige Altbauwohnung + kleines Atelier/Büro/Gästewohnung

Perfekt geschnittene Altbauwohnung im 1. Stock (127m²)
+ Kleine smarte Wohnung - Büro und Gästewohnung im Erdgeschoss (23 m²)

In einem gepflegten Jahrhundertwendehaus präsentiert sich diese großzügig angelegte Altbauwohnung mit klassischem Charme.

Raumaufteilung große Wohnung:

  • zwei repräsentativer Vorräume
  • Esszimmer mit offener Küche
  • großzügiges Eckwohnzimmer
  • drei mögliche Schlafzimmer
  • Badezimmer mit Wanne
  • Duschbad mit Toilette
  • separate Toilette
  • praktischer Abstellraum

Raumaufteilung kleine Wohnung

  • Vorraum übergehend in die Küche mit Hochbett
  • lang gezogenes zweites Zimmer 
  • kleines Bad mit Dusche und Toilette
  • Zusätzlicher Abstellraum am Gang (ehemalige Gangtoilette)

Ausstattung:

  • Gasetagenheizung
  • Parkettböden
  • maßgefertigte Einbauschränke
  • neu renovierte Kasten-Fenster (außen 2-fach/innen 1-fach)
  • Stuckdecken
  • Video-Gegensprechanlage
  • sehr großer Kellerraum (ca. 19 m²)
  • Nutzungsmöglichkeit des allgemein Gartens

Infrastruktur:
Die Lage überzeugt durch ihre perfekte Nahversorgung: Geschäfte des täglichen Bedarfs, die Währinger Straße sowie der beliebte Kutschkermarkt befinden sich in unmittelbarer Gehdistanz.


Classic Apartment in Währing

Situated in a well-maintained turn-of-the-century building, this spacious apartment combines historic charm with modern comfort. A generous entrance hall leads into an open dining and kitchen area flowing into a bright corner room, complemented by three bedrooms, two bathrooms and a separate utility space. High ceilings with stucco details, parquet floors, refurbished double-glazed windows and built-in wardrobes create an elegant living atmosphere. The property also includes a large cellar and access to the shared garden.

Ideally located, the apartment offers immediate access to shops, the lively Währinger Straße and the popular Kutschkermarkt, all within walking distance.

 

Bilder mittels KI optimiert.

Noch nichts gefunden Wir informieren Sie über geeignete Immobilienangebote noch vor allen anderen.
Legen Sie jetzt Ihren individuellen Suchagenten unter folgendem Link an. Wir schicken Ihnen passende Immobilien exklusiv vorab zu.
Suchagent anlegen - https://realkanzlei-hildegard-mayerl-eva-krulis.service.immo/registrieren/de

Wir weisen darauf hin, dass zwischen dem Vermittler und dem zu vermittelnden Dritten ein familiäres oder wirtschaftliches Naheverhältnis besteht.

Der Vermittler ist als Doppelmakler tätig.


Infrastruktur / Entfernungen

Gesundheit
Arzt <500m
Apotheke <500m
Klinik <500m
Krankenhaus <1.000m

Kinder & Schulen
Schule <500m
Kindergarten <500m
Universität <500m
Höhere Schule <500m

Nahversorgung
Supermarkt <500m
Bäckerei <500m
Einkaufszentrum <2.000m

Sonstige
Geldautomat <500m
Bank <500m
Post <500m
Polizei <1.000m

Verkehr
Bus <500m
U-Bahn <500m
Straßenbahn <500m
Bahnhof <500m
Autobahnanschluss <2.000m

Angaben Entfernung Luftlinie / Quelle: OpenStreetMap

Objekt ist für eine Wohngemeinschaft geeignet
Gartennutzung: JA
Provision: 3% des Kaufpreises zzgl. 20% USt.


Alle Details anzeigen

KONTAKT






 

Lasse dich kostenlos vom Anbieter dieser Immobilie zurückrufen.







 


 
MAYERL IMMOBILIEN
Daniel Grüner, MSc
Telefonnummer anzeigen Telefon Allgemein: +431479411714
 
Bitte dem Makler die FindMyHome.at - ID bekanntgeben: 5640848

Bewertungen dieses Anbieters
Netiquette
Freundlichkeit
Antwortszeit
100 %

BEWERTUNGEN DIESES ANBIETERS

 
Antwortzeit
ø 24h ANTWORT
Weiterempfehlung
WIRD SEHR GERNE

Freundlichkeit
BESONDERS
FREUNDLICH
Netiquette
FINDMYHOME
NETIQUETTE
Auch du kannst bewerten! 7 Tage nach deiner Anfrage erhältst du dafür von uns ein Bewertungsmail.
Alle Infos zu unseren Auszeichnungen und dem FINDMYHOME.AT Qualitätsprogramm findest du hier: Übersicht anzeigen

FINANZIERUNG
?>

Du willst wissen, wie viel dein Umzug kosten wird?

Mach gleich den kostenlosen Preisvergleich und schau, welche seriösen Anbieter in deiner Region günstig deinen Umzug organisieren


ZUM UMZUGS-VERGLEICH
-->

MYHOME BLOG
SuchAgentin auf FindMyHome.at
Unterschiedlichen Rechtsthemen, köstliche Rezepte, neueste Design-Highlights, sowie aktuelle Technik-Tools für Ihr Eigenheim.


FINDMYHOME.AT SUCHAGENTIN
SuchAgentin auf FindMyHome.at
Hallo, soll ich dir ähnliche Immobilien kostenfrei per E-Mail schicken?


ÄHNLICHE IMMOBILIEN
Aehnliche Immobilie - Vorschaubild 1

Living on Top: Exklusive Dachgeschoss Wohnung mit Panoramabl... - Objektnr. 5637736

150,00 m² - 4.5 Zimmer
990000 €
PLZ: 1180

Mehr anzeigen

Aehnliche Immobilie - Vorschaubild 2

PREISREDUKTION!!! Erstbezug Dachausbau - Nähe Währinger Stra... - Objektnr. 5541516

120,45 m² - 2.0 Zimmer
795000 €
PLZ: 1180

Mehr anzeigen

Aehnliche Immobilie - Vorschaubild 3

Perfect for families! Apartment with 130m² in a prime locati... - Objektnr. 5640227

130,20 m² - 5.0 Zimmer
999000 €
PLZ: 1180

Mehr anzeigen

Durch die Nutzung unserer Seite erklären Sie sich mit der Verwendung von Cookies zur Verbesserung Ihres Online-Erlebnisses einverstanden. Detaillierte Informationen zu diesem und weiteren Themen erhalten Sie in unserer Datenschutzerklärung.