MEIN ERGEBNIS ANPASSEN

Erfolgreiche Vorsorge in Wien: Meißnergasse 2 als renditestarke Wohnimmobilie - Objektnr. 5640602

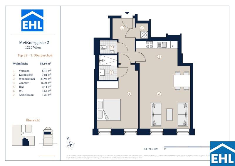
1220
Ort
58,19 m²
Fläche
2.0
Zimmer
WEITERE MEDIEN

ECKDATEN
FindMyHome.at // Externe Immobilien-ID5640602 // 63609
ImmobilienartAnlage-Vorsorgewohnung - Eigentum
AnschriftMeißnergasse/32
1220 Wien
Baujahr2023
Stock3
Fläche58,19 m²
Zimmer2.0
Bad1
WC1
 Abstellraum
Kaufpreis:€ 330.150,00
Ratenzahlung:Finanzierungsmöglichkeiten für diese Immobilie anzeigen
Provision: 3% des Kaufpreises zzgl. 20% USt.







BESCHREIBUNG

Erfolgreiche Vorsorge in Wien: Meißnergasse 2 als renditestarke Wohnimmobilie

Tolle Wohnungen: Meißnergasse 2

Das Altbauprojekt in der Meißnergasse 2, im 22. Bezirk, ist eine einzigartige Möglichkeit, in einem historischen Gebäude im grünen von Wien zu wohnen. Der 2 geschoßige Altbau aus dem Jahr 1899 wird derzeit sorgfältig renoviert und um ein 3. Regelgeschoß sowie 2 Dachgeschoße erweitert. Durch die gute Planung wird der Charme des Altbaus bewahrt und mit modernen Elementen komplettiert. Die 1 bis 4 Zimmerwohnungen bieten Wohnflächen zwischen 29m² und 126m². Durch die hellen und freundlichen Wohnräume, die optimale Raumnutzung sowie die offene Raumgestaltung, die den Wohn- und Essbereich miteinander verbindet, wird ein einzigartiges Wohngefühl geschaffen.

 

Schlau investieren 

Das Altbauprojekt ist eine einmalige Gelegenheit, in einem historischen Gebäude in Wien zu wohnen. Die Kombination aus historischem Charme und modernem Ausbau sorgt für ein einzigartiges Wohngefühl. Die großzügigen Wohnflächen, die hochwertige Ausstattung und die optimale Lage machen das Projekt zu einer attraktiven Möglichkeit!

 

Das Projekt

  • Revitalisierter Stilaltbau mit moderner Ausstattung und Technik
  • 19 exklusive Eigentumswohnungen im Regelgeschoß
  • 3 Maisonettewohnungen mit weitläufigen Dachterrassen
  • 3 Dachgeschoßwohnungen mit Terrassen auf einer Ebene
  • 1 Hofhaus mit Eigengarten
  • 1- bis 4-Zimmerwohnungen mit 29 bis 126 m2 Wohnfläche
  • Hofseitige Freiflächen und Gärten
  • Energiesparende und effiziente Fernwärme für Heizung und Warmwasserversorgung
  • Anlegerpreise im Neubau
  • AirBnB möglich

 

Die Ausstattung

  • Raumhöhen mit bis zu 3 Metern
  • Edles Eichenholzparkett
  • Smart-Home-Steuerung mit Apple iPad,
  • Klimaanlage und Fußbodenheizung in den Dachgeschoßen
  • Niedertemperatur-Fußbodenheizung für besonders geringen Energieverbrauch
  • Energiesparende Fenster mit 2-fach-Verglasung
  • Markensanitärprodukte
  • Moderne Ausstattung und Technik

Die Energieausweise

  • Altbau gültig bis 15.11.2032: HWB 93,1 kWh/m²a, Klasse C; fGEE: 1,46, Klasse C
  • Dachgeschoß gültig bis 18.09.2032: HWB 18,0 kWh/m²a, Klasse A ; fGEE: 0,70 Klasse A+
  • Nebengebäude gültig bis 18.09.2032: HHB 82,3 kWh/m²; Klasse C; fGEE: 0,55 Klasse A++

 

Kaufpreise der Vorsorgewohnungen

von EUR 295.740,- bis EUR 920.700,- netto zzgl. 20% USt.

Zu erwartender Mietertrag

von ca. EUR 13,00 bis EUR 14,50 netto/m²

3% Kundenprovision
Fertigstellung: voraussichtlich 2. Quartal 2024

 

Bei diesem Angebot handelt es sich um eine Vorsorgewohnung, die zu Vermietungszwecken erworben wird. Der angegebene Kaufpreis versteht sich daher zzgl. 20% USt. Diese Daten sind vorbehaltlich möglicher Änderungen.

Wir weisen darauf hin, dass zwischen dem Vermittler und dem zu vermittelnden Dritten ein familiäres oder wirtschaftliches Naheverhältnis besteht.

Der Vermittler ist als Doppelmakler tätig.


Infrastruktur / Entfernungen

Gesundheit
Arzt <250m
Apotheke <750m
Klinik <2.250m
Krankenhaus <3.500m

Kinder & Schulen
Schule <250m
Kindergarten <250m
Universität <1.250m
Höhere Schule <750m

Nahversorgung
Supermarkt <250m
Bäckerei <250m
Einkaufszentrum <500m

Sonstige
Geldautomat <250m
Bank <250m
Post <750m
Polizei <500m

Verkehr
Bus <250m
U-Bahn <250m
Straßenbahn <500m
Bahnhof <500m
Autobahnanschluss <1.750m

Angaben Entfernung Luftlinie / Quelle: OpenStreetMap

Kabel/SAT/TV: JA
Provision: 3% des Kaufpreises zzgl. 20% USt.


Alle Details anzeigen

KONTAKT






 

Lasse dich kostenlos vom Anbieter dieser Immobilie zurückrufen.







 


 
EHL Wohnen GmbH
Andrea PÖCHHACKER; MSc
Telefonnummer anzeigen Telefon Allgemein: +4315127690411
Handy Bearbeiter: +436648373481
 
Bitte dem Makler die FindMyHome.at - ID bekanntgeben: 5640602

Bewertungen dieses Anbieters
Qualitätsmakler
Qualitätsmakler:
Netiquette
Freundlichkeit
82 %

BEWERTUNGEN DIESES ANBIETERS

 
Qualitätsmakler
UNSERE HALL OF FAME DER BESTEN ANBIETER
Qualit�tsmakler
Qualitätsmakler
2012, 2013, 2014, 2015, 2016, 2017, 2018, 2019, 2020, 2021, 22/23, 2024, 2025
Weiterempfehlung
WIRD GERNE

Freundlichkeit
BESONDERS
FREUNDLICH
Netiquette
FINDMYHOME
NETIQUETTE
Auch du kannst bewerten! 7 Tage nach deiner Anfrage erhältst du dafür von uns ein Bewertungsmail.
Alle Infos zu unseren Auszeichnungen und dem FINDMYHOME.AT Qualitätsprogramm findest du hier: Übersicht anzeigen

FINANZIERUNG
?>

Du willst wissen, wie viel dein Umzug kosten wird?

Mach gleich den kostenlosen Preisvergleich und schau, welche seriösen Anbieter in deiner Region günstig deinen Umzug organisieren


ZUM UMZUGS-VERGLEICH
-->

MYHOME BLOG
SuchAgentin auf FindMyHome.at
Unterschiedlichen Rechtsthemen, köstliche Rezepte, neueste Design-Highlights, sowie aktuelle Technik-Tools für Ihr Eigenheim.


FINDMYHOME.AT SUCHAGENTIN
SuchAgentin auf FindMyHome.at
Hallo, soll ich dir ähnliche Immobilien kostenfrei per E-Mail schicken?


ÄHNLICHE IMMOBILIEN
Aehnliche Immobilie - Vorschaubild 1

Bis zu vier Prozent Rendite!- Vermietete Wohnungen zwischen ... - Objektnr. 5624555

51,98 m² - 2.0 Zimmer
305000 €
PLZ: 1220

Mehr anzeigen

Aehnliche Immobilie - Vorschaubild 2

Meißnergasse 2: Einzigartige Investitionsmöglichkeit für ein... - Objektnr. 5640603

64,91 m² - 2.0 Zimmer
371070 €
PLZ: 1220

Mehr anzeigen

Aehnliche Immobilie - Vorschaubild 3

"Bonsai" - Anlegerwohnungen im Grünen von Wien - Objektnr. 5640587

50,34 m² - 2.0 Zimmer
328500 €
PLZ: 1220

Mehr anzeigen

Durch die Nutzung unserer Seite erklären Sie sich mit der Verwendung von Cookies zur Verbesserung Ihres Online-Erlebnisses einverstanden. Detaillierte Informationen zu diesem und weiteren Themen erhalten Sie in unserer Datenschutzerklärung.