MEIN ERGEBNIS ANPASSEN

"Bonsai" Ihr neues Renditeobjekt in Bestlage - Objektnr. 5640585

1220
Ort
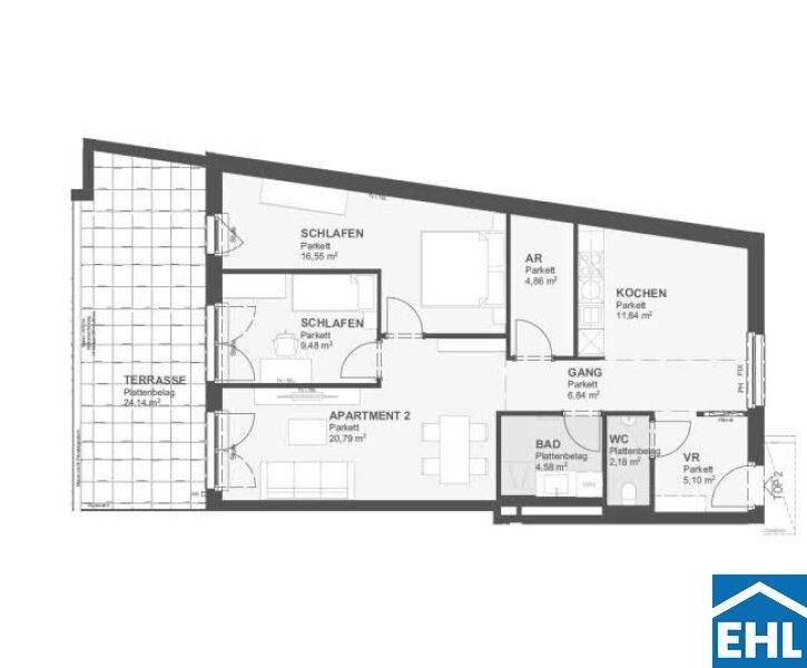
82,02 m²
Fläche
3.0
Zimmer

ECKDATEN
FindMyHome.at // Externe Immobilien-ID5640585 // 76379
ImmobilienartAnlage-Vorsorgewohnung - Eigentum
Anschrift1220 Wien
Baujahr2022
Geschosse9
Fläche82,02 m²
Terrassen1 (24,00 m²)
Zimmer3.0
Bad1
WC1
Kaufpreis:€ 442.300,00
Ratenzahlung:Finanzierungsmöglichkeiten für diese Immobilie anzeigen
Provision: Provision bezahlt der Abgeber.







BESCHREIBUNG

"Bonsai" Ihr neues Renditeobjekt in Bestlage

Top Wohnungen in der Nähe der Alten Donau

Wenige Meter vom Kirschblütenpark und ca. 7 Gehminuten zur Alten Donau entstanden in dem modernen Vorsorgewohnungsprojekt "Bonsai" bestens geplante und ausgestattete Wohnungen, die sich ideal für die Vermietung eignen. Der perfekte Mix aus bester Lage in der Nähe des beliebten Naherholungsgebietes aber auch Geschäften, Ärzten und Schulen sowie einer gediegenen zuverlässigen Projektplanung machen diese Wohnungen zu einem guten Investment.

 

Das Objekt

  • Moderner, hochqualitativer Neubau
  • 3 Stiegenhäuser
  • Insgesamt 46 Eigentums- und Vorsorgewohnungen
  • 23 Garagenstellplätze
  • Großzügiger Innenhof
  • Einlagerungsraum zu jeder Wohnung
  • Kinderwagen- und Fahrradabstellraum
  • Kleinkinderspielplatz im Hof
  • Fahrradabstellplätze im Hof
  • Waschküche

 

  • Zwei und Dreizimmerwohnungen
  • Größen von ca. 36 bis 88 m²
  • Freiflächen bei der Mehrheit der Wohnungen geplant

 

Die Ausstattung

  • Qualitativer Holzparkett
  • Fernwärme mittels Fußbodenheizung
  • Moderne Komplettküchen mit Elektrogeräten der Marke Miele (Geschirrspüler, Einbauherd mit Backrohr, Kühlschrank und Dunstabzug)
  • Freundlich gestaltete Badezimmer
  • Außenjalousien

In jeder Wohnung wurde eine Küche eingebaut, welche um € 9.000,- netto zzgl. 20% USt. anzukaufen ist. Bei Wohnungen mit einem zugeteilten Stellplatz ist dieser um € 26.000,- netto zzgl. 20% USt. zu erwerben. 

Die Höhe der Betriebskosten und Rücklagen sind noch nicht bekannt.

 

Kaufpreise der Vorsorgewohnungen

von EUR 218.400,-  bis EUR 567.300,- netto zzgl. 20 % USt.

Zu erwartender Mietertrag

von EUR 12,00 bis EUR 13,25 netto/m²

Provisionsfrei für den Käufer!
Fertigstellung: bereits erfolgt

Konzeptionsgebühr € 60,- netto/m²

 

Bei diesem Angebot handelt es sich um eine Vorsorgewohnung, die zu Vermietungszwecken erworben wird. Der angegebene Kaufpreis versteht sich daher zzgl. 20% USt. Diese Daten sind vorbehaltlich möglicher Änderungen.

Wir weisen darauf hin, dass zwischen dem Vermittler und dem zu vermittelnden Dritten ein familiäres oder wirtschaftliches Naheverhältnis besteht.

Der Vermittler ist als Doppelmakler tätig.


Infrastruktur / Entfernungen

Gesundheit
Arzt <500m
Apotheke <500m
Klinik <2.500m
Krankenhaus <3.000m

Kinder & Schulen
Schule <500m
Kindergarten <500m
Universität <1.000m
Höhere Schule <1.000m

Nahversorgung
Supermarkt <500m
Bäckerei <1.000m
Einkaufszentrum <1.000m

Sonstige
Geldautomat <1.000m
Bank <1.000m
Post <1.000m
Polizei <1.000m

Verkehr
Bus <500m
U-Bahn <1.000m
Straßenbahn <500m
Bahnhof <1.000m
Autobahnanschluss <2.500m

Angaben Entfernung Luftlinie / Quelle: OpenStreetMap

Kabel/SAT/TV: JA
Provision: Provision bezahlt der Abgeber.


Alle Details anzeigen

KONTAKT






 

Lasse dich kostenlos vom Anbieter dieser Immobilie zurückrufen.







 


 
EHL Wohnen GmbH
Andrea PÖCHHACKER; MSc
Telefonnummer anzeigen Telefon Allgemein: +4315127690411
Handy Bearbeiter: +436648373481
 
Bitte dem Makler die FindMyHome.at - ID bekanntgeben: 5640585

Bewertungen dieses Anbieters
Qualitätsmakler
Qualitätsmakler:
Netiquette
Freundlichkeit
82 %

BEWERTUNGEN DIESES ANBIETERS

 
Qualitätsmakler
UNSERE HALL OF FAME DER BESTEN ANBIETER
Qualit�tsmakler
Qualitätsmakler
2012, 2013, 2014, 2015, 2016, 2017, 2018, 2019, 2020, 2021, 22/23, 2024, 2025
Weiterempfehlung
WIRD GERNE

Freundlichkeit
BESONDERS
FREUNDLICH
Netiquette
FINDMYHOME
NETIQUETTE
Auch du kannst bewerten! 7 Tage nach deiner Anfrage erhältst du dafür von uns ein Bewertungsmail.
Alle Infos zu unseren Auszeichnungen und dem FINDMYHOME.AT Qualitätsprogramm findest du hier: Übersicht anzeigen

FINANZIERUNG
?>

Du willst wissen, wie viel dein Umzug kosten wird?

Mach gleich den kostenlosen Preisvergleich und schau, welche seriösen Anbieter in deiner Region günstig deinen Umzug organisieren


ZUM UMZUGS-VERGLEICH
-->

MYHOME BLOG
SuchAgentin auf FindMyHome.at
Unterschiedlichen Rechtsthemen, köstliche Rezepte, neueste Design-Highlights, sowie aktuelle Technik-Tools für Ihr Eigenheim.


FINDMYHOME.AT SUCHAGENTIN
SuchAgentin auf FindMyHome.at
Hallo, soll ich dir ähnliche Immobilien kostenfrei per E-Mail schicken?


ÄHNLICHE IMMOBILIEN
Aehnliche Immobilie - Vorschaubild 1

Bis zu vier Prozent Rendite!- Vermietete Wohnungen zwischen ... - Objektnr. 5624572

72,66 m² - 3.0 Zimmer
415000 €
PLZ: 1220

Mehr anzeigen

Aehnliche Immobilie - Vorschaubild 2

Bis zu vier Prozent Rendite!- Vermietete Wohnungen zwischen ... - Objektnr. 5624568

72,66 m² - 3.0 Zimmer
415000 €
PLZ: 1220

Mehr anzeigen

Aehnliche Immobilie - Vorschaubild 3

Attraktives Neubauprojekt in Wien: 53 Vorsorgewohnungen mit ... - Objektnr. 5640608

74,34 m² - 3.0 Zimmer
398271 €
PLZ: 1220

Mehr anzeigen

Durch die Nutzung unserer Seite erklären Sie sich mit der Verwendung von Cookies zur Verbesserung Ihres Online-Erlebnisses einverstanden. Detaillierte Informationen zu diesem und weiteren Themen erhalten Sie in unserer Datenschutzerklärung.