MEIN ERGEBNIS ANPASSEN

Grand Garden: Hofjuwel & Dachträume - ein Ensemble der Extraklasse - Objektnr. 5640502

1160
Ort
64,70 m²
Fläche
2.0
Zimmer
WEITERE MEDIEN

ECKDATEN
FindMyHome.at // Externe Immobilien-ID5640502 // 79015
ImmobilienartAnlage-Vorsorgewohnung - Eigentum
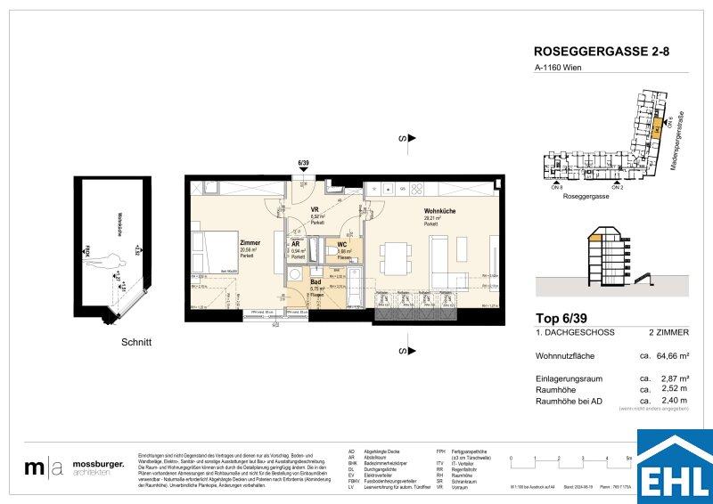
AnschriftRoseggergasse/39
1160 Wien
Fläche64,70 m²
Zimmer2.0
Bad1
WC1
 Abstellraum
Kaufpreis:€ 424.000,00
Ratenzahlung:Finanzierungsmöglichkeiten für diese Immobilie anzeigen
Provision: 3% des Kaufpreises zzgl. 20% USt.







BESCHREIBUNG

Grand Garden: Hofjuwel & Dachträume - ein Ensemble der Extraklasse

Investmentchance: Anlegerwohnungen im Grand Garden Modernes Wohnen nahe Wilhelminenberg

In der Roseggergasse 28, unweit des beliebten Wilhelminenbergs, entsteht ein attraktives Wohnprojekt mit hohem Investmentpotenzial: 124 hochwertige Eigentumswohnungen in gefragter Lage. Die Wohnflächen reichen von ca. 39 m² bis 245 m² und bieten effiziente Grundrisse mit zwei bis sechs Zimmern ideal für Anleger, die auf unterschiedliche Zielgruppen setzen möchten.

Private Freiflächen wie Eigengärten, Balkone, Loggien, Terrassen sowie großzügige Dachterrassen mit Panoramablick erhöhen die Vermietbarkeit und sprechen qualitätsbewusste Mieter an.

Ein besonderes Highlight ist der rund 1.000 m² große, exklusiv zugängliche Innenhof eine grüne Ruheoase mitten in der Stadt. Perfekt als Mehrwert für Bewohner, der sich auch in der Wertentwicklung widerspiegeln kann.

Das Projekt wurde mit dem DGNB-Vorzertifikat in Gold (Deutsche Gesellschaft für Nachhaltiges Bauen) ausgezeichnet. Energieeffiziente Bauweise, geringe Betriebskosten, hoher Wohnkomfort und nachhaltige Planung machen die Wohnungen zu einer zukunftssicheren Investition.

Die hervorragende Verkehrsanbindung durch die Nähe zu den U3-Stationen Ottakring und Kendlerstraße sowie eine Vielzahl an Nahversorgern und Freizeitmöglichkeiten in der Umgebung runden das Angebot ab und erhöhen die Mietnachfrage zusätzlich.

 

Das Projekt

Vielfalt und Luxus vereint Wohnungen mit hochwertigen Ausstattungen Die Zwei- bis Vierzimmerwohnungen bestechen durch ihre hochwertige Ausstattung, inklusive edler Parkettfussböden, moderner Fußbodenheizung und intelligenter Technologien wie der Hausverwaltungs-App Puck. Eine hauseigene Tiefgarage mit E-Ladestationen sowie Photovoltaikanlagen und Fernwärme sorgen für zusätzlichen Komfort und Nachhaltigkeit. Für ein angenehmes Raumklima sind die Wohnungen im 2. Dachgeschoß mit Klimaanlagen.

  • 124 freifinanzierte Vorsorgewohnungen
  • 28 Tiefgaragenplätze
  • 2 4 Zimmerwohnungen
  • Wohnungsgrößen zwischen 41 und 123 m²
  • Freiflächen wie Eigengarten, Terrasse, Loggia oder Balkon
  • Kinderwagen- und Fahrradabstellraum
  • Jugendspielplatz
  • Energieausweis gültig bis 24.02.2032:
    • HWB: 36,90 kWh/m²a; Klasse B
    • fGEE: 0,88; Klasse B

 

Die Ausstattung mit nachhaltiger Wertsteigerung

Dieses Wohnprojekt hat bereits das Vorzertifikat der DGNB in Gold (Deutsche Gesellschaft für Nachhaltiges Bauen) erhalten. Zertifizierte Immobilien bieten nicht nur niedrigere Energiekosten und einen reduzierten CO2-Fußabdruck, sondern auch hohe Standards bei Luftqualität, Akustik und Lichtverhältnissen. Investieren Sie in eine nachhaltige Immobilie und profitieren Sie von einer optimalen Wertsteigerung und zukunftssicheren Renditen.

Zusätzlich besteht die Möglichkeit, eine Küche über uns zu erwerben. Dabei handelt es sich um eine Standardküche mit Siemens-Geräten.

  • Fußbodenheizung mit Fernwärme
  • Photovoltaikanlage
  • Großzügige Raumhöhen (2,52 bis 3,10m)
  • Gegensprechanlage mit appgesteuertem Zugangssystem
  • DGBN Gold Zertifizierung/EU-Taxonomie Verifikation
  • Split-Kühlanlage im 2. Dachgeschoß
  • Beschattungen:
    • hofseitige Regelgeschoße: außenliegender, elektrisch betriebene Raffstores
    • straßenseitige Regelgeschoße: innenliegender, textiler Sonnenschutz
    • Dachgeschoße: außenliegende, elektrisch betriebene Rollläden bzw. Raffstores
    • Dachflächenfenster: Rollläden oder textile Markisetten
    • hofseitiges Garten- und Erdgeschoß: Rollläden oder textile Markisetten

Erwerben Sie Ihre Vorsorgewohnung provisionsfrei bis zum Baubeginn und lassen Sie Ihr Kapital für sich arbeiten. Verdienen Sie monatlich und genießen Sie die Vorteile einer der begehrtesten Wohnlagen Wiens.

Sichern Sie sich Ihre Spitzenrendite in der Roseggergasse 2-8 und erleben Sie den perfekten Mix aus historischem Charme und modernem Wohnkomfort. Kontaktieren Sie uns noch heute und machen Sie den ersten Schritt zu Ihrer renditestarken Investition!

Kaufpreise der Vorsorgewohnungen

von EUR 212.800,- bis EUR 1.006.800,- netto zzgl. 20% USt.

Zu erwartender Mietertrag

von ca. EUR 17,00 bis EUR 19,50 netto/m²

3% Kundenprovision

Fertigstellung: voraussichtlich 2028

 

Bei diesem Angebot handelt es sich um eine Vorsorgewohnung, die zu Vermietungszwecken erworben wird. Der angegebene Kaufpreis versteht sich daher zzgl. 20% USt. Diese Daten sind vorbehaltlich möglicher Änderungen.

Ein detaillierten Überblick finden Sie auf unserer EHL-Projekthomepage: https://www.ehl.at/wohnen/wohnprojekte/roseggergasse-2-8-1160-wien

Gewinnen Sie einen ersten Eindruck dieses Projekts in unserem Video!


© WINEGG | Real Agency

Wir weisen darauf hin, dass zwischen dem Vermittler und dem zu vermittelnden Dritten ein familiäres oder wirtschaftliches Naheverhältnis besteht.

Der Vermittler ist als Doppelmakler tätig.


Infrastruktur / Entfernungen

Gesundheit
Arzt <250m
Apotheke <500m
Klinik <500m
Krankenhaus <750m

Kinder & Schulen
Schule <250m
Kindergarten <500m
Universität <1.000m
Höhere Schule <1.000m

Nahversorgung
Supermarkt <250m
Bäckerei <500m
Einkaufszentrum <1.500m

Sonstige
Geldautomat <500m
Bank <500m
Post <750m
Polizei <750m

Verkehr
Bus <250m
U-Bahn <250m
Straßenbahn <250m
Bahnhof <500m
Autobahnanschluss <5.500m

Angaben Entfernung Luftlinie / Quelle: OpenStreetMap

Provision: 3% des Kaufpreises zzgl. 20% USt.


Alle Details anzeigen

KONTAKT






 

Lasse dich kostenlos vom Anbieter dieser Immobilie zurückrufen.







 


 
EHL Wohnen GmbH
Andrea PÖCHHACKER; MSc
Telefonnummer anzeigen Telefon Allgemein: +4315127690411
Handy Bearbeiter: +436648373481
 
Bitte dem Makler die FindMyHome.at - ID bekanntgeben: 5640502

Bewertungen dieses Anbieters
Qualitätsmakler
Qualitätsmakler:
Netiquette
Freundlichkeit
82 %

BEWERTUNGEN DIESES ANBIETERS

 
Qualitätsmakler
UNSERE HALL OF FAME DER BESTEN ANBIETER
Qualit�tsmakler
Qualitätsmakler
2012, 2013, 2014, 2015, 2016, 2017, 2018, 2019, 2020, 2021, 22/23, 2024, 2025
Weiterempfehlung
WIRD GERNE

Freundlichkeit
BESONDERS
FREUNDLICH
Netiquette
FINDMYHOME
NETIQUETTE
Auch du kannst bewerten! 7 Tage nach deiner Anfrage erhältst du dafür von uns ein Bewertungsmail.
Alle Infos zu unseren Auszeichnungen und dem FINDMYHOME.AT Qualitätsprogramm findest du hier: Übersicht anzeigen

FINANZIERUNG
?>

Du willst wissen, wie viel dein Umzug kosten wird?

Mach gleich den kostenlosen Preisvergleich und schau, welche seriösen Anbieter in deiner Region günstig deinen Umzug organisieren


ZUM UMZUGS-VERGLEICH
-->

MYHOME BLOG
SuchAgentin auf FindMyHome.at
Unterschiedlichen Rechtsthemen, köstliche Rezepte, neueste Design-Highlights, sowie aktuelle Technik-Tools für Ihr Eigenheim.


FINDMYHOME.AT SUCHAGENTIN
SuchAgentin auf FindMyHome.at
Hallo, soll ich dir ähnliche Immobilien kostenfrei per E-Mail schicken?


ÄHNLICHE IMMOBILIEN
Aehnliche Immobilie - Vorschaubild 1

Stadt erleben. Natur genießen: Ihr Eigenheim in Wien Ottakri... - Objektnr. 5640536

71,60 m² - 3.0 Zimmer
485600 €
PLZ: 1160

Mehr anzeigen

Aehnliche Immobilie - Vorschaubild 2

THE ARIK - WOHNEN AM PARK - URBAN & GRÜN - Objektnr. 5540696


69,24 m² - 3.0 Zimmer
446900 €
PLZ: 1160

Mehr anzeigen

Aehnliche Immobilie - Vorschaubild 3

THE ARIK · Ihre sichere Anlage - 3 Zimmer mit Garten zur Inn... - Objektnr. 5639474

73,20 m² - 3.0 Zimmer
407800 €
PLZ: 1160

Mehr anzeigen

Durch die Nutzung unserer Seite erklären Sie sich mit der Verwendung von Cookies zur Verbesserung Ihres Online-Erlebnisses einverstanden. Detaillierte Informationen zu diesem und weiteren Themen erhalten Sie in unserer Datenschutzerklärung.