Attraktive Anlageimmobilien in Brunn am Gebirge Lichtensteinstraße
Entdecken Sie ein Investmentprojekt, das modernes Design, hohe Bauqualität und naturnahe Ruhe vereint. In der Lichtensteinstraße, am Rand der idyllischen Stadt Brunn am Gebirge, erwartet Sie eine exklusive Wohnanlage, die Anlegern hervorragende Renditemöglichkeiten bietet. Dieses außergewöhnliche Projekt besteht aus zwei Bauteilen und umfasst insgesamt 11 hochwertige Wohneinheiten, die sowohl hohe Rentabilität als auch stilvolles Wohnen versprechen.
Investieren mit Weitblick Bauteil 1
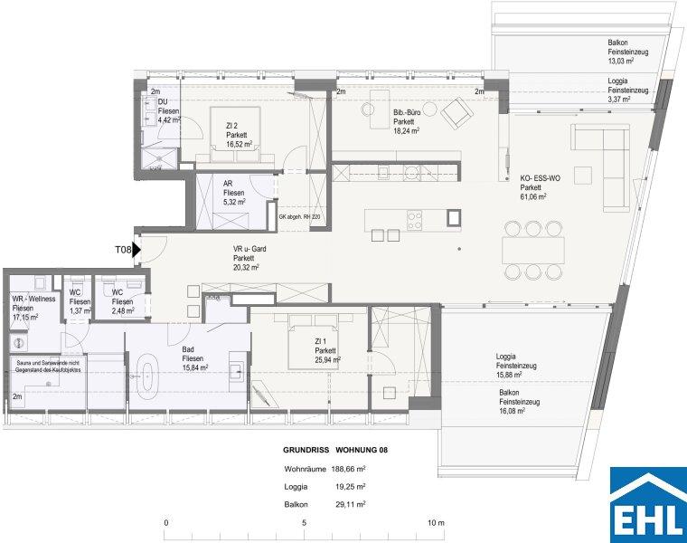
Der erste Bauteil bietet 9 erstklassige Wohnungen, die durch durchdachte Raumaufteilung und großzügige Außenflächen überzeugen. Besonders die oberen Etagen bieten beeindruckende Ausblicke über Brunn bis zur Skyline von Wien. Die Wohnflächen variieren zwischen 85m² und 188m² und bieten vielfältige Optionen für unterschiedliche Mietinteressenten.
Exklusive Townhäuser Bauteil 2
Im zweiten Bauteil befinden sich zwei exklusive Townhäuser, die sich durch großzügige Flächen, private Gärten und luxuriöse Ausstattung auszeichnen. Diese Townhäuser bieten das Gefühl eines Eigenheims mit den Vorteilen einer hochwertigen Wohnanlage und sind besonders attraktiv für anspruchsvolle Mieter.
Das Projekt im Überblick
- 11 Wohneinheiten
- 2 exklusive Townhäuser
- Wohnflächen zwischen 85m² und 188m²
- 3-4 Zimmer
- Alle Wohnungen mit privater Freifläche wie Garten, Balkon, Terrasse oder Loggia
- Hauseigene Garage
- Fahrradraum und Einlagerungsräume für jede Einheit
Höchste Bauqualität und erstklassige Ausstattung
Das Projekt bietet nicht nur architektonische Eleganz, sondern setzt auch in puncto Ausstattung höchste Standards. Große Fenster mit Dreifachverglasung sorgen für lichtdurchflutete Räume und eine angenehme Wohnatmosphäre. Raffstores bieten flexiblen Sonnenschutz und Privatsphäre. Edle Parkettböden in den Wohnräumen und moderne Feinsteinzeugfliesen in den Bädern unterstreichen den hohen Komfort. Eine innovative Haustechnik mit Luftwärmepumpe und Fußbodenheizung sorgt für angenehme Temperaturen zu jeder Jahreszeit.
Ausstattung
- Große Fenster mit Dreifachverglasung und Raffstores
- Parkettböden in den Wohnräumen
- Großformatige Feinsteinzeugfliesen in den Nassräumen
- Fußbodenheizung mittels Luftwärmepumpe
Lage und Umgebung Brunn am Gebirge
Die Lichtensteinstraße liegt in einer ruhigen und dennoch hervorragend angebundenen Lage in Brunn am Gebirge, einer charmanten Gemeinde im südlichen Umland von Wien. Die perfekte Balance zwischen Stadtleben und Natur macht die Lage besonders attraktiv. Die malerischen Weinberge und Wanderwege des Wienerwalds sind nur wenige Minuten entfernt und bieten vielfältige Freizeitmöglichkeiten.
Brunn am Gebirge bietet eine ausgezeichnete Infrastruktur mit Einkaufsmöglichkeiten, Schulen, Kindergärten und medizinischer Versorgung in unmittelbarer Nähe. Das Ortszentrum mit seinen Cafés, Restaurants und Geschäften ist nur einen kurzen Weg entfernt.
Die verkehrstechnische Anbindung ist optimal: Mit dem Auto erreichen Sie das Wiener Stadtzentrum in nur 20 Minuten. Die nahegelegene Autobahn A21 sowie die S-Bahn-Anbindung machen die Lage auch für Pendler besonders attraktiv, während die grüne Umgebung Ruhe und Erholung bietet.
Fazit
Das Projekt an der Lichtensteinstraße bietet eine hervorragende Gelegenheit für Investoren, die auf der Suche nach hochwertigen Anlageimmobilien in einer der begehrtesten Lagen von Brunn am Gebirge sind. Ob Sie sich für eine der lichtdurchfluteten Wohnungen mit Panoramablick oder für eines der großzügigen Townhäuser entscheiden dieses Projekt verspricht hohe Renditen und eine solide Investition.
Nutzen Sie diese Chance und profitieren Sie von einem einzigartigen Angebot, das die Nähe zur pulsierenden Stadt mit der Ruhe einer naturnahen Umgebung kombiniert.
Provisionsfrei für den Käufer!
Beziehbar ab März 2025
Bei diesem Angebot handelt es sich um eine Vorsorgewohnung, die zu Vermietungszwecken erworben wird. Der angegebene Kaufpreis versteht sich daher zzgl. 20% USt. Diese Daten sind vorbehaltlich möglicher Änderungen.
Wir weisen darauf hin, dass zwischen dem Vermittler und dem zu vermittelnden Dritten ein familiäres oder wirtschaftliches Naheverhältnis besteht.
Der Vermittler ist als Doppelmakler tätig.
Infrastruktur / Entfernungen
Gesundheit
Arzt <250m
Apotheke <1.000m
Klinik <3.000m
Krankenhaus <2.500m
Kinder & Schulen
Schule <750m
Kindergarten <500m
Universität <8.750m
Höhere Schule <4.000m
Nahversorgung
Supermarkt <750m
Bäckerei <250m
Einkaufszentrum <2.750m
Sonstige
Bank <750m
Geldautomat <750m
Post <750m
Polizei <750m
Verkehr
Bus <250m
U-Bahn <3.500m
Straßenbahn <3.000m
Bahnhof <1.000m
Autobahnanschluss <1.500m
Angaben Entfernung Luftlinie / Quelle: OpenStreetMap
Provision: