MEIN ERGEBNIS ANPASSEN

Mega-Vorsorgeinvestment in Döblinger Bestlage! - Exklusives Wohnprojekt mit Top-Anbindung! - Objektnr. 5640408

1190
Ort
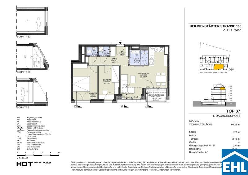
60,23 m²
Fläche
3.0
Zimmer
WEITERE MEDIEN

ECKDATEN
FindMyHome.at // Externe Immobilien-ID5640408 // 83793
ImmobilienartAnlage-Vorsorgewohnung - Eigentum
AnschriftHeiligenstädter Straße/37
1190 Wien
Baujahr2025
Stock5
Geschosse7
Fläche60,23 m²
Terrassen1 (4,00 m²)
Zimmer3.0
Bad1
WC1
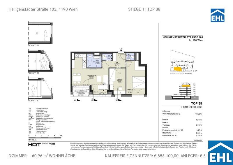
Kaufpreis:€ 505.200,00
Ratenzahlung:Finanzierungsmöglichkeiten für diese Immobilie anzeigen
Provision: Provisionsfrei für den Käufer







BESCHREIBUNG

Mega-Vorsorgeinvestment in Döblinger Bestlage! - Exklusives Wohnprojekt mit Top-Anbindung!

Mega-Vorsorgeinvestment in Döblinger Bestlage! Exklusives Wohnprojekt mit Top-Anbindung!

Sichern Sie sich jetzt eine erstklassige Immobilienanlage in Wiens begehrtem 19. Bezirk! Dieses hochwertige Wohnprojekt bietet nicht nur luxuriöses Wohnen, sondern auch ein unschlagbares Vermietungspotenzial. Die perfekte Kombination aus urbaner Lebensqualität, Naturverbundenheit und exzellenter Verkehrsanbindung macht diese Investition zu einer zukunftssicheren Wahl!

 

Beste Infrastruktur & gefragter Standort für Vermietungen

Nur 5 Gehminuten zum Bahnhof Wien Heiligenstadt mit perfekten Anbindungen:

  • U4-Station Heiligenstadt Direktverbindung in die Wiener Innenstadt
  • Buslinien 10A, 11A und 39A Flexible Mobilität in alle Richtungen
  • S-Bahn S45 & Regionalzüge Top-Verbindung für Pendler
  • Straßenbahnlinie D In nur 3 Minuten fußläufig erreichbar

Dazu kommt die unmittelbare Nähe zum Q19 Einkaufsquartier, den charmanten Nußdorfer Heurigen sowie den Freizeit- und Erholungsgebieten Kahlenberg & Cobenzl ein unschlagbarer Mix aus Stadtleben und Natur!

 

Das Projekt

  • 39 moderne Eigentumswohnungen
  • 4 exklusive Atriumwohnungen
  • 2- bis 4-Zimmer-Wohnungen mit Größen von 44 bis 120 m²
  • Hauseigene Tiefgarage mit 20 Stellplätzen
  • Kellerabteil zu jeder Wohnung
  • Fahrrad- und Kinderwagenabstellraum
  • Kleinkinderspielplatz im Innenhof

 

Die Ausstattung

  • Fußbodenheizung über Fernwärme mit Einzelraumregelung
  • Klimaanlagen in allen Wohnungen des 1. und 2. Dachgeschoßes
  • Kunststofffenster mit 3-fach Verglasung
  • Außenbeschattung (Rollläden im EG und 1. OG, Raffstores ab 2. OG)
  • Videogegensprechanlage
  • Tiefgarage mit Vorbereitungen zur Nachrüstung von E-Ladestationen

 

Kaufpreise der Vorsorgewohnungen

von EUR 302.900,- bis EUR 1.126.600,- netto zzgl. 20% USt.

Zu erwartender Mietertrag

von ca. EUR 16,50 bis EUR 19,50 netto/m²

Provisionsfrei für den Kunden
Fertigstellung: voraussichtlich Mai 2027

 

Bei diesem Angebot handelt es sich um eine Vorsorgewohnung, die zu Vermietungszwecken erworben wird. Der angegebene Kaufpreis versteht sich daher zzgl. 20% USt. Diese Daten sind vorbehaltlich möglicher Änderungen.

Ein detaillierten Überblick finden Sie auf unserer  EHL-Projekthomepage

Visualisierung (Symbolbild) © JamJam

Wir weisen darauf hin, dass zwischen dem Vermittler und dem zu vermittelnden Dritten ein familiäres oder wirtschaftliches Naheverhältnis besteht.

Der Vermittler ist als Doppelmakler tätig.


Infrastruktur / Entfernungen

Gesundheit
Arzt <250m
Apotheke <250m
Klinik <1.000m
Krankenhaus <1.250m

Kinder & Schulen
Schule <750m
Kindergarten <250m
Universität <500m
Höhere Schule <750m

Nahversorgung
Supermarkt <250m
Bäckerei <500m
Einkaufszentrum <1.000m

Sonstige
Geldautomat <250m
Bank <250m
Post <500m
Polizei <500m

Verkehr
Bus <250m
U-Bahn <250m
Straßenbahn <250m
Bahnhof <500m
Autobahnanschluss <1.000m

Angaben Entfernung Luftlinie / Quelle: OpenStreetMap

Provision: Provisionsfrei für den Käufer


Alle Details anzeigen

KONTAKT






 

Lasse dich kostenlos vom Anbieter dieser Immobilie zurückrufen.







 


 
EHL Wohnen GmbH
Andrea PÖCHHACKER; MSc
Telefonnummer anzeigen Telefon Allgemein: +4315127690411
Handy Bearbeiter: +436648373481
 
Bitte dem Makler die FindMyHome.at - ID bekanntgeben: 5640408

Bewertungen dieses Anbieters
Qualitätsmakler
Qualitätsmakler:
Netiquette
Freundlichkeit
82 %

BEWERTUNGEN DIESES ANBIETERS

 
Qualitätsmakler
UNSERE HALL OF FAME DER BESTEN ANBIETER
Qualit�tsmakler
Qualitätsmakler
2012, 2013, 2014, 2015, 2016, 2017, 2018, 2019, 2020, 2021, 22/23, 2024, 2025
Weiterempfehlung
WIRD GERNE

Freundlichkeit
BESONDERS
FREUNDLICH
Netiquette
FINDMYHOME
NETIQUETTE
Auch du kannst bewerten! 7 Tage nach deiner Anfrage erhältst du dafür von uns ein Bewertungsmail.
Alle Infos zu unseren Auszeichnungen und dem FINDMYHOME.AT Qualitätsprogramm findest du hier: Übersicht anzeigen

FINANZIERUNG
?>

Du willst wissen, wie viel dein Umzug kosten wird?

Mach gleich den kostenlosen Preisvergleich und schau, welche seriösen Anbieter in deiner Region günstig deinen Umzug organisieren


ZUM UMZUGS-VERGLEICH
-->

MYHOME BLOG
SuchAgentin auf FindMyHome.at
Unterschiedlichen Rechtsthemen, köstliche Rezepte, neueste Design-Highlights, sowie aktuelle Technik-Tools für Ihr Eigenheim.


FINDMYHOME.AT SUCHAGENTIN
SuchAgentin auf FindMyHome.at
Hallo, soll ich dir ähnliche Immobilien kostenfrei per E-Mail schicken?


ÄHNLICHE IMMOBILIEN
Aehnliche Immobilie - Vorschaubild 1

Barawitzkagasse: Wo Barwert und Wohnwert zusammentreffen.... - Objektnr. 5635987

61,38 m² - 3.0 Zimmer
511743 €
PLZ: 1190

Mehr anzeigen

Aehnliche Immobilie - Vorschaubild 2

Eine Wiener Adresse mit Charakter - ein Investment mit Zukun... - Objektnr. 5635997

68,44 m² - 3.0 Zimmer
534588 €
PLZ: 1190

Mehr anzeigen

Aehnliche Immobilie - Vorschaubild 3

Die Barawitzkagasse: Wo Wertbeständigkeit zuhause ist.... - Objektnr. 5635990

61,10 m² - 3.0 Zimmer
530019 €
PLZ: 1190

Mehr anzeigen

Durch die Nutzung unserer Seite erklären Sie sich mit der Verwendung von Cookies zur Verbesserung Ihres Online-Erlebnisses einverstanden. Detaillierte Informationen zu diesem und weiteren Themen erhalten Sie in unserer Datenschutzerklärung.