Ankommen, durchatmen, zuhause sein.
Nur wenige Minuten von Wien entfernt entsteht in Groß-Enzersdorf ein Wohnprojekt, das genau den Zeitgeist trifft: mehr Ruhe, mehr Freiraum und gleichzeitig volle Anbindung an die Stadt.
Hier beginnt der Tag mit Blick ins Grüne und endet entspannt auf der eigenen Terrasse oder dem Balkon. Die Nähe zur Lobau, weitläufige Naturflächen und ein angenehm gewachsenes Umfeld schaffen ein Wohngefühl, das in dieser Form selten geworden ist.
Die Wohnungen selbst sind so geplant, wie man heute leben möchte: offen, hell und effizient. 2 bis 4 Zimmer, Wohnflächen von ca. 45 m² bis 114 m² und durchdachte Grundrisse bieten Raum für unterschiedlichste Lebenssituationen vom kompakten Investment bis zum Familienzuhause. Jede Einheit verfügt über eine eigene Freifläche und erweitert den Wohnraum ins Freie.
Die Ausstattung folgt einem klaren Anspruch: langlebig, hochwertig und komfortabel. Eichenparkett, moderne Fliesen, dreifach verglaste Fenster, elektrische Beschattung und Fußbodenheizung über Fernwärme sorgen für ein angenehmes Wohnklima. In den Dachgeschosswohnungen bietet eine Klimaanlage zusätzlichen Komfort. Lift, Videogegensprechanlage sowie vorbereitete E-Ladeinfrastruktur runden das Gesamtbild ab. Die Kombination aus Qualität, Funktionalität und zeitlosem Design sorgt für ein angenehmes Wohnklima und langfristige Wertbeständigkeit.
Auch aus Investorensicht überzeugt das Projekt: Die Kombination aus Stadtnähe, Grünlage und funktionalen Grundrissen sorgt für nachhaltige Nachfrage und sehr gute Vermietbarkeit.
Kurz gesagt: ein Projekt, das nicht nur heute passt, sondern auch morgen noch Sinn macht.
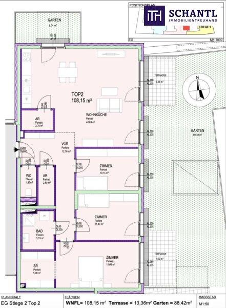
Wohnung Top 2 - Stiege 2
4 Zimmer Gartenwohnung mit optimaler Raumaufteilung und außergewöhnlichem Wohngefühl
Diese großzügige 4-Zimmer-Gartenwohnung vereint durchdachte Raumplanung mit einem besonderen Maß an Lebensqualität. Ruhig im Innenhof gelegen, entsteht hier ein Zuhause, das Rückzug, Freiraum und modernes Wohnen ideal miteinander verbindet.
Auf rund 108,15 m² Wohnfläche überzeugt die Wohnung mit einem offenen und lichtdurchfluteten Wohnbereich von ca. 41 m² das Herzstück des Zuhauses. Große Fensterflächen sorgen für ein angenehmes Raumgefühl und schaffen eine fließende Verbindung in den Außenbereich.
Ein besonderes Highlight: Von sämtlichen Wohn- und Schlafräumen aus gelangen Sie direkt in den rund 90 m² großen Eigengarten mit angeschlossenen Terrassen von ca. 13 m². Ob Frühstück im Freien, entspannte Abende oder Platz für Familie und Freunde hier entsteht ein echtes Wohngefühl mit Hauscharakter.
Die Wohnung verfügt über drei gut geschnittene Schlafzimmer mit ca. 10 m², 11,4 m² und 15,5 m² sowie einen zusätzlichen Schrankraum mit ca. 5 m², der für praktischen Stauraum sorgt. Das Badezimmer ist modern ausgestattet und verfügt über eine Dusche sowie ein WC. Ergänzend steht ein separates WC zur Verfügung. 2 praktische Abstellräume runden diese hervorragende Wohnung ab.
Eine seltene Gelegenheit für alle, die großzügiges Wohnen mit privatem Garten in ruhiger Lage suchen und dennoch die Nähe zur Stadt nicht missen möchten.
Wohnfläche: ca. 108,15 m² + Terrasse: ca. 13,36 m² + Garten: ca. 88,42 m² + Kellerabteil
Kaufpreis: € 629.000,-
KP Garage (optional): € 17.000,-
Kalkulierte Betriebskosten: € 2,-/m² zzgl. Ust.
Provision: 3% zzgl. 20% Ust.
Vereinbaren Sie heute noch einen Termin - wir beraten Sie gerne und zeigen Ihnen alle verfügbaren Einheiten!
www.schantl-ith.at
Bei konkretem Interesse senden wir Ihnen sehr gerne weiterführende Dokumente zu, wie:
o Grundbuchauszug
o Wohnungseigentumsvertrag
o Nutzwertgutachten
o Eigentümerversammlungsprotokoll (Falls vorhanden) etc...
Unser Service für Sie: Wenn Sie sich für diese Immobilie entschieden haben, begleiten wir Sie gerne vom Kaufanbot weg inkl. Klärung von Sonderwünschen und der Vertragsunterzeichnung über die Wohnungsübergabe bis hin zu diversen Ummeldungen wie Strom und Gas. Entsprechende Formulare oder auch Meldezettel stellen wir Ihnen sehr gerne zur Verfügung.
Gerne unterstützen wir Sie auch bei der Finanzierung Ihres Traumobjekts und finden mit unseren langjährigen Partnern die besten Konditionen für Sie.
www.schantl-ith.at
Wir weisen darauf hin, dass zwischen dem Vermittler und dem zu vermittelnden Dritten ein familiäres oder wirtschaftliches Naheverhältnis besteht.
Der Vermittler ist als Doppelmakler tätig.
Infrastruktur / Entfernungen
Gesundheit
Arzt <500m
Apotheke <250m
Klinik <4.500m
Krankenhaus <6.750m
Kinder & Schulen
Schule <500m
Kindergarten <500m
Universität <1.000m
Höhere Schule <4.000m
Nahversorgung
Supermarkt <500m
Bäckerei <500m
Einkaufszentrum <500m
Sonstige
Bank <250m
Geldautomat <500m
Post <250m
Polizei <500m
Verkehr
Bus <250m
U-Bahn <4.000m
Straßenbahn <5.000m
Bahnhof <4.000m
Autobahnanschluss <7.250m
Angaben Entfernung Luftlinie / Quelle: OpenStreetMap
Objekt ist für eine Wohngemeinschaft geeignet
Kabel/SAT/TV: JA
Barrierefrei: JA
Provision: 3% des Kaufpreises zzgl. 20% USt.