Großzügige Altbauwohnung in begehrter Lage - Objektnr. 5639789
ECKDATEN
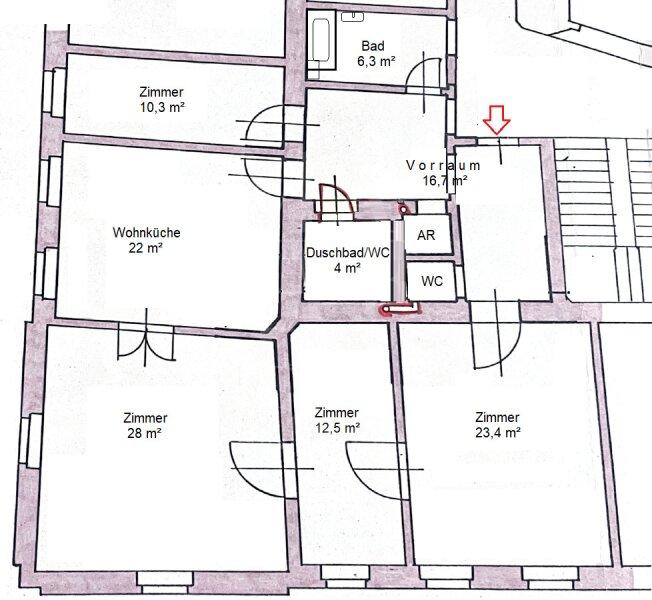
BESCHREIBUNG
KONTAKT
Lasse dich kostenlos vom Anbieter dieser Immobilie zurückrufen.
MAYERL IMMOBILIEN
Daniel Grüner, MSc
Daniel Grüner, MSc
Telefonnummer anzeigen
Telefon Allgemein: +431479411714
Bitte dem Makler die FindMyHome.at - ID bekanntgeben: 5639789
Bitte dem Makler die FindMyHome.at - ID bekanntgeben: 5639789
BEWERTUNGEN DIESES ANBIETERS
ø 24h ANTWORT
WIRD SEHR GERNE
WEITEREMPFOHLEN
WEITEREMPFOHLEN
BESONDERS
FREUNDLICH
FREUNDLICH
FINDMYHOME.AT
NETIQUETTE
NETIQUETTE
Auch du kannst bewerten! 7 Tage nach deiner Anfrage erhältst du dafür von uns ein Bewertungsmail.
Alle Infos zu unseren Auszeichnungen und dem FINDMYHOME.AT Qualitätsprogramm findest du hier: Übersicht anzeigen
Alle Infos zu unseren Auszeichnungen und dem FINDMYHOME.AT Qualitätsprogramm findest du hier: Übersicht anzeigen
FINANZIERUNG
Du willst wissen, wie viel dein Umzug kosten wird?
Mach gleich den kostenlosen Preisvergleich und schau, welche seriösen Anbieter in deiner Region günstig deinen Umzug organisieren
ZUM UMZUGS-VERGLEICH






























