MEIN ERGEBNIS ANPASSEN

Zweitbezug nach kompletter Sanierung - atemberaubende Dachterrasse - MIETREDUKTION WÄHREND DER BAUSTELLE AM NACHBARGRUNDSTÜCK - Objektnr. 5639787

1180
Ort
€ 6.050,00
Gesamtkosten
260,00 m²
Fläche
8.0
Zimmer

ECKDATEN
FindMyHome.at // Externe Immobilien-ID5639787 // 1096/20064
ImmobilienartHaus - Miete
Anschrift1180 Wien
Geschosse3
Mietdauer5
Fläche260,00 m²
Grundfläche600,00 m²
Terrassen5 (160,00 m²)
Zimmer8.0
Bad5
WC6
Brutto-Miete:€ 6.050,00
Betriebskosten (inkl. MwSt):€ 330,00
Mehrwertsteuer:€ 550,00
Monatliche Gesamtkosten:€ 6.050,00
Provision: Gemäß Erstauftraggeberprinzip bezahlt der Abgeber die Provision.




BESCHREIBUNG

Zweitbezug nach kompletter Sanierung - atemberaubende Dachterrasse - MIETREDUKTION WÄHREND DER BAUSTELLE AM NACHBARGRUNDSTÜCK

Während der Baustelle am Nachbargrundstück ist die Nettomiete auf € 4.200,00 zzgl. 10% Ust reduziert

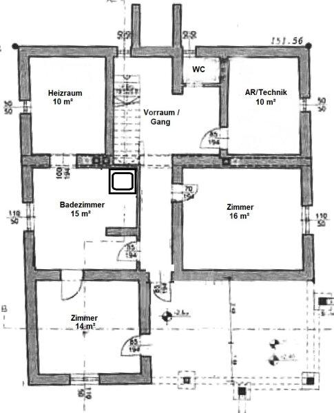
RAUMAUFTEILUNG

ERDGESCHOSS ca. 119m²:

  • Vorraum mit Garderobe
  • voll ausgestattete hochwertige Küche mit Schiebetüre zum Wohnraum
  • Wohn-Esszimmer mit offenem Kamin, ca. 22,5m² Terrasse mit Abgang in den Garten
  • 1 Schlafzimmer mit en suite Badezimmer (Dusche und Toilette)
  • Gästetoilette

1.STOCK ca. 78m²:

  • 3 Schlafzimmer jeweils mit en-suite Badezimmer und Toilette - jedes Zimmer mit Terrassenzugang
  • 1 kleineres Zimmer / Arbeitszimmer ebenfalls mit Terrassenzugang
  • von einer dieser Terrassen gibt es den Aufgang auf die Dachterrasse

SOUTERRAIN ca. 80m²:

  • Ausgang in den Garten
  • 2 (Schlaf-) Zimmer
  • 1 Badezimmer mit Dusche
  • 1 Toilette
  • Wirtschafts/- & Technikraum
  • Abstellraum

AUSSTATTUNG

  • Fußbodenheizung
  • Klimmanlage
  • Solarzellen am Dach
  • Alarmanlage
  • komplette eingerichtete Küche
  • Parkettböden in den Wohn- und Schlafräumen
  • weiße Fliesen in den Bädern
  • offener Kamin im Wohnzimmer
  • Gaszentralheizung
  • Abstellplatz für 1 Auto 



Second letting after complete renovation with stunning roof terrace
The net rent is reduced to €4,200.00 plus 10% VAT during construction work on the neighboring property.

LAYOUT

GROUND FLOOR:

  • entrance area with wardrobe
  • guest toilet
  • fully equipped kitchen with sliding door to the living room
  • living-dining room with fireplace, terrace with access to the garden,
  • 1 bedroom with en-suite bathroom (shower, toilet)

1st FLOOR:

  • 3 bedrooms each with ensuite bathroom and access to a terrace
  • another small room (home office) with access toa terrace
  • access to the roof terrace is available from one of these terraces

SOUTERRAIN

  • access to the garden
  • 2 (bed-)rooms
  • 1 bathroom with shower
  • 1 toilet
  • utility room and technical room
  • storeroom


FEATURES

  • air conditioning
  • alarm system
  • completely equipped kitchen
  • solar panels on the roof
  • underfloor heating
  • wooden flooring in the living areas and bedrooms
  • souterrain and entrance area: tiled flooring
  • tiled bathrooms/white
  • fireplace
  • central heating by gas
  • car parking for 1 car on the property 

Noch nichts gefunden Wir informieren Sie über geeignete Immobilienangebote noch vor allen anderen.
Legen Sie jetzt Ihren individuellen Suchagenten unter folgendem Link an. Wir schicken Ihnen passende Immobilien exklusiv vorab zu.
Suchagent anlegen - https://realkanzlei-hildegard-mayerl-eva-krulis.service.immo/registrieren/de

Wir weisen darauf hin, dass zwischen dem Vermittler und dem zu vermittelnden Dritten ein familiäres oder wirtschaftliches Naheverhältnis besteht.

Der Immobilienmakler erklärt, dass er entgegen dem in der Immobilienwirtschaft üblichen Geschäftsgebrauch des Doppelmaklers einseitig nur für den Vermieter tätig ist.


Infrastruktur / Entfernungen

Gesundheit
Arzt <1.000m
Apotheke <1.000m
Klinik <1.500m
Krankenhaus <1.500m

Kinder & Schulen
Schule <1.000m
Kindergarten <1.000m
Universität <2.500m
Höhere Schule <2.500m

Nahversorgung
Supermarkt <1.500m
Bäckerei <1.000m
Einkaufszentrum <2.500m

Sonstige
Geldautomat <1.500m
Bank <1.500m
Post <1.000m
Polizei <2.000m

Verkehr
Bus <500m
U-Bahn <2.000m
Straßenbahn <1.000m
Bahnhof <2.000m
Autobahnanschluss <4.500m

Angaben Entfernung Luftlinie / Quelle: OpenStreetMap

Klimaanlage: JA
Provision: Gemäß Erstauftraggeberprinzip bezahlt der Abgeber die Provision.


Alle Details anzeigen

KONTAKT






 

Lasse dich kostenlos vom Anbieter dieser Immobilie zurückrufen.







 


 
MAYERL IMMOBILIEN
Eva Krulis
Telefonnummer anzeigen Telefon Allgemein: +431479411710
 
Bitte dem Makler die FindMyHome.at - ID bekanntgeben: 5639787

Bewertungen dieses Anbieters
Netiquette
Freundlichkeit
Antwortszeit
100 %

BEWERTUNGEN DIESES ANBIETERS

 
Antwortzeit
ø 24h ANTWORT
Weiterempfehlung
WIRD SEHR GERNE

Freundlichkeit
BESONDERS
FREUNDLICH
Netiquette
FINDMYHOME
NETIQUETTE
Auch du kannst bewerten! 7 Tage nach deiner Anfrage erhältst du dafür von uns ein Bewertungsmail.
Alle Infos zu unseren Auszeichnungen und dem FINDMYHOME.AT Qualitätsprogramm findest du hier: Übersicht anzeigen


Du willst wissen, wie viel dein Umzug kosten wird?

Mach gleich den kostenlosen Preisvergleich und schau, welche seriösen Anbieter in deiner Region günstig deinen Umzug organisieren


ZUM UMZUGS-VERGLEICH
-->

MYHOME BLOG
SuchAgentin auf FindMyHome.at
Unterschiedlichen Rechtsthemen, köstliche Rezepte, neueste Design-Highlights, sowie aktuelle Technik-Tools für Ihr Eigenheim.


FINDMYHOME.AT SUCHAGENTIN
SuchAgentin auf FindMyHome.at
Hallo, soll ich dir ähnliche Immobilien kostenfrei per E-Mail schicken?


Durch die Nutzung unserer Seite erklären Sie sich mit der Verwendung von Cookies zur Verbesserung Ihres Online-Erlebnisses einverstanden. Detaillierte Informationen zu diesem und weiteren Themen erhalten Sie in unserer Datenschutzerklärung.