MEIN ERGEBNIS ANPASSEN

Wien Panorama - Luxus pur mitten in 1070 Wien! - Objektnr. 5639785

  • Fernblick
  • Aussenansicht
  • Hauseingang
  • Stiegenhaus
  • Fernblick
  • Liftausstieg Wohnbereich
  • Wohnbereich DG 2
  • Küchenanschlüsse
  • Fernblick
  • Zimmer mit Bad
  • Bad
  • Bad
  • Zimmer mit Bad
  • Bad
  • Zimmer
  • Bad
  • Zimmer
  • Zimmereingang
  • Terrasse mit Markise
  • Liftausstieg Terrasse
  • Terrasse mit Lift
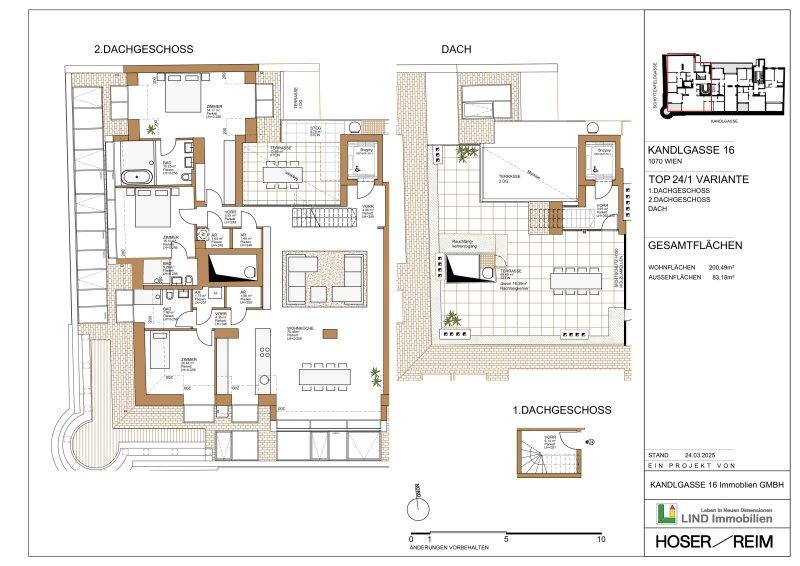
  • Skizze
  • Skizze Variante
1070
Ort
200,49 m²
Fläche
5.0
Zimmer
WEITERE MEDIEN

ECKDATEN
FindMyHome.at // Externe Immobilien-ID5639785 // 1760/954
ImmobilienartWohnung - Eigentum
AnschriftKandlgasse
1070 Wien
Baujahr2025
Fläche200,49 m²
Terrassen1 (83,00 m²)
Zimmer5.0
Bad3
WC3
Kaufpreis:€ 3.300.000,00
Ratenzahlung:Finanzierungsmöglichkeiten für diese Immobilie anzeigen
Provision:







BESCHREIBUNG

Wien Panorama - Luxus pur mitten in 1070 Wien!

Wohnen auf höchstem Niveau in einem revitalisierten Altbau, zentral und lichtdurchflutet.
Dieses top ausgestattete Dachgeschossapartment besticht durch zentrale Raumaufteilung, südseitige Terrasse und hochwertige Ausführung.
Errichtet auf einem historischen Gebäude, vereint es elegante Architektur mit modernem Komfort.

Ich freue mich auf Ihren Anruf
Franz Lind  01 526 26 36 13,  0699 1008 5785

Lage:
Sehr zentrale Lage im Herzen von Wien
Hervorragende Infrastruktur, Anbindung ans öffentliche Verkehrsnetz, Schulen, Einkaufsmöglichkeiten, Gastronomie in unmittelbarer Nähe
Kurze Wege zu Kulturszene und Freizeitangeboten

Ausstattung:
Klimatisierung in allen Wohnräumen
Luftwärmepumpe für Beheizung und Warmwasser
Sonnenschutz
2 Terrassen, einmal mit Blick über Wien und einmal hofseitig
5 Zimmer, praktisch angeordnete Wohn- und Schlafbereiche
3 Bäder sowie 3 Toiletten
Hochwertige Bodenbeläge, großflächige Fenster mit perfekter Arealbelichtung

Raumaufteilung 200qm:
Vorraum
Wohnzimmer mit offener Küche
3-4 Zimmer, je nach Positionierung der Küche lt. Plan
3 Bäder
3 Toiletten
4 Abstellräume

Freiflächen 83qm:
2 Terrassen

Highlights:

Der Lift fährt auf die Wohn- und Terrassenebene!

Revitalisierter Altbau kombiniert historische Details mit zeitgemäßer Technik
Hochwertige Materialien, raffinierte Beleuchtung und elegantes Design

Kaufpreise: 
Wohnung 3.300.000,- EUR
Garage je 60.000,- EUR


Resümee:
Ideal für Menschen die Luxus, Komfort und Zentrumslage schätzen!

Energieausweis: HWB  Ref,SK 24,40   f GEE,SK 0,44

Ich freue mich auf Ihren Anruf
Franz Lind  01 526 26 36 13,  0699 1008 5785

 

Wir weisen darauf hin, dass zwischen dem Vermittler und dem zu vermittelnden Dritten ein familiäres oder wirtschaftliches Naheverhältnis besteht.

Barrierefrei: JA
Provision:


Alle Details anzeigen

KONTAKT






 

Lasse dich kostenlos vom Anbieter dieser Immobilie zurückrufen.







 


 
Lind Immobilien
Franz Lind
Telefonnummer anzeigen Telefon Allgemein: +431526263613
Handy Bearbeiter: +4369910085785
 
Bitte dem Makler die FindMyHome.at - ID bekanntgeben: 5639785

Bewertungen dieses Anbieters
Netiquette
Freundlichkeit

BEWERTUNGEN DIESES ANBIETERS

 
Freundlichkeit
BESONDERS
FREUNDLICH
Netiquette
FINDMYHOME
NETIQUETTE
Auch du kannst bewerten! 7 Tage nach deiner Anfrage erhältst du dafür von uns ein Bewertungsmail.
Alle Infos zu unseren Auszeichnungen und dem FINDMYHOME.AT Qualitätsprogramm findest du hier: Übersicht anzeigen

FINANZIERUNG
?>

Du willst wissen, wie viel dein Umzug kosten wird?

Mach gleich den kostenlosen Preisvergleich und schau, welche seriösen Anbieter in deiner Region günstig deinen Umzug organisieren


ZUM UMZUGS-VERGLEICH
-->

MYHOME BLOG
SuchAgentin auf FindMyHome.at
Unterschiedlichen Rechtsthemen, köstliche Rezepte, neueste Design-Highlights, sowie aktuelle Technik-Tools für Ihr Eigenheim.


FINDMYHOME.AT SUCHAGENTIN
SuchAgentin auf FindMyHome.at
Hallo, soll ich dir ähnliche Immobilien kostenfrei per E-Mail schicken?


Durch die Nutzung unserer Seite erklären Sie sich mit der Verwendung von Cookies zur Verbesserung Ihres Online-Erlebnisses einverstanden. Detaillierte Informationen zu diesem und weiteren Themen erhalten Sie in unserer Datenschutzerklärung.