MEIN ERGEBNIS ANPASSEN

Klassischer Altbau Staudgasse! - Objektnr. 5639777

  • Aussenansicht
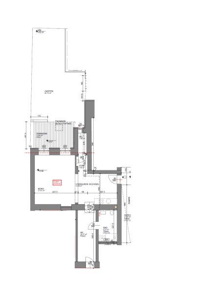
  • Plan Top 1
1180
Ort
55,60 m²
Fläche
1.0
Zimmer

ECKDATEN
FindMyHome.at // Externe Immobilien-ID5639777 // 1760/965
ImmobilienartWohnung - Eigentum
AnschriftStaudgasse
1180 Wien
Baujahr1900
Stock1
Fläche55,60 m²
Terrassen1 (12,00 m²)
Zimmer1.0
Bad1
WC1
Kaufpreis:€ 435.000,00
Ratenzahlung:Finanzierungsmöglichkeiten für diese Immobilie anzeigen
Provision:







BESCHREIBUNG

Klassischer Altbau Staudgasse!

Attraktiver Altbau in der Staudgasse mit Terrasse und Garten!

Ich freue mich auf Ihren Anruf
Franz Lind  01 526 26 36 13,  0699 1008 5785

Provisionsfreie Immobilie für Wohn- oder Büronutzung!

Das in der Staudgasse um 1900 erbaute attraktive Altbaugebäude steht im südlichen Teil des 18. Bezirks in Wien Währing.
Die großzügige 1-Zimmer Immobilie bietet Ihnen einen wunderbaren Rückzugsort mit den Vorzügen eines eigenen Gartens.
Die Wohn- oder Büroimmobilie mit 55,60qm liegt im Erdgeschoß, mit Terrasse und Garten komplett ruhig in hofseitiger Ausrichtung.


Die Fläche kann nach Ihren Wünschen fertiggestellt werden, sie ist im Moment noch im Rohzustand! 

Raumaufteilung:

1 großer Raum
Badezimmer
2 Toiletten
Küche
Abstellraum
Terrasse 
Garten

Besonders hervorzuheben ist die Generalsanierung des Hauses mit Dachbodenausbau, Errichtung eines Liftes, sowie die Erneuerung der Versorgungsleitungen.


Kaufpreis: 435.000,- EUR
 

Lage und Infrastruktur:
Durch die gute Lage in der Staudgasse finden Sie Geschäfte, Schulen, Parkanlagen und öffentliche Verkehrsmittel in unmittelbarer Nähe.
Die U6 Michelbeuern-AKH, die Straßenbahn 9 und 42 und sämtliche Nahversoger des täglichen Bedarfs sind zu Fuß erreichbar.

Resümee:
Eine interessante Erdgeschoß Immobilie mit Terrasse und Garten in Währing, einem lebenswerten Bezirk.
Das Preis- Leistungsverhältnis ist absolut stimmig und ist von fachlicher Seite sehr empfehlenswert!

Energieausweis: HWB 33

Ich freue mich auf Ihren Anruf
Franz Lind  01 526 26 36 13,  0699 1008 5785

 

Wir weisen darauf hin, dass zwischen dem Vermittler und dem zu vermittelnden Dritten ein familiäres oder wirtschaftliches Naheverhältnis besteht.

Der Vermittler ist als Doppelmakler tätig.

Provision:


Alle Details anzeigen

KONTAKT






 

Lasse dich kostenlos vom Anbieter dieser Immobilie zurückrufen.







 


 
Lind Immobilien
Franz Lind
Telefonnummer anzeigen Telefon Allgemein: +431526263613
Handy Bearbeiter: +4369910085785
 
Bitte dem Makler die FindMyHome.at - ID bekanntgeben: 5639777

Bewertungen dieses Anbieters
Netiquette
Freundlichkeit

BEWERTUNGEN DIESES ANBIETERS

 
Freundlichkeit
BESONDERS
FREUNDLICH
Netiquette
FINDMYHOME
NETIQUETTE
Auch du kannst bewerten! 7 Tage nach deiner Anfrage erhältst du dafür von uns ein Bewertungsmail.
Alle Infos zu unseren Auszeichnungen und dem FINDMYHOME.AT Qualitätsprogramm findest du hier: Übersicht anzeigen

FINANZIERUNG
?>

Du willst wissen, wie viel dein Umzug kosten wird?

Mach gleich den kostenlosen Preisvergleich und schau, welche seriösen Anbieter in deiner Region günstig deinen Umzug organisieren


ZUM UMZUGS-VERGLEICH
-->

MYHOME BLOG
SuchAgentin auf FindMyHome.at
Unterschiedlichen Rechtsthemen, köstliche Rezepte, neueste Design-Highlights, sowie aktuelle Technik-Tools für Ihr Eigenheim.


FINDMYHOME.AT SUCHAGENTIN
SuchAgentin auf FindMyHome.at
Hallo, soll ich dir ähnliche Immobilien kostenfrei per E-Mail schicken?


ÄHNLICHE IMMOBILIEN
Aehnliche Immobilie - Vorschaubild 1

Erstbezug 2-Zimmer Wohnung mit Balkon, Nähe Aumannplatz... - Objektnr. 5590951

48,75 m² - 2.0 Zimmer
410000 €
PLZ: 1180

Mehr anzeigen

Aehnliche Immobilie - Vorschaubild 2

NEUER PREIS!! 3 Zimmer Gartenwohnung mit niedrigen Kosten un... - Objektnr. 5616603

59,24 m² - 3 Zimmer
449000 €
PLZ: 1180

Mehr anzeigen

Aehnliche Immobilie - Vorschaubild 3

2 Zimmer-Altbauwohnung mit separater Küche Nähe Türkenschanz... - Objektnr. 5632379

63,52 m² - 2.0 Zimmer
489000 €
PLZ: 1180

Mehr anzeigen

Durch die Nutzung unserer Seite erklären Sie sich mit der Verwendung von Cookies zur Verbesserung Ihres Online-Erlebnisses einverstanden. Detaillierte Informationen zu diesem und weiteren Themen erhalten Sie in unserer Datenschutzerklärung.