MEIN ERGEBNIS ANPASSEN

Schönbrunnerstraße 69 - Historischer Charme trifft moderne Freiheit - Objektnr. 5639478

  • Hofansicht
  • Straßenansicht
  • bei Nacht
  • Bad Variante 1
  • Bad Variante 2
  • Bad Variante 3
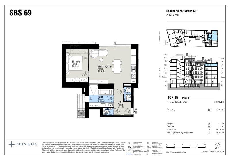
  • Grundriss T35
1050
Ort
58,17 m²
Fläche
2.0
Zimmer

ECKDATEN
FindMyHome.at // Externe Immobilien-ID5639478 // 27969
ImmobilienartWohnung - Eigentum
AnschriftSchönbrunnerstraße
1050 Wien
Fläche58,17 m²
Zimmer2.0
Bad1
WC1
Kaufpreis:€ 729.000,00
Ratenzahlung:Finanzierungsmöglichkeiten für diese Immobilie anzeigen
Provision: 0.03







BESCHREIBUNG

Schönbrunnerstraße 69 - Historischer Charme trifft moderne Freiheit

DAS PROJEKT

Die Liegenschaft befindet sich in zentraler Lage des 5. Wiener Gemeindebezirks an der historischen Schönbrunner Straße, die einst als kaiserliche Route zum Schloss Schönbrunn diente. Im neu ausgebauten Dachgeschoss eines traditionellen Altbaus entstehen 7 exklusive Wohnungen mit 2 bis 4 Zimmern und Wohnflächen von ca. 55 bis 127 m². Alle Wohnungen verfügen über Freiflächen. Einzigartig bei diesem Projekt ist außerdem der Freiraum bei der Gestaltung: Sie haben die Möglichkeit, Ihre Ausstattung aus zahlreichen Varianten frei zu kombinieren und sich so ein Zuhause zu schaffen, das sich an Ihre Wünsche und Vorstellungen anpasst. Dabei vereinen sich historischer Altbaucharme und moderne Wohnstandards harmonisch miteinander.

Historischer Charme trifft moderne Freiheit bedeutet hier: die Freiheit, Ihre Wohnung individuell zu gestalten und aus vielfältigen Ausstattungsvarianten genau Ihr persönliches Zuhause zu formen mitten an der historischen Schönbrunner Straße, einst kaiserliche Route zum Schloss. Die Lage macht den Altbaucharme spürbar, während moderne Wohnstandards und großzügige Freiflächen zeitgemäßes Wohnen ermöglichen. So entsteht ein Wohngefühl, das Geschichte, Stil und persönliche Freiheit harmonisch verbindet.

HIGHLIGHTS

  • 7 exklusive Dachgeschosswohnungen
  • herausragende Architektur
  • 2 - 4 Zimmer | Wohnflächen ca. 55 - 127 m²
  • Ihr Wohntraum in eigener Hand | Ausstattung frei kombinierbar
  • Großzügige Freiflächen
  • Individuelle Gestaltung möglich
  • Historischer Altbau kombiniert mit moderner Architektur
  • Restaurants | Cafés | Boutiquen 
  • Gute Anbindung | Pilgramgasse (U4) | Buslinien 13A, 59A

WOHNUNG STIEGE 2 | TOP 35

Die 2-Zimmer-Wohnung befindet sich im 1. Dachgeschoss und bietet eine Wohnfläche von ca. 58 m².

Die Raumaufteilung gliedert sich wie folgt:

  • Vorraum 
  • Abstellraum mit Waschmaschinenanschluss
  • getrenntes WC
  • zentral begehbares Badezimmer mit Badewanne und Doppelwaschtisch
  • Wohnküche
  • Schlafzimmer

NEBENKOSTEN

Mit der Wohnungseigentumsbegründung, Kaufvertragserrichtung, treuhändigen Abwicklung und grundbücherlichen Durchführung ist Tiefenthaler Gnesda Rechtsanwälte in 1010 Wien, Rockhgasse 6. Die Gesamtkosten für die angeführten Dienstleistungen belaufen sich auf 1,5% zzgl. Umsatzsteuer. Hinzu kommen die Beglaubigungskosten für die Unterschriften.

Dieses Objekt wird Ihnen unverbindlich und freibleibend zum Kauf angeboten. Oben angeführte Angaben basieren auf Informationen und Unterlagen des Eigentümers und sind unsererseits ohne Gewähr. Als Vermittlungshonorar gelten die allgemeinen Geschäftsbedingungen und die Verordnung für Immobilienmakler des BM für Handel, Gewerbe und Industrie, BGBL. 297/1996. Für den Fall, dass es diesbezüglich zu einem entsprechenden Rechtsgeschäft kommt, verrechnen wir Ihnen eine Vermittlungsprovision von 3 Prozent der Kaufsumme zuzüglich der gesetzlichen Mehrwertsteuer. Wir möchten noch darauf hinweisen, dass wir in einem wirtschaftlichen Naheverhältnis zur Verkäuferin stehen.

Wir weisen darauf hin, dass zwischen dem Vermittler und dem zu vermittelnden Dritten ein familiäres oder wirtschaftliches Naheverhältnis besteht.

Der Vermittler ist als Doppelmakler tätig.


Infrastruktur / Entfernungen

Gesundheit
Arzt <250m
Apotheke <250m
Klinik <250m
Krankenhaus <750m

Kinder & Schulen
Schule <250m
Kindergarten <250m
Universität <750m
Höhere Schule <500m

Nahversorgung
Supermarkt <250m
Bäckerei <250m
Einkaufszentrum <750m

Sonstige
Geldautomat <250m
Bank <250m
Post <250m
Polizei <500m

Verkehr
Bus <250m
U-Bahn <250m
Straßenbahn <1.000m
Bahnhof <250m
Autobahnanschluss <3.750m

Angaben Entfernung Luftlinie / Quelle: OpenStreetMap

Provision: 0.03


Alle Details anzeigen

KONTAKT






 

Lasse dich kostenlos vom Anbieter dieser Immobilie zurückrufen.







 


 
WINEGG Makler GmbH
Julian Himmelbauer
Telefonnummer anzeigen Telefon Allgemein: +4313157280
Handy Bearbeiter: +436765505797
 
Bitte dem Makler die FindMyHome.at - ID bekanntgeben: 5639478

Bewertungen dieses Anbieters
Qualitätsmakler
Qualitätsmakler:
2015, 2017, 2025,
Netiquette
Freundlichkeit
83 %

BEWERTUNGEN DIESES ANBIETERS

 
Qualit�tsmakler
Qualitätsmakler
2015, 2017, 2025
Weiterempfehlung
WIRD GERNE

Freundlichkeit
BESONDERS
FREUNDLICH
Netiquette
FINDMYHOME
NETIQUETTE
Auch du kannst bewerten! 7 Tage nach deiner Anfrage erhältst du dafür von uns ein Bewertungsmail.
Alle Infos zu unseren Auszeichnungen und dem FINDMYHOME.AT Qualitätsprogramm findest du hier: Übersicht anzeigen

FINANZIERUNG
?>

Du willst wissen, wie viel dein Umzug kosten wird?

Mach gleich den kostenlosen Preisvergleich und schau, welche seriösen Anbieter in deiner Region günstig deinen Umzug organisieren


ZUM UMZUGS-VERGLEICH
-->

MYHOME BLOG
SuchAgentin auf FindMyHome.at
Unterschiedlichen Rechtsthemen, köstliche Rezepte, neueste Design-Highlights, sowie aktuelle Technik-Tools für Ihr Eigenheim.


FINDMYHOME.AT SUCHAGENTIN
SuchAgentin auf FindMyHome.at
Hallo, soll ich dir ähnliche Immobilien kostenfrei per E-Mail schicken?


ÄHNLICHE IMMOBILIEN
Aehnliche Immobilie - Vorschaubild 1

ESSENZ NO. 1 - Die neue Avantgarde des Wohnens - Exklusive 2... - Objektnr. 5623635

57,86 m² - 2.0 Zimmer
798000 €
PLZ: 1050

Mehr anzeigen

Aehnliche Immobilie - Vorschaubild 2

ESSENZ NO. 1 - Die neue Avantgarde des Wohnens - Exklusive 2... - Objektnr. 5633244

51,94 m² - 2.0 Zimmer
749000 €
PLZ: 1050

Mehr anzeigen

Aehnliche Immobilie - Vorschaubild 3

NÄHE NASCHMARKT: U4 Pilgramgasse - 3 Zimmerwohnung mit optio... - Objektnr. 5532389

67,59 m² - 3.0 Zimmer
599000 €
PLZ: 1050

Mehr anzeigen

Durch die Nutzung unserer Seite erklären Sie sich mit der Verwendung von Cookies zur Verbesserung Ihres Online-Erlebnisses einverstanden. Detaillierte Informationen zu diesem und weiteren Themen erhalten Sie in unserer Datenschutzerklärung.