MEIN ERGEBNIS ANPASSEN

Eine ganze Etage im Haus besitzen! - Objektnr. 5638976

1120
Ort
125,57 m²
Fläche
4.0
Zimmer

ECKDATEN
FindMyHome.at // Externe Immobilien-ID5638976 // 1760/950
ImmobilienartWohnung - Eigentum
AnschriftMünchenstraße
1120 Wien
Baujahr2021
Fläche125,57 m²
Terrassen1 (10,00 m²)
Zimmer4.0
Bad2
WC2
 Abstellraum
Kaufpreis:€ 890.000,00
Ratenzahlung:Finanzierungsmöglichkeiten für diese Immobilie anzeigen
Provision:







BESCHREIBUNG

Eine ganze Etage im Haus besitzen!

Quick facts: Hietzinger Bad I Schlosspark Schönbrunn I Lift I Hofgebäude I Ruhelage I großzügiges Wohnzimmer I 3 Schlafzimmer I Terrasse I Wohnung auf einer ganzen Ebene im Haus! 

Ich freue mich auf Ihren Anruf
Irene Lindenberger 01/526 26 36 

Willkommen in Ihrem neuen Zuhause im charmanten 12. Bezirk von Wien! Diese exquisite Dachgeschosswohnung lässt keine Wünsche offen und bietet Ihnen ein modernes und komfortables Lebensgefühl auf großzügigen 125 m². Die lichtdurchfluteten 4 Zimmer schaffen eine einladende Atmosphäre, in der Sie sich sofort wohlfühlen werden. Die Wohnküche ist das Herzstück dieser Wohnung. Hier können Sie kulinarische Meisterwerke zaubern und gleichzeitig gesellige Abende mit Freunden und Familie verbringen. Die hochwertige Ausstattung und die durchdachte Raumaufteilung machen das Kochen und Verweilen zu einem Genuss.

Genießen Sie entspannte Stunden auf Ihrer eigenen Terrasse. Ob bei einem Glas Wein am Abend oder beim Frühstück an sonnigen Tagen diese Rückzugsoase wird schnell zu Ihrem Lieblingsplatz.

Die Wohnung verfügt über zwei Badezimmer, die Ihnen zusätzlichen Komfort bieten. Die Bäder sind mit Fenster ausgestattet, wodurch Sie frische Luft und Tageslicht genießen können. Es stehen Ihnen zwei WCs zur Verfügung, was besonders für Familien oder WGs von Vorteil ist. Ein praktischer Abstellraum bietet Ihnen zusätzlichen Stauraum für Ihre persönlichen Gegenstände und sorgt für Ordnung.

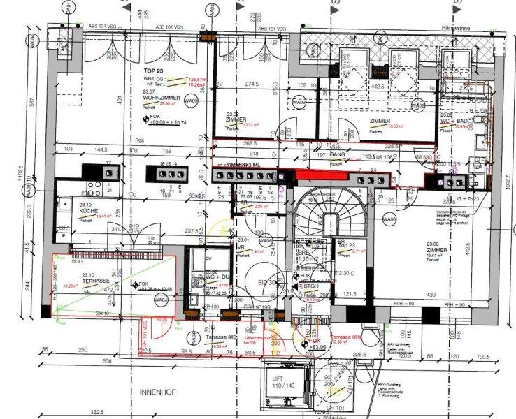
Raumaufteilung auf ca. 125 qm:
Vorraum
Badezimmer
Abstellraum
Küche mit Ausgang zur Terrasse
Wohnzimmer
3 Zimmer
Weiteres Badezimmer 

Nutzen Sie die Gelegenheit, in eine moderne Dachgeschosswohnung einzuziehen, die sowohl stilvoll als auch funktional ist. Verpassen Sie nicht die Chance, Teil dieser lebendigen Nachbarschaft zu werden. Vereinbaren Sie noch heute einen Besichtigungstermin und lassen Sie sich von dieser einzigartigen Immobilie begeistern!

Die Fertigstellungsanzeige für die Wohnung ist gerade in Erstellung!

Energieausweis: HWB 43,50

Ich freue mich auf Ihren Anruf
Irene Lindenberger 01/526 26 36 

 

Wir weisen darauf hin, dass zwischen dem Vermittler und dem zu vermittelnden Dritten ein familiäres oder wirtschaftliches Naheverhältnis besteht.

Der Vermittler ist als Doppelmakler tätig.

Objekt ist für eine Wohngemeinschaft geeignet
Provision:


Alle Details anzeigen

KONTAKT






 

Lasse dich kostenlos vom Anbieter dieser Immobilie zurückrufen.







 


 
Lind Immobilien
Irene Lindenberger
Telefonnummer anzeigen Telefon Allgemein: +4315262636
Handy Bearbeiter: +436608243952
 
Bitte dem Makler die FindMyHome.at - ID bekanntgeben: 5638976

Bewertungen dieses Anbieters
Netiquette
Freundlichkeit

BEWERTUNGEN DIESES ANBIETERS

 
Freundlichkeit
BESONDERS
FREUNDLICH
Netiquette
FINDMYHOME
NETIQUETTE
Auch du kannst bewerten! 7 Tage nach deiner Anfrage erhältst du dafür von uns ein Bewertungsmail.
Alle Infos zu unseren Auszeichnungen und dem FINDMYHOME.AT Qualitätsprogramm findest du hier: Übersicht anzeigen

FINANZIERUNG
?>

Du willst wissen, wie viel dein Umzug kosten wird?

Mach gleich den kostenlosen Preisvergleich und schau, welche seriösen Anbieter in deiner Region günstig deinen Umzug organisieren


ZUM UMZUGS-VERGLEICH
-->

MYHOME BLOG
SuchAgentin auf FindMyHome.at
Unterschiedlichen Rechtsthemen, köstliche Rezepte, neueste Design-Highlights, sowie aktuelle Technik-Tools für Ihr Eigenheim.


FINDMYHOME.AT SUCHAGENTIN
SuchAgentin auf FindMyHome.at
Hallo, soll ich dir ähnliche Immobilien kostenfrei per E-Mail schicken?


ÄHNLICHE IMMOBILIEN
Aehnliche Immobilie - Vorschaubild 1

JUWEL AUF ZWEI EBENEN >> lichtdurchflutete Duplex-Terrassenw... - Objektnr. 5512653

128,02 m² - 3.0 Zimmer
990000 €
PLZ: 1120

Mehr anzeigen

Aehnliche Immobilie - Vorschaubild 2

MODERN TRIFFT EDEL >> zentral begehbarer 4-Zimmer Terrassent... - Objektnr. 5512651

104,87 m² - 4.0 Zimmer
748300 €
PLZ: 1120

Mehr anzeigen

Aehnliche Immobilie - Vorschaubild 3

MAISONETTE IN MEIDLING - Maisonetten Terrassentraum auf 3 gr... - Objektnr. 5512654

110,55 m² - 3.0 Zimmer
849000 €
PLZ: 1120

Mehr anzeigen

Durch die Nutzung unserer Seite erklären Sie sich mit der Verwendung von Cookies zur Verbesserung Ihres Online-Erlebnisses einverstanden. Detaillierte Informationen zu diesem und weiteren Themen erhalten Sie in unserer Datenschutzerklärung.