MEIN ERGEBNIS ANPASSEN

Eine Wohnung zum Träumen und Genießen im letzten Stockwerk - garantierte Projektübergabe SOMMER 2027 & PROVISIONSFREI! - Objektnr. 5638458

8041
Ort
84,56 m²
Fläche
4.0
Zimmer
WEITERE MEDIEN

ECKDATEN
FindMyHome.at // Externe Immobilien-ID5638458 // 296556
ImmobilienartWohnung - Eigentum
AnschriftJohann-Koller-Weg
8041 Graz,07.Bez.:Liebenau
Stock2
Fläche84,56 m²
Zimmer4.0
Bad1
WC1
Kaufpreis:€ 439.712,00
Ratenzahlung:Finanzierungsmöglichkeiten für diese Immobilie anzeigen
Provision:







BESCHREIBUNG

Eine Wohnung zum Träumen und Genießen im letzten Stockwerk - garantierte Projektübergabe SOMMER 2027 & PROVISIONSFREI!

Eine Wohnung zum Träumen und Genießen im letzten Stockwerk - garantierte Projektübergabe Sommer 2027 & PROVISIONSFREI!

 

Willkommen in Ihrem zukünftigen Zuhause! Diese lichtdurchflutete 4-Zimmer-Wohnung im zweiten Obergeschoss eines modernen Neubauprojekts bietet Ihnen nicht nur großzügigen Raum, sondern auch einen wunderschönen West-Balkon, der zu entspannten Abendstunden in der Sonne einlädt. Das perfekte Zuhause für all jene, die hohe Lebensqualität und eine Top-Lage schätzen.

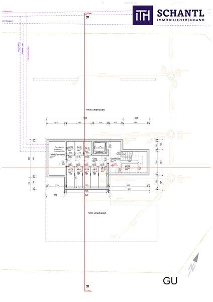
Details zur Top 6 im 2. Obergeschoss:

  • Wohnfläche (WNF): 84,56m²
  • West-Balkon: 24,79m²  ideal für sonnige Abendstunden
  • 4 Zimmer: Hier können Sie nach Belieben umbauen und kombinieren
  • Wohn-/Essbereich: Mit 26,59m²
  • Schlafzimmer: 14,33m² (zweites Schlafzimmer 12,80m² und ein Kinderzimmer mit 11,03m²)
  • Gang: Mit 8,27m²
  • Badezimmer: 6,23m², mit Dusche, Fenster und Waschmaschinenanschluss
  • WC: 3,19m² mit Handwaschbecken
  • Abstellraum: Mit 1,94m²
  • Keller 3,18m²
  • Parkplatz: 14 m², inklusive Leerverrohrung für Elektrofahrzeuge
  • es wurden Referenzbilder vom Bauträger zur Verfügung gestellt!!!

Kaufpreis:

  • Wohnung (Top 6): brutto € 439.712,00
  • Parkplatz: € 17.500,00 brutto (Parkmöglichkeit auch in der Sackstraße vorhanden)
  • provisionsfrei für den Käufer

HIGHLIGHTS:

  • garantierte Projektübergabe SOMMER 2027!!!
  • Lichtdurchflutete Räume: Durch die große Fensterfronten genießen Sie tagsüber viel natürliches Licht und eine angenehme Wohnatmosphäre.
  • Moderne Architektur: Der Neubau überzeugt mit einer klaren, modernen Gestaltung und hochwertigen Materialien, die für langfristigen Wohnkomfort sorgen.
  • Energieeffizienz: Durch die ausgezeichnete Bauweise und die neuesten Standards in der Energietechnik profitieren Sie von niedrigen Energiekosten und einer hohen Nachhaltigkeit.
  • Perfekte Raumaufteilung: Die 4 Zimmer bieten sowohl Platz für eine Familie als auch für Paare, die flexiblen Raum benötigen sei es für Arbeitszimmer, Kinderzimmer oder Gästezimmer.
  • Privater West-Balkon: Genießen Sie Ihre Feierabende auf dem 24,79 m² großen Balkon mit wunderschönem Blick der ideale Ort für ein Abendessen im Freien oder zum Entspannen bei Sonnenuntergang.
  • Hochwertige Ausstattung: Das Badezimmer bietet moderne Sanitäreinrichtungen, eine große Dusche sowie ein Fenster für natürliche Belüftung. Auch das separate WC mit Handwaschbecken sorgt für zusätzlichen Komfort.
  • Parkmöglichkeiten: Neben dem privaten Parkplatz mit Leerverrohrung für Elektrofahrzeuge können Sie auch bequem Ihr Auto in der Sackstraße parken.
  • Abstellraum und Keller-Ersatzraum: Praktische Stauraumlösungen für Ihre täglichen Bedürfnisse und zusätzlichen Platz für Vorräte oder saisonale Dinge.
  • Top Lage: Ruhige und doch zentrale Lage im beliebten Grazer Stadtbezirk 8041, der Ihnen sowohl Ruhe als auch exzellente Anbindung an den öffentlichen Nahverkehr, Einkaufsmöglichkeiten und Freizeitangebote bietet.
  • Individuelle Gestaltungsmöglichkeiten: Passen Sie Ihre Wohnung nach Ihren eigenen Wünschen an durch die flexible Raumaufteilung können Sie verschiedene Kombinationen und Nutzungsmöglichkeiten schaffen.

 

Worauf noch warten

Vereinbaren Sie noch heute eine Besichtigung oder eine persönliche Beratung mit uns!
Sie wollen Ihre Immobilie verkaufen Dann sind Sie bei uns goldrichtig!
Wir sind gerne für Sie da und unterstützen Sie unverbindlich bei der Bewertung Ihrer Immobilie. Mit viel Sorgfalt stellen wir Ihnen alle wichtigen Informationen und Unterlagen zusammen, damit Sie die besten Entscheidungen treffen können.
In Kooperation mit unserer SFI Vermögenstreuhand begleiten wir Sie bei der Verwirklichung Ihres Traumobjekts und unterstützen Sie beim nachhaltigen Vermögensaufbau. Mit unseren erfahrenen Experten sorgen wir dafür, dass Sie die
besten Konditionen erhalten damit Ihre Träume Wirklichkeit werden!


www.schantl-ith.at in Kooperation mit sfi-invest.com


Die Angaben über das angebotene Objekt erfolgen mit der Sorgfalt eines ordentlichen Immobilienmaklers; für die Richtigkeit solcher Angaben, die auf Informationen der über das Objekt Verfügungsberechtigten beruhen, wird keine Gewähr geleistet!

 

 

Wir weisen darauf hin, dass zwischen dem Vermittler und dem zu vermittelnden Dritten ein familiäres oder wirtschaftliches Naheverhältnis besteht.

Der Vermittler ist als Doppelmakler tätig.


Infrastruktur / Entfernungen

Gesundheit
Arzt <250m
Apotheke <500m
Klinik <3.750m
Krankenhaus <3.250m

Kinder & Schulen
Schule <500m
Kindergarten <250m
Universität <2.500m
Höhere Schule <3.500m

Nahversorgung
Supermarkt <250m
Bäckerei <250m
Einkaufszentrum <750m

Sonstige
Geldautomat <500m
Bank <500m
Post <750m
Polizei <750m

Verkehr
Bus <250m
Straßenbahn <750m
Autobahnanschluss <1.500m
Bahnhof <500m
Flughafen <5.750m

Angaben Entfernung Luftlinie / Quelle: OpenStreetMap

Kabel/SAT/TV: JA
Barrierefrei: JA
Provision:


Alle Details anzeigen

KONTAKT






 

Lasse dich kostenlos vom Anbieter dieser Immobilie zurückrufen.







 


 
Schantl ITH Immobilientreuhand GmbH
Ursula Seiwald
Telefonnummer anzeigen Handy Bearbeiter: +436645725475
 
Bitte dem Makler die FindMyHome.at - ID bekanntgeben: 5638458

Bewertungen dieses Anbieters
Qualitätsmakler
Qualitätsmakler:
2015, 2016, 2018, 2019, 2020, 2021, 2023 , 2024, 2025,
Netiquette
Freundlichkeit
80 %

BEWERTUNGEN DIESES ANBIETERS

 
Qualit�tsmakler
Qualitätsmakler
2015, 2016, 2018, 2019, 2020, 2021, 22/23, 2024, 2025
Antwortzeit
ø 48h ANTWORT
Weiterempfehlung
WIRD GERNE

Freundlichkeit
BESONDERS
FREUNDLICH
Netiquette
FINDMYHOME
NETIQUETTE
Auch du kannst bewerten! 7 Tage nach deiner Anfrage erhältst du dafür von uns ein Bewertungsmail.
Alle Infos zu unseren Auszeichnungen und dem FINDMYHOME.AT Qualitätsprogramm findest du hier: Übersicht anzeigen

FINANZIERUNG
?>

Du willst wissen, wie viel dein Umzug kosten wird?

Mach gleich den kostenlosen Preisvergleich und schau, welche seriösen Anbieter in deiner Region günstig deinen Umzug organisieren


ZUM UMZUGS-VERGLEICH
-->

MYHOME BLOG
SuchAgentin auf FindMyHome.at
Unterschiedlichen Rechtsthemen, köstliche Rezepte, neueste Design-Highlights, sowie aktuelle Technik-Tools für Ihr Eigenheim.


FINDMYHOME.AT SUCHAGENTIN
SuchAgentin auf FindMyHome.at
Hallo, soll ich dir ähnliche Immobilien kostenfrei per E-Mail schicken?


ÄHNLICHE IMMOBILIEN
Aehnliche Immobilie - Vorschaubild 1

Freiheit und pure Lebensqualität! Ihr neues Zuhause über den... - Objektnr. 5636940

88,88 m² - 4.0 Zimmer
464900 €
PLZ: 8041

Mehr anzeigen

Aehnliche Immobilie - Vorschaubild 2

Grünblick Peterstal - Exklusive Eigentumswohnungen... - Objektnr. 5635423

73,13 m² - 3.0 Zimmer
459518 €
PLZ: 8042

Mehr anzeigen

Aehnliche Immobilie - Vorschaubild 3

Grünblick Peterstal - Exklusive Eigentumswohnungen... - Objektnr. 5635427

79,57 m² - 4.0 Zimmer
499000 €
PLZ: 8042

Mehr anzeigen

Durch die Nutzung unserer Seite erklären Sie sich mit der Verwendung von Cookies zur Verbesserung Ihres Online-Erlebnisses einverstanden. Detaillierte Informationen zu diesem und weiteren Themen erhalten Sie in unserer Datenschutzerklärung.