MEIN ERGEBNIS ANPASSEN

Provisionsfrei für den Käufer! - "Schau Schatzi, eine Wohnung wie ein Haus! Auch MIETKAUF möglich!" - Objektnr. 5637743

  • Bild_03
  • Bild_02
  • Terrasse OG_b
  • 3-D_Gartenbereich_II
  • Bild_18
  • Terrasse
  • Wohnzimmer
  • Zimmer 2
  • Zimmer 3
  • Zimmer 4
  • Beispiel Schlafzimmer
  • Beispiel Wohnzimmer
  • AR OG
  • Bad OG
  • Technikraum
  • Eingang
  • Terrasse OG_a
  • 3-D_Eingangsbereich_IV
  • EG
  • OG
  • provisionsfrei für den Käufer
  • 25 Jahre REMAX DCI
2504
Ort
108,00 m²
Fläche
4.0
Zimmer

ECKDATEN
FindMyHome.at // Externe Immobilien-ID5637743 // 1626/28602
ImmobilienartWohnung - Eigentum
Anschrift2504 Sooß
NäheBaden, Bad Vöslau
HeizungFußbodenheizung
Geschosse2
Autoabstellplätze2
Beziehbar abnach Vereinbarung
Fläche108,00 m²
Gartenfläche42,00 m²
Terrassen1 (10,44 m²)
Balkon1 (13,51 m²)
Zimmer4.0
Bad1
WC2
Kaufpreis:€ 359.500,00
Ratenzahlung:Finanzierungsmöglichkeiten für diese Immobilie anzeigen
sonstige Kosten (inkl. MwSt):€ 560,00







BESCHREIBUNG

Provisionsfrei für den Käufer! - "Schau Schatzi, eine Wohnung wie ein Haus! Auch MIETKAUF möglich!"

"Warum eine Wohnung, wenn Sie auch ein Haus dafür bekommen können?"

In zentraler Siedlungslage in Sooß wurden 8 Reihenhäuser (ziegelmassiv, belagsfertig) mit je 2 KFZ Stellplätzen sowie dem jeweiligen Gartenanteil errichtet. Diese Häuser stehen bereits zum Verkauf.

Die Reihenhäuser sind zweigeschossig mit einer optimalen Raumaufteilung errichtet.

Erdgeschoss (ca. 53,79 m²)
großer, lichtdurchfluteter Wohn-, Ess- und Küchenbereich
Garderobe, Technikraum, WC

Die gartenseitige Terrasse untermalt den modernen Charakter der Häuser.
Jede Terrasse verfügt über einen Abstellraum mit Platz für Gartengeräte etc.

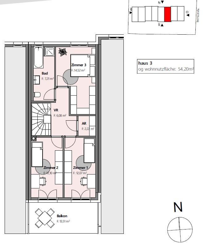
Sie erreichen das Obergeschoss (ca. 54,20 m²) über eine massive Treppe direkt aus dem Wohnzimmer.
Hier findet jedes Familienmitglied seinen Rückzugsort.
Ein großes Schlafzimmer mit integriertem Schrankraum,
zwei weitere Schlafräume, und ein großzügiges Badezimmer

Ausstattung:
ziegelmassiv Bauweise, belagsfertig
Luftwärmepumpe mit Fußbodenheizung
Kunststoff-Aluminium Fenster 3-fach verglast
Raffstore und Rollläden elektrisch

2 PKW-Stellplätze

Die anteiligen Gärten können über einen Weg mit einem Gartentor auch von außen betreten werden.

Im Vorgartenbereich ist für jedes Haus ein eigener Müllplatz angelegt, sowie die Wärmepumpe eingeplant.
Die Trennung der jeweiligen Parzellen erfolgt mittels verzinkten Stabmattenzaun.

Kaufpreis / Baurechtszins:
Als Baurecht wird in Österreich das private Recht bezeichnet, auf einem fremden Grundstück € oder unter dessen Oberfläche € ein Gebäude zu errichten.
Dies ist im Baurechtsgesetz 1912 geregelt. Im Grundbuch wird das Baurecht zweimal eingetragen: in der Stammeinlage als Belastung im C-Blatt (Lastenblatt) und in der Baurechtseinlage.

Das monatliche Baurechtsentgelt beträgt € 365 bis in das Jahr 2121 .

Die monatlichen Betriebskosten sind derzeit mit € 1,80 pro m² WFL inklusive USt eingestuft, d.s. ca. € 195,?.
Die Abrechnungen erfolgen über eine Hausverwaltung.

Eine Haushaltsversicherung wird direkt von dem jeweiligen Käufer gesondert abgeschlossen, die Gebäude- und Sturmschadenversicherung ist bereits in den monatlichen Betriebskosten enthalten.

Kaufpreis Haus 3: € 359.500,-
Abgebergestützt PROVISIONSFREI für den KÄUFER!
Der VERKÄUFER bezahlt die KÄUFERPROVISION! .

Für diese Einheit ist die Variante "MIETKAUF" möglich!
Nettomiete € 1.375,00
Betriebskostenakonto derzeit € 65,00
10% USt. € 144,00
Baurechtszins 0% USt derzeit € 342,88
Monatliche Gesamtmiete € 1.926,88

Die Bau- und Ausstattungsbeschreibung senden wir Ihnen sehr gerne auf Anfrage.

Weitere verfügbare Einheiten:
Top 4 € 108 m² WFL, ca. 42 m² Gartenfläche € € 359.500,- Mietkauf möglich
Top 5 € 108 m² WFL, ca. 45 m² Gartenfläche € € 375.700,- Mietkauf möglich
Top 6 € 108 m² WFL, ca. 44 m² Gartenfläche € € 375.700,-
Top 7 € 108 m² WFL, ca. 41 m² Gartenfläche € € 389.800,-
Top 8 € 108 m² WFL, ca. 108 m² Gartenfläche € € 409.900,-

Für weitere Informationen stehen wir Ihnen sehr gerne zur Verfügung.

Wir weisen auf ein wirtschaftliches Naheverhältnis hin!Angaben gemäß gesetzlichem Erfordernis:
Heizwärmebedarf:26.0 kWh/(m²a)Klasse Heizwärmebedarf:BFaktor Gesamtenergieeffizienz:0.62
Gartennutzung: JA


Alle Details anzeigen

KONTAKT






 

Lasse dich kostenlos vom Anbieter dieser Immobilie zurückrufen.







 


 
RE/MAX Mödling
Andreas Novacek
Telefonnummer anzeigen Handy Bearbeiter: +436643556553
 
Bitte dem Makler die FindMyHome.at - ID bekanntgeben: 5637743

Bewertungen dieses Anbieters
Qualitätsmakler
Qualitätsmakler:
2012, 2015, 2017, 2018, 2019, 2020, 2021 , 2023, 2024, 2025, 2026,
Netiquette
Freundlichkeit

BEWERTUNGEN DIESES ANBIETERS

 
Qualitätsmakler
UNSERE HALL OF FAME DER BESTEN ANBIETER
Qualit�tsmakler
Qualitätsmakler
2012, 2015, 2017, 2018, 2019, 2020, 2021, 22/23, 2024, 2025, 2026
Freundlichkeit
BESONDERS
FREUNDLICH
Netiquette
FINDMYHOME
NETIQUETTE
Auch du kannst bewerten! 7 Tage nach deiner Anfrage erhältst du dafür von uns ein Bewertungsmail.
Alle Infos zu unseren Auszeichnungen und dem FINDMYHOME.AT Qualitätsprogramm findest du hier: Übersicht anzeigen

FINANZIERUNG
?>

Du willst wissen, wie viel dein Umzug kosten wird?

Mach gleich den kostenlosen Preisvergleich und schau, welche seriösen Anbieter in deiner Region günstig deinen Umzug organisieren


ZUM UMZUGS-VERGLEICH
-->

MYHOME BLOG
SuchAgentin auf FindMyHome.at
Unterschiedlichen Rechtsthemen, köstliche Rezepte, neueste Design-Highlights, sowie aktuelle Technik-Tools für Ihr Eigenheim.


FINDMYHOME.AT SUCHAGENTIN
SuchAgentin auf FindMyHome.at
Hallo, soll ich dir ähnliche Immobilien kostenfrei per E-Mail schicken?