MEIN ERGEBNIS ANPASSEN

Die perfekte Stadtwohnung - Magisch schöner Altbau in bester Nachbarschaft! BEZUGSFERTIG! - Objektnr. 5637653


ökologisch beheizt
1080
Ort
30,31 m²
Fläche
1.0
Zimmer
WEITERE MEDIEN

Dokumente


ECKDATEN
FindMyHome.at // Externe Immobilien-ID5637653 // 296473
ImmobilienartEigentum
AnschriftFuhrmannsgasse
1080 Wien
Baujahr1900
Befeuerung
Pellets
Stock3
Geschosse6
Fläche30,31 m²
Zimmer1.0
Bad1
WC1
Kaufpreis:€ 372.000,00
Ratenzahlung:Finanzierungsmöglichkeiten für diese Immobilie anzeigen
Provision: 3% des KP zzgl. 20% Ust.







BESCHREIBUNG

Die perfekte Stadtwohnung - Magisch schöner Altbau in bester Nachbarschaft! BEZUGSFERTIG!

Zuhause ist da, wo nicht nur der Schlüssel passt, sondern sich auch das Herz wohl fühlt

Werfen Sie einen Blick auf dieses wunderschöne Gründerzeithaus und Sie werden Augen machen.

In ruhiger Lage, im Zentrum der Josefstadt gelegen, wurde einem Stilaltbau in perfekter Präzision und großer Liebe zu Details neues Leben eingehaucht. Im Zuge der Sanierung wurden die Altbauwohnungen rundum kernsaniert und erneuert, sowie das Dach mit 5 großzügigen Wohnungen ausgebaut. Hierbei wurde auf den Erhalt der Altbauelemente höchsten Wert gelegt. Angefangen von der gegliederten Fassade, welche sich stilvoll in die ruhige Wohnstraße einfügt, über den neu gestalteten Hauseingang mit Stuckverzierungen bis hin zum frisch sanierten Stiegenhaus mit Personenlift wird Sie dieses prunkvolle Haus auf Anhieb überzeugen. 

Bei der Gestaltung der einzelnen Wohnungen wurde auf eine intelligente und optimierte Raumgestaltung höchsten Wert gelegt, die sich sowohl für Familien als auch Paaren und Singles ideal anbieten. Die sorgfältige Auswahl der Materialien und die einzigartige Liebe zum Detail der sichtbaren Elemente, ergeben ein harmonisches und elegantes Gesamtbild. Hier ist für jede(n) die passende Wohnung zu finden.

Die Ausstattung auf höchstem Niveau überzeugt auf allen Ebenen: Fischgrätparkett in Eiche, Marazzi Fliesen, Grohe/Hansgrohe Armaturen, Laufen Keramiken in Bad und WC, hohe Innentüren (im Altbau in Alt Wien) in Weiß, kontrollierte Wohnraumlüftung, Fußbodenheizung mittels Pellets, neuen 3-fach isolierverglaste Fenster von Josko, Katzbeck und Roto, außenliegender elektrischer Sonnenschutz (im Dachgeschoß), Klimaanlage in jedem Aufenthaltsraum (im Dachgeschoß), uvm. verleihen allen Wohnungen eine warme und wohnliche Atmosphäre. Raumhöhen bis zu 3,50 Meter sorgen für ein angenehmes Wohngefühl! 

Lassen Sie sich bereits jetzt schon von diesem großartigen Projekt mit viel Liebe zum Detail überzeugen und vereinbaren Sie noch heute Ihren persönlichen Besichtigungstermin! 

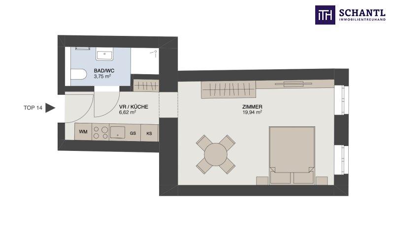
TOP 24

Kompakt - Praktisch - Clever! In dieser klassischen "Theaterwohnung" ist jeder Quadratmeter optimal genutzt. Im Entree sind die Küchenanschlüsse clever integriert, ein modern gestaltetes Badezimmer ist mit stilvollen Fliesen, der Toilette und einer geräumigen Dusche ausgestattet. Die ca. 20 m² des Wohn-Schlafzimmers bieten ausreichend Platz für Ihren puristischen Wohnstil. Raus aus der Wohnung und direkt hinein in das urbane Stadtleben des so wunderbaren 8. Bezirks. So wohnt man gerne!  

Kaufpreis: EUR 372.000,-

Provision: 3% des KP zzgl. 20% Ust.

 

In diesem traumhaften Projekt stehen Altbauwohnungen im Erstbezug von 30,5 m² bis 64,5 m² (teils mit Freiflächen) mit Kaufpreisen von € 390.000.- bis 659.000.- zur Verfügung. 

Verfügbare Einheiten im Dachgeschoß: 

Top 18 - 3 Zimmer - mit ca. 104,48 m² WFL + ca. 13,72 m² Freifläche: KP € 1.525.000.-

Top 19 - 3 Zimmer - mit ca. 66,55 m² WFL + ca. 7,67 m² Freifläche: KP € 1.048.000.-

Top 29 - 3 Zimmer - mit ca. 99,73 m² WFL + ca. 10,64 m² Freifläche: KP € 1.525.000.-

Top 30 - 3 Zimmer - mit ca. 112,20 m² WFL + ca. 20,29 m² Freifläche: KP € 1.810.000.-

 

Bei konkretem Interesse senden wir Ihnen sehr gerne weiterführende Dokumente zu, wie:

o Grundbuchauszug

o Wohnungseigentumsvertrag

o Nutzwertgutachten

o Eigentümerversammlungsprotokoll (Falls vorhanden) etc...

 

Unser Service für Sie: Wenn Sie sich für diese Immobilie entschieden haben, begleiten wir Sie gerne vom Kaufanbot weg inkl. Klärung von Sonderwünschen und der Vertragsunterzeichnung über die Wohnungsübergabe bis hin zu diversen Ummeldungen wie Strom und Gas. Entsprechende Formulare oder auch Meldezettel stellen wir Ihnen sehr gerne zur Verfügung.

Gerne unterstützen wir Sie auch bei der Finanzierung Ihres Traumobjekts und finden mit unseren langjährigen Partnern die besten Konditionen für Sie.

Vereinbaren Sie noch heute einen Termin, wir beraten Sie gerne!

Sie wollen Ihre Immobilie verkaufen Dann sind Sie bei uns goldrichtig! Gerne beraten wir Sie kostenlos bei der Bewertung Ihrer Immobilie und präsentieren Ihnen die dafür entscheidenden Informationen und Unterlagen unverbindlich. 

www.schantl-ith.at

Wir weisen darauf hin, dass zwischen dem Vermittler und dem zu vermittelnden Dritten ein familiäres oder wirtschaftliches Naheverhältnis besteht.

Der Vermittler ist als Doppelmakler tätig.


Infrastruktur / Entfernungen

Gesundheit
Arzt <250m
Apotheke <250m
Klinik <500m
Krankenhaus <750m

Kinder & Schulen
Schule <250m
Kindergarten <250m
Universität <500m
Höhere Schule <250m

Nahversorgung
Supermarkt <250m
Bäckerei <250m
Einkaufszentrum <1.250m

Sonstige
Geldautomat <250m
Bank <250m
Post <500m
Polizei <250m

Verkehr
Bus <250m
U-Bahn <750m
Straßenbahn <250m
Bahnhof <750m
Autobahnanschluss <3.500m

Angaben Entfernung Luftlinie / Quelle: OpenStreetMap

Kabel/SAT/TV: JA
Barrierefrei: JA
Provision: 3% des Kaufpreises zzgl. 20% USt.


Alle Details anzeigen

KONTAKT






 

Lasse dich kostenlos vom Anbieter dieser Immobilie zurückrufen.







 


 
Schantl ITH Immobilientreuhand GmbH
Mark Prettenthaler
Telefonnummer anzeigen Telefon Allgemein: +436643070009
Handy Bearbeiter: +436505675611
 
Bitte dem Makler die FindMyHome.at - ID bekanntgeben: 5637653

Bewertungen dieses Anbieters
Qualitätsmakler
Qualitätsmakler:
2015, 2016, 2018, 2019, 2020, 2021, 2023 , 2024, 2025,
Netiquette
Freundlichkeit
80 %

BEWERTUNGEN DIESES ANBIETERS

 
Qualit�tsmakler
Qualitätsmakler
2015, 2016, 2018, 2019, 2020, 2021, 22/23, 2024, 2025
Antwortzeit
ø 48h ANTWORT
Weiterempfehlung
WIRD GERNE

Freundlichkeit
BESONDERS
FREUNDLICH
Netiquette
FINDMYHOME
NETIQUETTE
Auch du kannst bewerten! 7 Tage nach deiner Anfrage erhältst du dafür von uns ein Bewertungsmail.
Alle Infos zu unseren Auszeichnungen und dem FINDMYHOME.AT Qualitätsprogramm findest du hier: Übersicht anzeigen

FINANZIERUNG
?>

Du willst wissen, wie viel dein Umzug kosten wird?

Mach gleich den kostenlosen Preisvergleich und schau, welche seriösen Anbieter in deiner Region günstig deinen Umzug organisieren


ZUM UMZUGS-VERGLEICH
-->

MYHOME BLOG
SuchAgentin auf FindMyHome.at
Unterschiedlichen Rechtsthemen, köstliche Rezepte, neueste Design-Highlights, sowie aktuelle Technik-Tools für Ihr Eigenheim.


FINDMYHOME.AT SUCHAGENTIN
SuchAgentin auf FindMyHome.at
Hallo, soll ich dir ähnliche Immobilien kostenfrei per E-Mail schicken?


Durch die Nutzung unserer Seite erklären Sie sich mit der Verwendung von Cookies zur Verbesserung Ihres Online-Erlebnisses einverstanden. Detaillierte Informationen zu diesem und weiteren Themen erhalten Sie in unserer Datenschutzerklärung.