MEIN ERGEBNIS ANPASSEN

Barrierefreie 3-Zimmer-Gartenwohnung am Wilhelminenberg! - Objektnr. 5637574

1160
Ort
77,84 m²
Fläche

ECKDATEN
FindMyHome.at // Externe Immobilien-ID5637574 // 7191/238
ImmobilienartWohnung - Eigentum
Anschrift1160 Wien
Baujahr2002
Befeuerung
Geschosse3
Fläche77,84 m²
Terrassen1 (15,00 m²)
Kaufpreis:€ 467.000,00
Ratenzahlung:Finanzierungsmöglichkeiten für diese Immobilie anzeigen
Provision: 3% des Kaufpreises zzgl. 20% USt.







BESCHREIBUNG

Barrierefreie 3-Zimmer-Gartenwohnung am Wilhelminenberg!

Ruhelage, Terrasse, Privatgarten & Stellplatzoption

Diese gepflegte 3-Zimmer-Gartenwohnung in begehrter Grünruhelage am Wilhelminenberg vereint Wohnkomfort, Privatsphäre und Alltagstauglichkeit auf besonders attraktive Weise. In einer kleinen, modernen Wohnhausanlage gelegen, bietet dieses Zuhause genau jene Qualitäten, die in Wien selten geworden sind: Ruhe, Freifläche, Barrierefreiheit und eine durchdachte Raumaufteilung.

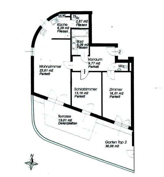
Auf rund 77,84 m² Wohnfläche erwartet Sie ein stimmiges Raumkonzept mit zentral begehbaren Räumen, zwei Schlafzimmern, einem Badezimmer sowie einem separaten WC.

Das besondere Highlight: Alle drei südseitigen Zimmer verfügen über direkten Zugang zur sonnigen Terrasse und in den privaten Garten. So entsteht ein Wohngefühl, das man sonst eher aus dem Hausbereich kennt, nur deutlich komfortabler und pflegeleichter.

Die ca. 15,01 m² große Terrasse und der rund 30,56 m² große Garten (exkl. Terrasse) schaffen einen wunderbaren privaten Rückzugsort im Grünen, ideal für entspannte Stunden im Freien, ein Frühstück in der Morgensonne oder einen ruhigen Feierabend in geschützter Atmosphäre. Gerade für Paare, Best Ager, kleine Familien oder Homeoffice-Nutzer bietet diese Wohnung ein Wohnumfeld mit echter Lebensqualität.

Auch die Ausstattung überzeugt: Hochwertige Parkettböden in den Wohnräumen, stilvolle Fliesen im Badezimmer, elektrische Außenrollos, eine Markise sowie eine Alarmanlage sorgen für Komfort und Sicherheit. Beheizt wird die Wohnung über eine moderne Gas-Etagenheizung. Thermofassade, 2-fach verglaste Fenster, ein Fahrradraum und ein ca. 4 m² großes Kellerabteil runden das Angebot ab.

Die Wohnung wird teilmöbliert übergeben. Ein Garagenplatz kann optional erworben werden.

Die Lage am Wilhelminenberg zählt zu den gefragtesten Wohngegenden im Westen Wiens. Hier wohnen Sie ruhig, naturnah und dennoch gut angebunden. Naherholungsgebiete wie der Ottakringer Wald, der Schlosspark Wilhelminenberg oder der Jubiläumswarteweg befinden sich in der Umgebung und laden zu Spaziergängen, Joggingrunden oder Ausflügen ins Grüne ein. Gleichzeitig sind Einkaufsmöglichkeiten, Schulen, Kindergärten, Apotheken sowie öffentliche Verkehrsmittel rasch erreichbar.

Diese Immobilie ist ideal für alle, die in Wien wohnen möchten, ohne auf Ruhe, Grünraum und privaten Freiraum zu verzichten.

 

Highlights auf einen Blick:

  • 3-Zimmer-Gartenwohnung in Ruhelage
  • ca. 77,84 m² Wohnfläche
  • ca. 15,01 m² Terrasse
  • ca. 30,56 m² privater Garten
  • barrierefrei
  • alle Zimmer mit Zugang zu Terrasse und Garten
  • separate WC-Einheit
  • Kellerabteil
  • Fahrradraum
  • optionaler Garagenplatz
  • gepflegte kleine Wohnhausanlage am Wilhelminenberg

 

Optional steht ein Garagenstellplatz zu einem Kaufpreis von EUR 35.000 zum Erwerb zur Verfügung. Es besteht keine Kaufverpflichtung für den Garagenplatz!

 

Gerade jetzt besonders attraktiv:

Beim Kauf von selbst genutztem Wohneigentum kann noch die befristete Gebührenbefreiung nach § 25 GGG (Gerichtsgebührengesetz) genutzt werden. Da diese Regelung bald endet, lohnt sich eine rasche Entscheidung besonders. Voraussetzung ist, dass der Grundbuchsantrag noch rechtzeitig, also vor dem 1. Juli 2026, eingebracht wird. 

So sparen Sie 1,1% Eintragungsgebühren und 1,2% Hypothekeneintragungskosten im Fall einer Finanzierung.

 


Infrastruktur / Entfernungen

Gesundheit
Arzt <500m
Apotheke <1.500m
Klinik <1.000m
Krankenhaus <1.000m

Kinder & Schulen
Schule <1.500m
Kindergarten <1.000m
Universität <1.000m
Höhere Schule <2.500m

Nahversorgung
Supermarkt <1.500m
Bäckerei <1.500m
Einkaufszentrum <1.500m

Sonstige
Geldautomat <1.500m
Bank <1.500m
Post <1.500m
Polizei <1.500m

Verkehr
Bus <500m
U-Bahn <2.000m
Straßenbahn <1.500m
Bahnhof <2.000m
Autobahnanschluss <6.000m

Angaben Entfernung Luftlinie / Quelle: OpenStreetMap

Barrierefrei: JA
Provision: 3% des Kaufpreises zzgl. 20% USt.


Alle Details anzeigen

KONTAKT






 

Lasse dich kostenlos vom Anbieter dieser Immobilie zurückrufen.







 


 
Hillinger Immobilien GmbH
Robert Holzmann
Telefonnummer anzeigen Telefon Allgemein: +4366499960996
 
Bitte dem Makler die FindMyHome.at - ID bekanntgeben: 5637574

Bewertungen dieses Anbieters
Freundlichkeit
100 %

BEWERTUNGEN DIESES ANBIETERS

 
Weiterempfehlung
WIRD SEHR GERNE

Freundlichkeit
BESONDERS
FREUNDLICH
Auch du kannst bewerten! 7 Tage nach deiner Anfrage erhältst du dafür von uns ein Bewertungsmail.
Alle Infos zu unseren Auszeichnungen und dem FINDMYHOME.AT Qualitätsprogramm findest du hier: Übersicht anzeigen

FINANZIERUNG
?>

Du willst wissen, wie viel dein Umzug kosten wird?

Mach gleich den kostenlosen Preisvergleich und schau, welche seriösen Anbieter in deiner Region günstig deinen Umzug organisieren


ZUM UMZUGS-VERGLEICH
-->

MYHOME BLOG
SuchAgentin auf FindMyHome.at
Unterschiedlichen Rechtsthemen, köstliche Rezepte, neueste Design-Highlights, sowie aktuelle Technik-Tools für Ihr Eigenheim.


FINDMYHOME.AT SUCHAGENTIN
SuchAgentin auf FindMyHome.at
Hallo, soll ich dir ähnliche Immobilien kostenfrei per E-Mail schicken?


ÄHNLICHE IMMOBILIEN
Aehnliche Immobilie - Vorschaubild 1

Privatresidenzen in Parkvillen - Objektnr. 5605361


65,86 m² - 3.0 Zimmer
550300 €
PLZ: 1160

Mehr anzeigen

Aehnliche Immobilie - Vorschaubild 2

Schnell in der City - U6 Burggasse: Preis jetzt sichern! Woh... - Objektnr. 5618091

68,04 m² - 3.0 Zimmer
531200 €
PLZ: 1160

Mehr anzeigen

Aehnliche Immobilie - Vorschaubild 3

++.NEU.++ Fantastische 3-Zimmer Neubau-Wohnung in toller Lag... - Objektnr. 5582534

69,00 m² - 3.0 Zimmer
449000 €
PLZ: 1160

Mehr anzeigen

Durch die Nutzung unserer Seite erklären Sie sich mit der Verwendung von Cookies zur Verbesserung Ihres Online-Erlebnisses einverstanden. Detaillierte Informationen zu diesem und weiteren Themen erhalten Sie in unserer Datenschutzerklärung.