MEIN ERGEBNIS ANPASSEN

RARITÄT: NEU-SANIERTE 6-Zimmer Altbauwohnung in direkter U1-Nähe - ERSTBEZUG!! - Objektnr. 5637516

  • Aktuelle Aufnahme während Sanierung
  • Aktuelle Aufnahme während Sanierung
  • Aktuelle Aufnahme während Sanierung
  • Aktuelle Aufnahme während Sanierung
  • Aktuelle Aufnahme während Sanierung
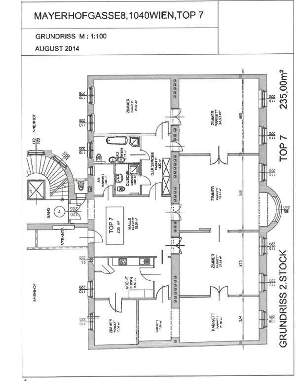
  • Plan Top 7
  • IMMY Preisträger
1040
Ort
€ 4.999,00
Gesamtkosten
235,52 m²
Fläche
6.0
Zimmer

ECKDATEN
FindMyHome.at // Externe Immobilien-ID5637516 // 3610/7472
ImmobilienartWohnung - Miete
Anschrift1040 Wien
NäheMayerhofgasse, Theresianum, Taubstummengasse
HeizungEtagenheizung mit Gas
Liftja
Beziehbar absofort
Mietdauer5.0
Fläche235,52 m²
Zimmer6.0
Bad2
WC3
Kaution:€ 15.000,00
sonstige Kosten (inkl. MwSt):€ 526,22
Mehrwertsteuer:€ 4.995,00
Monatliche Gesamtkosten:€ 4.999,00




BESCHREIBUNG

RARITÄT: NEU-SANIERTE 6-Zimmer Altbauwohnung in direkter U1-Nähe - ERSTBEZUG!!

ERSTBEZUG NACH GENERALSANIERUNG
Zur Vermietung gelangt diese neu sanierte 6-Zimmer Altbauwohnung im 4. Bezirk in der Mayerhofgasse in unmittelbarer U1 Nähe.

Sie befindet sich im 2. Obergeschoß und ist mit einem Aufzug erreichbar. Die Wohnung ist mit 2 Badezimmer und 2 WCs ausgestattet. Die Küche ist ein separater Raum.
Im Zuge der Sanierung wurden Küche, Bäder und Fliesen erneuert. Der Parkett im sogenannten Fischgräten-Stil wurde geschliffen und neu versiegelt.
(ACHTUNG: Die Sanierung ist noch nicht abgeschlossen. Die Wohnung wird voraussichtlich ab Mai 2026 verfügbar sein)

Die Infrastruktur kann als perfekt beschrieben werden. U-Bahn und Geschäfte für den täglichen Bedarf sind fußläufig in wenigen Metern erreichbar. Die U1-Station "Taubstummengasse" befindet sich gleich um die Ecke.

RAUMAUFTEILUNG IN STICHWORTEN
? großes Vorzimmer
? Abstellraum und Garderobe
? WC mit Waschbecken
? Küche
? 6 Zimmer
? Bad1 mit Wanne, Dusche, Waschbecken und WC
? Bad 2 mit Dusche, Waschbecken und WC
? Wintergarten/Veranda

BESONDERHEITEN DES OBJEKTS
? ERSTBEZUG
? repräsentativer, gepflegter Altbau
? 6 Zimmer + separate Küche
? hochwertige Ausstattung
? hohe Decken
? tolle Raumaufteilung
? 2 Badezimmer, 3 WCs
? Traumlage
? U1 Nähe
? Geschäfte für den täglichen Bedarf fußläufig erreichbar
? Innenhof mit überdachtem Fahrradabstellplatz

SEHR GUTE ÖFFENTLICHE VERKEHRSANBINDUNG
? Straßenbahnlinie 1,62
? U-Bahn-Linie: U1 (Taubstummengasse) fußläufig erreichbar

Weitere monatliche Kosten
? Wasser, Heizung und Strom - werden direkt nach Verbrauch abgerechnet
? ggf. TV/Internet, GIS, Haushaltsversicherung, o.Ä.

Erstzahlung
? Kaution: 3 Monatsmieten
? Erste Monatsmiete

VERTRAGSBEDINGUNGEN
? Befristung: 5J oder nach Absprache
? Kündigungsverzicht: 12 Monate
? Kündigungsfrist: 3 Monate
? benötigtes Mindestnettoeinkommen (Haushalt): € 10000,--

Falls Sie Fragen haben oder einen Besichtigungstermin vereinbaren möchten, stehe ich Ihnen selbstverständlich gerne zur Verfügung. Ich freue mich auf Ihre Kontaktaufnahme!

KONTAKT
Robert Fried
Tel: +43 664 88 296 010
Email: robert.fried@hubner-immobilien.com



___Angaben gemäß gesetzlichem Erfordernis:
Miete €4066,16 zzgl 10% USt.Betriebskosten €478,38 zzgl 10% USt.Umsatzsteuer €454,46------------------------------------------------------------------Gesamtbetrag €4999------------------------------------------------------------------Heizwärmebedarf:111.4 kWh/(m²a)Klasse Heizwärmebedarf:DFaktor Gesamtenergieeffizienz:1.87Klasse Faktor Gesamtenergieeffizienz:D


Alle Details anzeigen

KONTAKT






 

Lasse dich kostenlos vom Anbieter dieser Immobilie zurückrufen.







 


 
Hubner Immobilien GmbH
Robert Fried
Telefonnummer anzeigen Telefon Allgemein: +4366488296010
 
Bitte dem Makler die FindMyHome.at - ID bekanntgeben: 5637516

Bewertungen dieses Anbieters
Qualitätsmakler
Qualitätsmakler:
2014, 2015, 2016, 2018, 2019, 2020, 2021 , 2025,
Netiquette
Freundlichkeit
84 %

BEWERTUNGEN DIESES ANBIETERS

 
Qualit�tsmakler
Qualitätsmakler
2014, 2015, 2016, 2018, 2019, 2020, 2021 2025
Weiterempfehlung
WIRD GERNE

Freundlichkeit
BESONDERS
FREUNDLICH
Netiquette
FINDMYHOME
NETIQUETTE
Auch du kannst bewerten! 7 Tage nach deiner Anfrage erhältst du dafür von uns ein Bewertungsmail.
Alle Infos zu unseren Auszeichnungen und dem FINDMYHOME.AT Qualitätsprogramm findest du hier: Übersicht anzeigen


Du willst wissen, wie viel dein Umzug kosten wird?

Mach gleich den kostenlosen Preisvergleich und schau, welche seriösen Anbieter in deiner Region günstig deinen Umzug organisieren


ZUM UMZUGS-VERGLEICH
-->

MYHOME BLOG
SuchAgentin auf FindMyHome.at
Unterschiedlichen Rechtsthemen, köstliche Rezepte, neueste Design-Highlights, sowie aktuelle Technik-Tools für Ihr Eigenheim.


FINDMYHOME.AT SUCHAGENTIN
SuchAgentin auf FindMyHome.at
Hallo, soll ich dir ähnliche Immobilien kostenfrei per E-Mail schicken?


ÄHNLICHE IMMOBILIEN
Aehnliche Immobilie - Vorschaubild 1

Traumhafte 6-Zimmer-Wohnung in 1040 Wien - Objektnr. 5564850


232,13 m² - 6.0 Zimmer
5183.46 €
PLZ: 1040

Mehr anzeigen

Durch die Nutzung unserer Seite erklären Sie sich mit der Verwendung von Cookies zur Verbesserung Ihres Online-Erlebnisses einverstanden. Detaillierte Informationen zu diesem und weiteren Themen erhalten Sie in unserer Datenschutzerklärung.