MEIN ERGEBNIS ANPASSEN

Perfekte Anlage oder Eigenheim mit 3 Zimmer und 19 m² Freifläche! Erstbezug. - Objektnr. 5637354

1210
Ort
64,30 m²
Fläche
3.0
Zimmer

ECKDATEN
FindMyHome.at // Externe Immobilien-ID5637354 // 296429
ImmobilienartEigentum
AnschriftPlatzergasse
1210 Wien
Baujahr2024
Geschosse4
Fläche64,30 m²
Terrassen1 (19,00 m²)
Zimmer3.0
Bad1
WC1
Kaufpreis:€ 312.500,00
Ratenzahlung:Finanzierungsmöglichkeiten für diese Immobilie anzeigen
Provision: 3% zzgl. 20% Ust.







BESCHREIBUNG

Perfekte Anlage oder Eigenheim mit 3 Zimmer und 19 m² Freifläche! Erstbezug.

Hier freuen Sie sich jeden Tag auf´s Heimkommen...

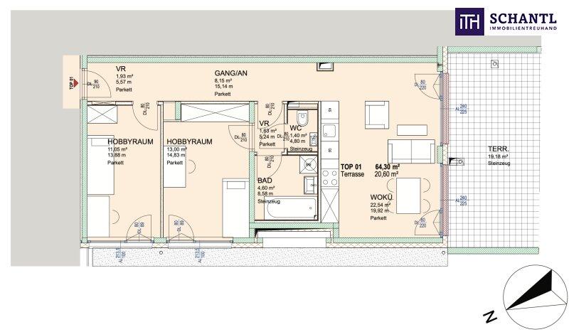
Diese charmante Drei-Zimmer-Wohnung im Erdgeschoss überzeugt durch ihre durchdachte Raumaufteilung und eine private Terrasse, die zusätzlichen Wohnraum im Freien schafft.

Auf rund 64,3 m² Wohnfläche bietet die Wohnung ein angenehm großzügiges Wohnzimmer mit ca. 23 m² sowie zwei gut geschnittene Schlafzimmer mit etwa 13 m² und 11 m². Die zentrale Begehbarkeit sorgt für eine optimale Nutzung der Räume und ein angenehmes Wohngefühl.

Das Badezimmer ist mit einer Badewanne ausgestattet, das WC ist separat ein klarer Pluspunkt im Alltag. Die ca. 19 m² große Terrasse lädt zu entspannten Stunden im Freien ein und erweitert den Wohnraum auf ideale Weise.

Dank der modernen, zeitlosen Ausstattung eignet sich diese Wohnung sowohl perfekt zur Eigennutzung als auch als attraktive Anlage mit sehr guter Vermietbarkeit.

Als Erstbezug präsentiert sich die Wohnung in hochwertiger Ausführung mit stilvollem Fischgrät-Echtholzparkett, 3-Scheiben Isolierverglasung, elektrische Rollläden, Fußbodenheizung sowie effizienter Luftwärmepumpe ein zukunftsorientiertes Wohnkonzept mit besonderem Wohngefühl.

Eine ideale Kombination aus kompaktem Wohnen und großzügigem Freiraum ruhig gelegen und dennoch bestens angebunden.

Wohnfläche: ca. 64,3 m² + Terrasse: ca. 19,18 m² + Kellerabteil 

Kaufpreis (netto für Anleger): € 312.500,- zzgl. 20% Ust. 

Kaufpreis Endverbraucher: € 319.000,- 

KP Garage (optional): € 21.500,-

Provision: 3% zzgl. 20% Ust.

 

Vereinbaren Sie heute noch einen Termin - wir beraten Sie gerne und zeigen Ihnen alle verfügbaren Einheiten!

www.schantl-ith.at

Bei konkretem Interesse senden wir Ihnen sehr gerne weiterführende Dokumente zu, wie:

o Grundbuchauszug

o Wohnungseigentumsvertrag

o Nutzwertgutachten

o Eigentümerversammlungsprotokoll (Falls vorhanden) etc...

 

Unser Service für Sie: Wenn Sie sich für diese Immobilie entschieden haben, begleiten wir Sie gerne vom Kaufanbot weg inkl. Klärung von Sonderwünschen und der Vertragsunterzeichnung über die Wohnungsübergabe bis hin zu diversen Ummeldungen wie Strom und Gas. Entsprechende Formulare oder auch Meldezettel stellen wir Ihnen sehr gerne zur Verfügung.

Gerne unterstützen wir Sie auch bei der Finanzierung Ihres Traumobjekts und finden mit unseren langjährigen Partnern die besten Konditionen für Sie.

www.schantl-ith.at

Wir weisen darauf hin, dass zwischen dem Vermittler und dem zu vermittelnden Dritten ein familiäres oder wirtschaftliches Naheverhältnis besteht.

Der Vermittler ist als Doppelmakler tätig.


Infrastruktur / Entfernungen

Gesundheit
Arzt <250m
Apotheke <750m
Klinik <2.500m
Krankenhaus <1.000m

Kinder & Schulen
Schule <500m
Kindergarten <250m
Universität <1.250m
Höhere Schule <3.500m

Nahversorgung
Supermarkt <750m
Bäckerei <750m
Einkaufszentrum <1.750m

Sonstige
Bank <1.000m
Geldautomat <1.000m
Post <1.500m
Polizei <1.000m

Verkehr
Bus <250m
U-Bahn <3.250m
Straßenbahn <250m
Bahnhof <2.000m
Autobahnanschluss <2.250m

Angaben Entfernung Luftlinie / Quelle: OpenStreetMap

Objekt ist für eine Wohngemeinschaft geeignet
Kabel/SAT/TV: JA
Barrierefrei: JA
Provision: 3% des Kaufpreises zzgl. 20% USt.


Alle Details anzeigen

KONTAKT






 

Lasse dich kostenlos vom Anbieter dieser Immobilie zurückrufen.







 


 
Schantl ITH Immobilientreuhand GmbH
Mark Prettenthaler
Telefonnummer anzeigen Telefon Allgemein: +436643070009
Handy Bearbeiter: +436505675611
 
Bitte dem Makler die FindMyHome.at - ID bekanntgeben: 5637354

Bewertungen dieses Anbieters
Qualitätsmakler
Qualitätsmakler:
2015, 2016, 2018, 2019, 2020, 2021, 2023 , 2024, 2025,
Netiquette
Freundlichkeit
80 %

BEWERTUNGEN DIESES ANBIETERS

 
Qualit�tsmakler
Qualitätsmakler
2015, 2016, 2018, 2019, 2020, 2021, 22/23, 2024, 2025
Antwortzeit
ø 48h ANTWORT
Weiterempfehlung
WIRD GERNE

Freundlichkeit
BESONDERS
FREUNDLICH
Netiquette
FINDMYHOME
NETIQUETTE
Auch du kannst bewerten! 7 Tage nach deiner Anfrage erhältst du dafür von uns ein Bewertungsmail.
Alle Infos zu unseren Auszeichnungen und dem FINDMYHOME.AT Qualitätsprogramm findest du hier: Übersicht anzeigen

FINANZIERUNG
?>

Du willst wissen, wie viel dein Umzug kosten wird?

Mach gleich den kostenlosen Preisvergleich und schau, welche seriösen Anbieter in deiner Region günstig deinen Umzug organisieren


ZUM UMZUGS-VERGLEICH
-->

MYHOME BLOG
SuchAgentin auf FindMyHome.at
Unterschiedlichen Rechtsthemen, köstliche Rezepte, neueste Design-Highlights, sowie aktuelle Technik-Tools für Ihr Eigenheim.


FINDMYHOME.AT SUCHAGENTIN
SuchAgentin auf FindMyHome.at
Hallo, soll ich dir ähnliche Immobilien kostenfrei per E-Mail schicken?


ÄHNLICHE IMMOBILIEN
Aehnliche Immobilie - Vorschaubild 1

# SQ - ZENTRALE LAGE AM SPITZ - 3 ZIMMER ALTBAUWOHNUNG - SAN... - Objektnr. 5607224

57,00 m² - 3.0 Zimmer
285000 €
PLZ: 1210

Mehr anzeigen

Aehnliche Immobilie - Vorschaubild 2

NEUES WOHNGLÜCK in Floridsdorf + TOP 1/5 + moderne Erstbezug... - Objektnr. 5635929

56,28 m² - 2.0 Zimmer
297500 €
PLZ: 1210

Mehr anzeigen

Aehnliche Immobilie - Vorschaubild 3

NEUES WOHNGLÜCK in Floridsdorf + TOP 1/15 + moderne Erstbezu... - Objektnr. 5635919

52,77 m² - 2.0 Zimmer
297500 €
PLZ: 1210

Mehr anzeigen

Durch die Nutzung unserer Seite erklären Sie sich mit der Verwendung von Cookies zur Verbesserung Ihres Online-Erlebnisses einverstanden. Detaillierte Informationen zu diesem und weiteren Themen erhalten Sie in unserer Datenschutzerklärung.