MEIN ERGEBNIS ANPASSEN

Bürohaus/Villa im Cottage - Objektnr. 5636291

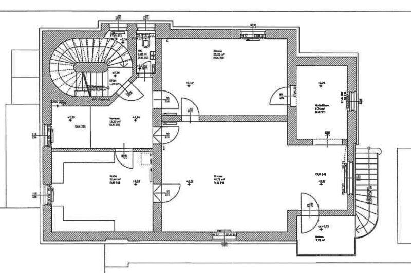
  • Parterre
  • Souterrian
  • 1. OG
  • Dachgeschoss
1190
Ort
€ 6.204,00
Gesamtkosten
500,00 m²
Fläche
12.0
Zimmer

ECKDATEN
FindMyHome.at // Externe Immobilien-ID5636291 // 1096/20091
ImmobilienartHaus - Miete
Anschrift1190 Wien
Baujahr1900
Befeuerung
Geschosse3
Mietdauer10
Grundfläche640,00 m²
Terrassen2 (32,00 m²)
Zimmer12.0
Bad4
WC5
 Abstellraum
Kaution:€ 18.000,00
Brutto-Miete:€ 6.204,00
Betriebskosten (inkl. MwSt):€ 804,00
Mehrwertsteuer:€ 1.034,00
Monatliche Gesamtkosten:€ 6.204,00
Provision: 3 Bruttomonatsmieten zzgl. 20% USt.




BESCHREIBUNG

Bürohaus/Villa im Cottage

Repräsentative Villa im Cottage als Firmensitz nutzbar unmittelbare Nähe zum Türkenschanzpark

Dieses großzügige Haus überzeugt durch ihre klassische Architektur, weitläufige Grundrisse und ein erstklassiges Umfeld nd eignet sich ideal für Unternehmen, die ein repräsentatives Mietobjekt mit großzügigem Raumangebot und hochwertiger Infrastruktur suchen.

 

Hochparterre

  • Vorraum
  • sehr großer Raum mit direktem Zugang zum Garten
  • 2 weitere Räume
  • WC
  • Serverraum

1. Obergeschoss

  • 3 große Zimmer (eines mit Zugang zu einer Terrasse)
  • 2 Nasszellen (auch als Abstellraum nutzbar)
  • 2 WC
  • Küche 

Mansarde

  • 4 Zimmer (eines mit Zugang zu Terrasse)
  • Nasszelle
  • WC
  • 1 Abstellräume

Souterrain

  • 1 großes Arbeitszimmer
  • 2 weitere Zimmer
  • 1 Nasszelle
  • kleine Küche
  • 1 WC
  • Diverse Abstellräume

Ausstattung 

  • Garten, Terrassen
  • Parkettböden
  • Gasetagenheizung pro Ebene
  • Garage 

 


 

Noch nichts gefunden Wir informieren Sie über geeignete Immobilienangebote noch vor allen anderen.
Legen Sie jetzt Ihren individuellen Suchagenten unter folgendem Link an. Wir schicken Ihnen passende Immobilien exklusiv vorab zu.
Suchagent anlegen - https://realkanzlei-hildegard-mayerl-eva-krulis.service.immo/registrieren/de

Hinweis gemäß Energieausweisvorlagegesetz: Ein Energieausweis wurde vom Eigentümer bzw. Verkäufer, nach unserer Aufklärung über die generell geltende Vorlagepflicht, sowie Aufforderung zu seiner Erstellung noch nicht vorgelegt. Daher gilt zumindest eine dem Alter und der Art des Gebäudes entsprechende Gesamtenergieeffizienz als vereinbart. Wir übernehmen keinerlei Gewähr oder Haftung für die tatsächliche Energieeffizienz der angebotenen Immobilie.

Wir weisen darauf hin, dass zwischen dem Vermittler und dem zu vermittelnden Dritten ein familiäres oder wirtschaftliches Naheverhältnis besteht.


Infrastruktur / Entfernungen

Gesundheit
Arzt <500m
Apotheke <1.000m
Klinik <1.000m
Krankenhaus <1.500m

Kinder & Schulen
Schule <500m
Kindergarten <500m
Universität <500m
Höhere Schule <1.000m

Nahversorgung
Supermarkt <1.000m
Bäckerei <500m
Einkaufszentrum <2.000m

Sonstige
Geldautomat <1.000m
Bank <1.000m
Post <1.000m
Polizei <1.000m

Verkehr
Bus <500m
U-Bahn <1.500m
Straßenbahn <1.000m
Bahnhof <1.000m
Autobahnanschluss <2.000m

Angaben Entfernung Luftlinie / Quelle: OpenStreetMap

Provision: 3 Bruttomonatsmieten zzgl. 20% USt.


Alle Details anzeigen

KONTAKT






 

Lasse dich kostenlos vom Anbieter dieser Immobilie zurückrufen.







 


 
MAYERL IMMOBILIEN
Eva Krulis
Telefonnummer anzeigen Telefon Allgemein: +431479411710
 
Bitte dem Makler die FindMyHome.at - ID bekanntgeben: 5636291

Bewertungen dieses Anbieters
Netiquette
Freundlichkeit
Antwortszeit
100 %

BEWERTUNGEN DIESES ANBIETERS

 
Antwortzeit
ø 24h ANTWORT
Weiterempfehlung
WIRD SEHR GERNE

Freundlichkeit
BESONDERS
FREUNDLICH
Netiquette
FINDMYHOME
NETIQUETTE
Auch du kannst bewerten! 7 Tage nach deiner Anfrage erhältst du dafür von uns ein Bewertungsmail.
Alle Infos zu unseren Auszeichnungen und dem FINDMYHOME.AT Qualitätsprogramm findest du hier: Übersicht anzeigen


Du willst wissen, wie viel dein Umzug kosten wird?

Mach gleich den kostenlosen Preisvergleich und schau, welche seriösen Anbieter in deiner Region günstig deinen Umzug organisieren


ZUM UMZUGS-VERGLEICH
-->

MYHOME BLOG
SuchAgentin auf FindMyHome.at
Unterschiedlichen Rechtsthemen, köstliche Rezepte, neueste Design-Highlights, sowie aktuelle Technik-Tools für Ihr Eigenheim.


FINDMYHOME.AT SUCHAGENTIN
SuchAgentin auf FindMyHome.at
Hallo, soll ich dir ähnliche Immobilien kostenfrei per E-Mail schicken?


ÄHNLICHE IMMOBILIEN
Aehnliche Immobilie - Vorschaubild 1

EINFAMILIENHAUS IN GRINZING AM WEINBERG MIT WIENBLICK... - Objektnr. 5565191

297,19 m² - 7.0 Zimmer
6490 €
PLZ: 1190

Mehr anzeigen

Aehnliche Immobilie - Vorschaubild 2

ERSTBEZUG nach RENOVIERUNG! CHARMANTES ALTWIENERHAUS NÄHE RU... - Objektnr. 5634529

350,00 m² - 8.0 Zimmer
6990.5 €
PLZ: 1190

Mehr anzeigen

Aehnliche Immobilie - Vorschaubild 3

DOPPELHAUSHÄLFTE - NÄHE AMERIKANISCHER SCHULE - 6 SCHLAFZIMM... - Objektnr. 5568182

374,12 m² - 7.0 Zimmer
6695 €
PLZ: 1190

Mehr anzeigen

Durch die Nutzung unserer Seite erklären Sie sich mit der Verwendung von Cookies zur Verbesserung Ihres Online-Erlebnisses einverstanden. Detaillierte Informationen zu diesem und weiteren Themen erhalten Sie in unserer Datenschutzerklärung.