MEIN ERGEBNIS ANPASSEN

Möblierte Terrassen-Neubauwohnung mit Blick über Wien - Privatstraße - Objektnr. 5636290

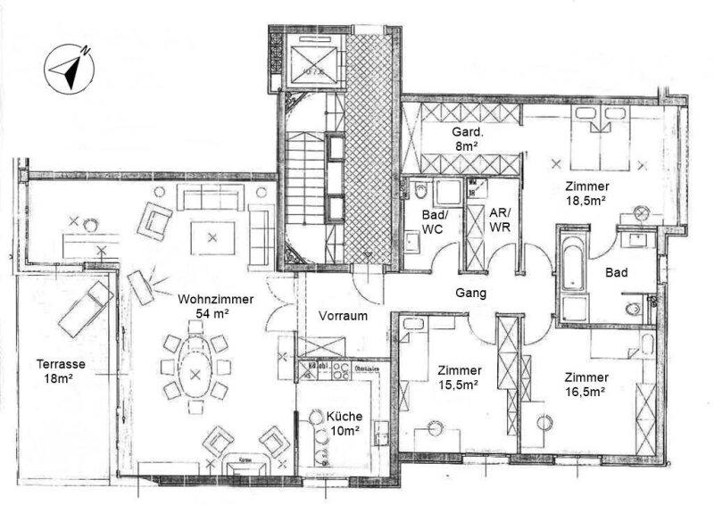
  • PLAN
1180
Ort
€ 2.726,36
Gesamtkosten
156,00 m²
Fläche
4.0
Zimmer

ECKDATEN
FindMyHome.at // Externe Immobilien-ID5636290 // 1096/18451
ImmobilienartWohnung - Miete
Anschrift1180 Wien
Baujahr2007
Mietdauer3
Fläche156,00 m²
Terrassen1 (18,00 m²)
Zimmer4.0
Bad2
WC2
Brutto-Miete:€ 2.726,36
Betriebskosten (inkl. MwSt):€ 565,35
Mehrwertsteuer:€ 247,86
Monatliche Gesamtkosten:€ 2.726,36
Provision: Gemäß Erstauftraggeberprinzip bezahlt der Abgeber die Provision.




BESCHREIBUNG

Möblierte Terrassen-Neubauwohnung mit Blick über Wien - Privatstraße

SEHR SCHÖNE, MÖBLIERTE WOHNUNG MIT TERRASSE IN NEUEM HAUS
PRIVATSTRASSE - absolute Grünruhelage, nähe Wilbrandtgasse, 2. Stock mit Lift

RAUMAUFTEILUNG:
großes Vorzimmer mit Garderobe, voll ausgestattete Küche mit Schiebetür zu sehr geräumigem Wohn-Esszimmer mit offenem Kamin und Ausgang auf die Terrasse mit tollem Fernblick, Masterbedroom mit begehbarer Garderobe und Tageslicht-Bad (Wanne, Dusche, Toilette) ensuite, 2 weitere Schlafzimmer, 1 Duschbad mit Toilette, Wirtschaftsraum mit Waschmaschine und Trockner

AUSSTATTUNG:
Parkett- und Steinböden, Marmorfliesen in den Bädern (Stein-und Marmorböden mit Fußbodenheizung), komplett neue Matratzen, offener Kamin, elektrische Außenrollos, große elektrische Markise, Kellerabteil, Fahrrad und Kinderwagenabstellplatz, Lift
+ Garagenplatz verpflichtend anzumieten um € 112,50 inkl. Ust. und BK monatlich

Noch nichts gefunden Wir informieren Sie über geeignete Immobilienangebote noch vor allen anderen.
Legen Sie jetzt Ihren individuellen Suchagenten unter folgendem Link an. Wir schicken Ihnen passende Immobilien exklusiv vorab zu.
Suchagent anlegen - https://realkanzlei-hildegard-mayerl-eva-krulis.service.immo/registrieren/de

Wir weisen darauf hin, dass zwischen dem Vermittler und dem zu vermittelnden Dritten ein familiäres oder wirtschaftliches Naheverhältnis besteht.

Der Immobilienmakler erklärt, dass er entgegen dem in der Immobilienwirtschaft üblichen Geschäftsgebrauch des Doppelmaklers einseitig nur für den Vermieter tätig ist.


Infrastruktur / Entfernungen

Gesundheit
Arzt <500m
Apotheke <500m
Klinik <1.000m
Krankenhaus <2.000m

Kinder & Schulen
Schule <500m
Kindergarten <500m
Universität <1.000m
Höhere Schule <1.500m

Nahversorgung
Supermarkt <500m
Bäckerei <500m
Einkaufszentrum <2.500m

Sonstige
Geldautomat <500m
Bank <500m
Post <1.000m
Polizei <1.000m

Verkehr
Bus <500m
U-Bahn <2.000m
Straßenbahn <500m
Bahnhof <1.500m
Autobahnanschluss <3.500m

Angaben Entfernung Luftlinie / Quelle: OpenStreetMap

Provision: Gemäß Erstauftraggeberprinzip bezahlt der Abgeber die Provision.


Alle Details anzeigen

KONTAKT






 

Lasse dich kostenlos vom Anbieter dieser Immobilie zurückrufen.







 


 
MAYERL IMMOBILIEN
Eva Krulis
Telefonnummer anzeigen Telefon Allgemein: +431479411710
 
Bitte dem Makler die FindMyHome.at - ID bekanntgeben: 5636290

Bewertungen dieses Anbieters
Netiquette
Freundlichkeit
Antwortszeit
100 %

BEWERTUNGEN DIESES ANBIETERS

 
Antwortzeit
ø 24h ANTWORT
Weiterempfehlung
WIRD SEHR GERNE

Freundlichkeit
BESONDERS
FREUNDLICH
Netiquette
FINDMYHOME
NETIQUETTE
Auch du kannst bewerten! 7 Tage nach deiner Anfrage erhältst du dafür von uns ein Bewertungsmail.
Alle Infos zu unseren Auszeichnungen und dem FINDMYHOME.AT Qualitätsprogramm findest du hier: Übersicht anzeigen


Du willst wissen, wie viel dein Umzug kosten wird?

Mach gleich den kostenlosen Preisvergleich und schau, welche seriösen Anbieter in deiner Region günstig deinen Umzug organisieren


ZUM UMZUGS-VERGLEICH
-->

MYHOME BLOG
SuchAgentin auf FindMyHome.at
Unterschiedlichen Rechtsthemen, köstliche Rezepte, neueste Design-Highlights, sowie aktuelle Technik-Tools für Ihr Eigenheim.


FINDMYHOME.AT SUCHAGENTIN
SuchAgentin auf FindMyHome.at
Hallo, soll ich dir ähnliche Immobilien kostenfrei per E-Mail schicken?


ÄHNLICHE IMMOBILIEN
Aehnliche Immobilie - Vorschaubild 1

Luxuriöse ausgestattete Terrassenwohnung - 2 Schlafzimmer... - Objektnr. 5623438

132,00 m² - 4.0 Zimmer
3249.25 €
PLZ: 1180

Mehr anzeigen

Durch die Nutzung unserer Seite erklären Sie sich mit der Verwendung von Cookies zur Verbesserung Ihres Online-Erlebnisses einverstanden. Detaillierte Informationen zu diesem und weiteren Themen erhalten Sie in unserer Datenschutzerklärung.