MEIN ERGEBNIS ANPASSEN

Exklusives Baugrundstück in einzigartiger Lage mit Einreichplanung! - Objektnr. 5636070

1190
Ort
5.500,00 m²
Fläche

ECKDATEN
FindMyHome.at // Externe Immobilien-ID5636070 // 5109
ImmobilienartGrundstück - Eigentum
Anschrift1190 Wien
Geschosse4
Fläche1.717,60 m²
Grundfläche5.500,00 m²
Kaufpreis:€ 7.000.000,00
Ratenzahlung:Finanzierungsmöglichkeiten für diese Immobilie anzeigen
Provision: 3% des Kaufpreises zzgl. 20% USt.







BESCHREIBUNG

Exklusives Baugrundstück in einzigartiger Lage mit Einreichplanung!

Im Falle der Notwendigkeit einer Fremdfinanzierung Ihrer Wunschimmobilie ermittelt unser Wohnbau-Finanzierungsexperte gerne die optimale Finanzierungslösung und findet das passende Zins- und Konditionsangebot für Sie. Er vergleicht die aktuellen Angebote aller relevanten Banken und Bausparkassen. Der Angebotsvergleich kann aus einem Portfolio von über 120 Banken erfolgen. Das Erstgespräch ist für Sie kostenfrei und unverbindlich, gerne auch bei Ihnen vor Ort. So sparen Sie Ihre wertvolle Zeit und erhalten eine professionelle und unabhängige Finanzierungslösung vom Spezialisten. Sprechen Sie uns wegen eines Termins gerne an!

 

Zum Verkauf gelangt ein einzigartiges Grundstück in einer der exklusivsten Lagen Wiens am Kahlenberg.

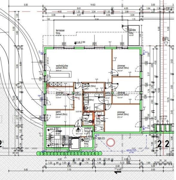
Werden Sie mit einer Investition Teil der Wiener Geschichte und nutzen Sie die einmalige Gelegenheit in dieser berühmten Lage zu Bauen. Das exklusive Grundstück, welches sich über eine Fläche von ca. 5.500 m² erstreckt, verfügt über baubewilligte Einreichplanungen für die Errichtung eines modernen 4. stöckigen Wohngebäudes mit 15 hochwertig konzipierten Wohneinheiten. Das Projekt richtet sich gezielt an Investoren, die ein sofort umsetzbares Wohnbauvorhaben in einer der gefragtesten Wohnlagen Wiens suchen.

Die geplanten Wohnungen überzeugen durch großzügige und effiziente Grundrisse mit Wohnflächen von ca. 77 m² bis ca. 151 m². Damit deckt das Projekt ein breites Spektrum ab, von komfortablen Familienwohnungen bis hin zu exklusiven, großzügigen Einheiten für anspruchsvolle Eigennutzer. Insgesamt wird mit der Planung eine großzügige Wohnfläche von ca. 1.718 m² erzielt. Zusätzlich dazu sind in der Planung Terrassen, sowie Eigengärten, welche eine Gesamtfläche von ca. 2.133 m² aufweisen, vorgesehen. 
Die Planung entspricht modernen Wohnbedürfnissen und bietet optimale Voraussetzungen für eine nachhaltige Vermietung oder einen attraktiven Einzelabverkauf.

Der Preis ist als Verhandlungsbasis zu verstehen.

Auf dem Grundstück befindet sich noch ein Gebäudes, von welchem der Keller nach Abriss weiterhin nutzbar bleibt. 

Der Standort befindet sich in einer der prestigeträchtigsten Wohngegenden am Kahlenberg, eingebettet in eine ruhige, grüne Lage mit hoher Privatsphäre und außergewöhnlichem Wohnambiente. Die Umgebung ist geprägt von gepflegten Villen, hochwertiger Wohnbebauung und weitläufigen Grünflächen, die ein exklusives und zugleich naturnahes Lebensgefühl vermitteln.

Der Kahlenberg zählt zu den beliebtesten Erholungsgebieten Wiens und bietet einen einzigartigen Freizeit- und Lebenswert: weitläufige Spazier- und Wanderwege, traditionelle Weingärten, Aussichtspunkte mit Blick über die Stadt sowie zahlreiche Heurigenbetriebe befinden sich in unmittelbarer Umgebung. Diese besondere Lage vereint Ruhe, Natur und Erholung mit einer raschen Erreichbarkeit des urbanen Zentrums. Die gute Verkehrsanbindung, dank der nahgelegenen Busstation, sowie des großflächigen Parkplatzes, ermöglicht eine komfortable Anbindung an die Innenstadt sowie an die wichtigsten Verkehrsachsen. Nahversorger, Schulen und weitere infrastrukturelle Einrichtungen sind in kurzer Distanz erreichbar und unterstreichen die hohe Alltagstauglichkeit des Standorts.

Gerne lassen wir Ihnen bei ernsthaftem Interesse - vor Kaufanbotlegung - weitere vertraulichen Dokumente zu dieser Liegenschaft zukommen, welche nicht veröffentlicht werden dürfen.

Überzeugen Sie sich selbst von diesem überaus attraktiven Objekt. Für Besichtigungen und nähere Informationen stehen wir Ihnen gerne zur Verfügung!

Mag. Viola Wasmuth
national - Tel: 0670 4039361
international - Tel: +43 670 4039361
e-mail:

Wir weisen darauf hin, dass zwischen dem Vermittler und dem zu vermittelnden Dritten ein familiäres oder wirtschaftliches Naheverhältnis besteht.

Der Vermittler ist als Doppelmakler tätig.

 

 


Infrastruktur / Entfernungen

Gesundheit
Arzt <2.500m
Apotheke <2.500m
Klinik <3.000m
Krankenhaus <4.000m

Kinder & Schulen
Schule <2.500m
Kindergarten <2.000m
Universität <500m
Höhere Schule <3.500m

Nahversorgung
Supermarkt <2.500m
Bäckerei <2.500m
Einkaufszentrum <3.500m

Sonstige
Geldautomat <2.500m
Bank <2.500m
Post <2.000m
Polizei <3.000m

Verkehr
Bus <500m
U-Bahn <4.000m
Straßenbahn <2.500m
Bahnhof <3.000m
Autobahnanschluss <2.500m

Angaben Entfernung Luftlinie / Quelle: OpenStreetMap

Provision: 3% des Kaufpreises zzgl. 20% USt.


Alle Details anzeigen

KONTAKT






 

Lasse dich kostenlos vom Anbieter dieser Immobilie zurückrufen.







 


 
IM Lifestyle Properties GmbH
Viola Wasmuth
Telefonnummer anzeigen Telefon Allgemein: +4315121484
Handy Bearbeiter: +436704039361
 
Bitte dem Makler die FindMyHome.at - ID bekanntgeben: 5636070

Bewertungen dieses Anbieters
Qualitätsmakler
Qualitätsmakler:
2019, 2023,
Netiquette
Freundlichkeit

BEWERTUNGEN DIESES ANBIETERS

 
Qualit�tsmakler
Qualitätsmakler
2019, 22/23
Freundlichkeit
BESONDERS
FREUNDLICH
Netiquette
FINDMYHOME
NETIQUETTE
Auch du kannst bewerten! 7 Tage nach deiner Anfrage erhältst du dafür von uns ein Bewertungsmail.
Alle Infos zu unseren Auszeichnungen und dem FINDMYHOME.AT Qualitätsprogramm findest du hier: Übersicht anzeigen

FINANZIERUNG
?>

Du willst wissen, wie viel dein Umzug kosten wird?

Mach gleich den kostenlosen Preisvergleich und schau, welche seriösen Anbieter in deiner Region günstig deinen Umzug organisieren


ZUM UMZUGS-VERGLEICH
-->

MYHOME BLOG
SuchAgentin auf FindMyHome.at
Unterschiedlichen Rechtsthemen, köstliche Rezepte, neueste Design-Highlights, sowie aktuelle Technik-Tools für Ihr Eigenheim.


FINDMYHOME.AT SUCHAGENTIN
SuchAgentin auf FindMyHome.at
Hallo, soll ich dir ähnliche Immobilien kostenfrei per E-Mail schicken?