MEIN ERGEBNIS ANPASSEN

***NEU***3 Zimmer mit Terrasse Nähe Stadthalle - Objektnr. 5635882

1150
Ort
71,00 m²
Fläche
3.0
Zimmer

ECKDATEN
FindMyHome.at // Externe Immobilien-ID5635882 // 62975
ImmobilienartWohnung - Eigentum
Anschrift1150 Wien,Rudolfsheim-Fünfhaus
Baujahr1900
Befeuerung
Stock1
Fläche71,00 m²
Zimmer3.0
Bad1
WC1
 Abstellraum
Kaufpreis:€ 429.900,00
Ratenzahlung:Finanzierungsmöglichkeiten für diese Immobilie anzeigen
Provision: 3% des Kaufpreises zzgl. 20% USt.







BESCHREIBUNG

***NEU***3 Zimmer mit Terrasse Nähe Stadthalle

***ZUR VEREINBARUNG eines BESICHTIGUNGSTERMINS lassen SIE uns BITTE JEDENFALLS eine schriftliche ANFRAGE am besten gleich mit Ihren TERMINWÜNSCHEN zukommen! (wir antworten verlässlich am selben Tag!)***

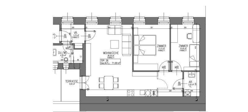
Zum Verkauf gelangt diese ca. 71m² große 3-Zimmer Altbauwohnung  in sehr guter Lage des 15. Wiener Gemeindebezirks gelegen.

Raumaufteilung:

  • Badezimmer mit WC
  • Wohnesszimmer
  • Zimmer
  • Zimmer

(siehe Grundrissplan und Fotos - gemacht nach der Sanierung vor wenigen Jahren + Mitte März eingerichtet)

Ausstattung:

Alle Wohnungen wurde hochwertig ausgestattet. In allen Zimmern wurde ein wunderschöner Parkettboden verlegt, die Nassräume wurden hochwertig verfliest und mit Markenamaturen ausgestattet.

Zustand:

Die Wohnung wurde vor wenigen Jahren generalsaniert und ist in einem gepflegten Zustand. Sie ist derzeit bis Juni 2026 vermietet. 

Lage/Infrastruktur: 

Die Wohnung befindet sich in der Hütteldorferstraße und somit in guter Lage des 15. Wiener Gemeidebezirks welcher von seinen Bewohnern vor allem wegen seiner gleichzeitigen Nähe zum Stadtzentrum (Universitäts- und Rathausviertel, Altes und Neues AKH) und zu Naherholungsbieten (Schwarzenbergpark, Schafberg, Kongresspark) geschätzt wird. 

Fußläufig sind in der unmittelbaren Umgebung zahlreiche Geschäfte des täglichen Bedarfs (Lebensmittel, Restaurants, Bekleidungsgeschäfte, Apotheken, Banken) sowie auch diverse Arztpraxen binnen weniger Minuten zu erreichen.
Direkt vor der Haustür befindet sich die Buslinie 12A , die Straßenbahn 49 und die U3-Station Schweglerstraße. Somit kann die Wiener Innenstadt innerhalb von 20 Minuten erreicht werden.
Auch Kindergärten, Schulen und Universitäten sind mit den oben genannten öffentlichen Verkehrsmitteln bestens angebunden.

Preis:

Der Preis für diese Eigentumswohnung beträgt EUR 429.900.-.

Die monatlichen Betriebskosten belaufen sich auf ca. 2,5€ pro m² netto belaufen. Die Rücklage beträgt 1,13€ pro m² und betrug Ende 2025 ca. € 62.000,-.

Sollten Sie Fragen haben oder eine Besichtigung wünschen, zögern Sie bitte nicht mich zu kontaktieren.

 

Zur Vereinbarung eines Besichtigungstermins lassen Sie uns bitte jedenfalls eine E-Mailanfrage zukommen!

Der IMMY ist die renommierteste Auszeichnung für Wiener Makler- und Verwalterbetriebe im Bereich Wohnimmobilien. Wir sind stolz den goldenen IMMY für das Jahr 2019 gewonnen zu haben!

Vielen Dank vor allem an unsere Kunden! Unser Unternehmen wurde auch zum Besten Start Up und mehrmals als Qualitätsmakler ausgezeichnet!

Nicht alle unsere Immobilien finden Sie auf den gängigen Plattformen. Wir freuen uns auf Ihren Besuch auf unserer Homepage unter adonia.at 

Wir weisen ausdrücklich auf unser wirtschaftliches Naheverhältnis mit dem Abgeber/ der Abgeberin hin!  Unsere gesetzlichen Pflichten als Doppelmakler werden dadurch jedoch nicht beeinträchtigt. Irrtum und Änderungen vorbehalten. Irrtum und Änderungen vorbehalten.

Alle hier veröffentlichen Informationen basieren auf den uns von dem Abgeber/ der Abgeberin zur Verfügung gestellten Informationen und wurden nicht selbst erhoben.

Unsere Allgemeinen Geschäftsbedingungen können Sie sowohl in dem Ihnen zugesandten Expose einsehen als auch auf unserer Homepage. Wir weisen ausdrücklich darauf hin, dass diese AGBs Vertragsinhalt werden.

Der Schutz von personenbezogenen Daten ist uns wichtig und auch gesetzlich gefordert. Die Verarbeitung Ihrer personenbezogenen Daten erfolgt nach den datenschutzrechtlichen Bestimmungen. Auf unserer Homepage (unter Datenschutzinformation) finden Sie eine Übersicht die Sie über die wichtigsten Aspekte der Verarbeitung personenbezogener Daten informieren soll.

Wir weisen darauf hin, dass zwischen dem Vermittler und dem zu vermittelnden Dritten ein familiäres oder wirtschaftliches Naheverhältnis besteht.

Der Vermittler ist als Doppelmakler tätig.


Infrastruktur / Entfernungen

Gesundheit
Arzt <500m
Apotheke <500m
Klinik <500m
Krankenhaus <2.000m

Kinder & Schulen
Schule <500m
Kindergarten <500m
Universität <1.000m
Höhere Schule <1.500m

Nahversorgung
Supermarkt <500m
Bäckerei <500m
Einkaufszentrum <500m

Sonstige
Geldautomat <500m
Bank <500m
Post <500m
Polizei <500m

Verkehr
Bus <500m
U-Bahn <500m
Straßenbahn <500m
Bahnhof <500m
Autobahnanschluss <5.000m

Angaben Entfernung Luftlinie / Quelle: OpenStreetMap

Objekt ist für eine Wohngemeinschaft geeignet
Provision: 3% des Kaufpreises zzgl. 20% USt.


Alle Details anzeigen

KONTAKT






 

Lasse dich kostenlos vom Anbieter dieser Immobilie zurückrufen.







 


 
Adonia Realitätenvermittlung GmbH
Rene Motamedi
Telefonnummer anzeigen Telefon Allgemein: +4369910983719
 
Bitte dem Makler die FindMyHome.at - ID bekanntgeben: 5635882

Bewertungen dieses Anbieters
Qualitätsmakler
Qualitätsmakler:
2015, 2018, 2019, 2020, 2023, 2024,
Netiquette
Freundlichkeit

BEWERTUNGEN DIESES ANBIETERS

 
Qualit�tsmakler
Qualitätsmakler
2015, 2018, 2019, 2020, 22/23, 2024
Freundlichkeit
BESONDERS
FREUNDLICH
Netiquette
FINDMYHOME
NETIQUETTE
Auch du kannst bewerten! 7 Tage nach deiner Anfrage erhältst du dafür von uns ein Bewertungsmail.
Alle Infos zu unseren Auszeichnungen und dem FINDMYHOME.AT Qualitätsprogramm findest du hier: Übersicht anzeigen

FINANZIERUNG
?>

Du willst wissen, wie viel dein Umzug kosten wird?

Mach gleich den kostenlosen Preisvergleich und schau, welche seriösen Anbieter in deiner Region günstig deinen Umzug organisieren


ZUM UMZUGS-VERGLEICH
-->

MYHOME BLOG
SuchAgentin auf FindMyHome.at
Unterschiedlichen Rechtsthemen, köstliche Rezepte, neueste Design-Highlights, sowie aktuelle Technik-Tools für Ihr Eigenheim.


FINDMYHOME.AT SUCHAGENTIN
SuchAgentin auf FindMyHome.at
Hallo, soll ich dir ähnliche Immobilien kostenfrei per E-Mail schicken?


ÄHNLICHE IMMOBILIEN
Aehnliche Immobilie - Vorschaubild 1

ELEGANTE 2 ZIMMER WOHNUNG | DACHGESCHOSS | MIT TERRASSE... - Objektnr. 5593447

62,29 m² - 2.0 Zimmer
489000 €
PLZ: 1150

Mehr anzeigen

Aehnliche Immobilie - Vorschaubild 2

Balkonliebe inklusive - Top sanierte 3-Zimmer-Altbauwohnung ... - Objektnr. 5584821

71,32 m² - 3.0 Zimmer
499000 €
PLZ: 1150

Mehr anzeigen

Aehnliche Immobilie - Vorschaubild 3

Smarter Grundriss + tolle Lichtverhältnisse durch Ost-West-A... - Objektnr. 5620403

72,26 m² - 3.0 Zimmer
349000 €
PLZ: 1150

Mehr anzeigen

Durch die Nutzung unserer Seite erklären Sie sich mit der Verwendung von Cookies zur Verbesserung Ihres Online-Erlebnisses einverstanden. Detaillierte Informationen zu diesem und weiteren Themen erhalten Sie in unserer Datenschutzerklärung.