Charmante 2-Zimmer-Wohnung in ruhiger Lage des 17. Bezirks - - Objektnr. 5635836
ECKDATEN
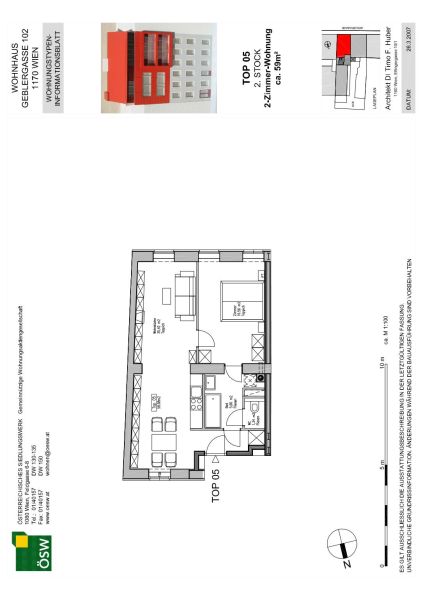
BESCHREIBUNG
KONTAKT
Lasse dich kostenlos vom Anbieter dieser Immobilie zurückrufen.
ÖSW Konzern
Österreichisches Siedlungswerk Gemeinnützige Wohnungsaktiengesellschaft
Österreichisches Siedlungswerk Gemeinnützige Wohnungsaktiengesellschaft
Telefonnummer anzeigen
Telefon Allgemein: +43192929130
Bitte dem Makler die FindMyHome.at - ID bekanntgeben: 5635836
Bitte dem Makler die FindMyHome.at - ID bekanntgeben: 5635836
Bewertungen dieses Anbieters
Qualitätsmakler:
2015, 2017, 2019, 2020, 2021, 2023, 2025 ,
2015, 2017, 2019, 2020, 2021, 2023, 2025 ,
81
%
BEWERTUNGEN DIESES ANBIETERS
Top Developer
2015, 2017, 2019, 2020, 2021, 22/23, 2025
2015, 2017, 2019, 2020, 2021, 22/23, 2025
WIRD GERNE
WEITEREMPFOHLEN
WEITEREMPFOHLEN
BESONDERS
FREUNDLICH
FREUNDLICH
Auch du kannst bewerten! 7 Tage nach deiner Anfrage erhältst du dafür von uns ein Bewertungsmail.
Alle Infos zu unseren Auszeichnungen und dem FINDMYHOME.AT Qualitätsprogramm findest du hier: Übersicht anzeigen
Alle Infos zu unseren Auszeichnungen und dem FINDMYHOME.AT Qualitätsprogramm findest du hier: Übersicht anzeigen
Du willst wissen, wie viel dein Umzug kosten wird?
Mach gleich den kostenlosen Preisvergleich und schau, welche seriösen Anbieter in deiner Region günstig deinen Umzug organisieren
ZUM UMZUGS-VERGLEICH






















