MEIN ERGEBNIS ANPASSEN

Ruhige 2-Zimmer Wohnung | 50 m² Wohnfläche | mit Balkon (Ziegelmassivbau!) - Objektnr. 5635777

2460
Ort
50,00 m²
Fläche
2.0
Zimmer
WEITERE MEDIEN

ECKDATEN
FindMyHome.at // Externe Immobilien-ID5635777 // 2165/40
ImmobilienartWohnung - Eigentum
AnschriftJosef-Fischer-Gasse/6
2460 Bruck an der Leitha
Baujahr2025
Geschosse3
Fläche50,00 m²
Zimmer2.0
Bad1
Kaufpreis:€ 237.900,00
Ratenzahlung:Finanzierungsmöglichkeiten für diese Immobilie anzeigen
Provision:







BESCHREIBUNG

Ruhige 2-Zimmer Wohnung | 50 m² Wohnfläche | mit Balkon (Ziegelmassivbau!)

Famosahaus - Qualität und Erfahrung seit mehr als 25 Jahren.
Einziehen & Wohlfühlen! Provisionsfrei, direkt vom Bauträger!


Wo Lage & Wohnkomfort sich verbinden

Wohnen in Bruck an der Leitha verbindet Wohnkomfort, Freizeitqualität und optimale Erreichbarkeit perfekt für Familien, Singles und Paare, die Stadtnähe schätzen und dennoch im Grünen zur Ruhe kommen möchten. In der Josef Fischer-Gasse 3 bieten 24 hochwertige Ziegelmassiv-Eigentumswohnungen Raum für neue Lebensphasen mit Balkon oder Terrasse bzw. Garten, die den Wohnraum spürbar ins Freie erweitern. Barrierefreier Zugang, großzügige Kellerabteile sowie Parkplätze und Fahrradabstellplätze runden das Angebot ab. Nur noch wenige Einheiten verfügbar jetzt informieren und Besichtigung sichern!

 

Auf einen Blick:

  • 24 Wohnungen (2 Stiegen), fertiggestellt nur mehr wenige Einheiten verfügbar!
  • 43 96 m² Wohnnutzfläche
  • 2-4 Zimmer
  • Balkon oder Garten mit Terrasse je Wohneinheit
  • Großzügige Kellerabteile, 1-2 Parkplätze je Wohneinheit, Barrierefreier Zugang zu den Wohnungen (Lift), Fahrrad-/Kinderwagenabstellraum
  • Wohnungseingangstüre mit WK3 Sicherheitsstufe
  • Niedrige Energiekosten: Solarkollektoren für die Warmwasseraufbereitung, Luftwärmepumpe (Heizen & Kühlen), Fußbodenheizung, Fenster mit 3-fach Verglasung & manueller Außenrolläden
  • Hochwertige Ziegelmassivbauweise & TÜV AUSTRIA Baubegleitung
  • Zusammenarbeit mit namhaften regionalen Partnerbetrieben (u.a. Leitl, Rekord, Vaillant, Bramac, Knauf, Wienerberger)
  • Fixpreis & Finanzierungshilfe, Wohnbauförderung möglich!
  • Direkt vom Bauträger, ohne Maklerkosten
  • Strom-, Wasser- & Kanalanschlussgebühren sowie Aufschließungsabgabe im Kaufpreis inkludiert
  • 3 Jahren Gewährleistung ab Schlüsselübergabe
  • Preise ab € 237.900

Je nach Objekt werden Kaufpreise mit und ohne Oberflächenpaket angeboten. Das Oberflächenpaket beinhaltet Malerarbeiten, Fliesen-/Plattenarbeiten (z. B. Feinsteinzeug 60 × 60 cm Ares Warm Beige) und Bautischlerarbeiten (z. B. Fertigparkett Eiche Landhausdiele), hochwertige Sanitärausstattung z.B. mit Villeroy und Boch. Für weitere Informationen zur Bau- und Ausstattung kontaktieren Sie uns gerne.
 

Folgende Wohneinheiten sind noch verfügbar:

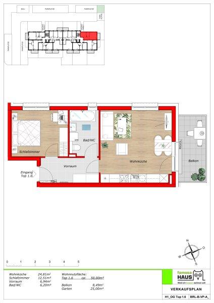
Top 1.6 (50 m² WF, Balkon, 2 Parkplätze) KP: 237.900 € (ohne Oberflächenpaket) 252.900 € (mit Oberflächenpaket)

Top 1.10 (96 m² WF, Balkon, 2 Parkplätze) KP: 405.900 € (ohne Oberflächenpaket) 428.900 € (mit Oberflächenpaket)

Top 1.12 (96 m² WF, 2 Balkone, 2 Parkplätze) KP: 418.900 € (ohne Oberflächenpaket) 441.900 € (mit Oberflächenpaket)

Top 2.10 (96 m² WF, Balkon, 2 Parkplätze) KP: 428.900 € (mit Oberflächenpaket)

Top 2.12 (96 m² WF, 2 Balkone, 2 Parkplätze) KP: 418.900 € (ohne Oberflächenpaket) 441.900 € (mit Oberflächenpaket)

 

Jetzt unverbindlich informieren und Finanzierungsmöglichkeiten für Ihren Weg ins Eigenheim entdecken.

Die Wohnung Top 1.6 befindet sich im 1 OG und bietet auf rund 50 m² ein Wohngefühl, das größer wirkt als die Fläche: hell, offen und angenehm durchdacht. Mittelpunkt ist die sonnige Wohnküche mit direktem Zugang auf den großen Balkon (ca. 8,5 m²) der perfekte Platz für Frühstück in der Sonne oder entspannte Abende im Freien. Ein Schlafzimmer, Bad und Vorraum runden den kompakten Grundriss ab.

Auf Wunsch ist die Wohnung optional schlüsselfertig erhältlich inklusive Parkett- und Feinsteinzeugböden sowie Sanitäreinrichtung mit Badewanne. Ein besonderes Extra ist die zusätzliche Freifläche als praktische Manipulationsfläche: ideal für Urban Gardening mit Hochbeeten, Kräutern oder Gemüse oder auch perfekt als Platz für Ordnung im Alltag, etwa für eine Fahrradbox, Reifenbox oder Gerätebox.  


Kaufpreis ohne Oberflächenpaket (ausgemalt): 237.900 €
Kaufpreis mit Oberflächenpaket: 252.900 €


Das Oberflächenpaket beinhaltet komplette Malerarbeiten, Fließen- und Plattenarbeiten (wie bspw. Feinsteinzeug 60 x 60 cm Ares Warm Beige) sowie Bautischlerarbeiten (wie bspw. Fertigparkett Eiche Landhausdiele), hochwertige Sanitärausstattung z.B. mit Villeroy und Boch für ein stimmiges, hochwertiges Wohngefühl.
Kontaktieren sie uns gerne für weitere Informationen zur Bau- und Ausstattung!

Betriebskosten: rd. € 254,-- / Monat inkl. Ust. inkl. Heizkosten
Rücklagen: rd. € 19,--/ Monat exkl. Ust.
Betriebskosten für 2 Stellplätze: rd. € 60,--/ Monat inkl. Ust. und Rücklagen


Jetzt unverbindlich informieren und Finanzierungsmöglichkeiten für Ihren Weg ins Eigenheim entdecken.


Disclaimer Visualisierungen / KI-bearbeitete Fotos:
Die dargestellten Schaubilder wurden teilweise digital bearbeitet bzw. mithilfe künstlicher Intelligenz visualisiert. Sie dienen ausschließlich der beispielhaften Darstellung von Einrichtungs- und Gestaltungsmöglichkeiten und stellen keinen verbindlichen Ausführungs- oder Lieferumfang dar. Maßgeblich für die tatsächliche Ausführung sind ausschließlich die vertraglichen Vereinbarungen, Bau- und Ausstattungsbeschreibungen sowie die genehmigten Pläne. Abweichungen in Ausstattung, Materialien, Farben, Möblierung oder Bepflanzung sind möglich.

Infrastruktur / Entfernungen

Gesundheit
Arzt <1.000m
Apotheke <1.500m
Klinik <1.250m

Kinder & Schulen
Schule <500m
Kindergarten <1.250m

Nahversorgung
Supermarkt <1.000m
Einkaufszentrum <2.750m
Bäckerei <1.000m

Sonstige
Bank <1.250m
Geldautomat <1.250m
Polizei <1.000m
Post <1.750m

Verkehr
Bus <500m
Autobahnanschluss <1.250m
Bahnhof <2.000m

Angaben Entfernung Luftlinie / Quelle: OpenStreetMap

Barrierefrei: JA
Provision:


Alle Details anzeigen

KONTAKT






 

Lasse dich kostenlos vom Anbieter dieser Immobilie zurückrufen.







 


 
Famosahaus Bauträger GmbH
Famosahaus Bauträger GmbH
Telefonnummer anzeigen Telefon Allgemein: +4318171807
 
Bitte dem Makler die FindMyHome.at - ID bekanntgeben: 5635777

Bewertungen dieses Anbieters
Netiquette

BEWERTUNGEN DIESES ANBIETERS

 
Netiquette
FINDMYHOME.AT
NETIQUETTE
Auch du kannst bewerten! 7 Tage nach deiner Anfrage erhältst du dafür von uns ein Bewertungsmail.
Alle Infos zu unseren Auszeichnungen und dem FINDMYHOME.AT Qualitätsprogramm findest du hier: Übersicht anzeigen

FINANZIERUNG
?>

Du willst wissen, wie viel dein Umzug kosten wird?

Mach gleich den kostenlosen Preisvergleich und schau, welche seriösen Anbieter in deiner Region günstig deinen Umzug organisieren


ZUM UMZUGS-VERGLEICH
-->

MYHOME BLOG
SuchAgentin auf FindMyHome.at
Unterschiedlichen Rechtsthemen, köstliche Rezepte, neueste Design-Highlights, sowie aktuelle Technik-Tools für Ihr Eigenheim.


FINDMYHOME.AT SUCHAGENTIN
SuchAgentin auf FindMyHome.at
Hallo, soll ich dir ähnliche Immobilien kostenfrei per E-Mail schicken?


Durch die Nutzung unserer Seite erklären Sie sich mit der Verwendung von Cookies zur Verbesserung Ihres Online-Erlebnisses einverstanden. Detaillierte Informationen zu diesem und weiteren Themen erhalten Sie in unserer Datenschutzerklärung.