MEIN ERGEBNIS ANPASSEN

NÄHE LAINZER TIERGARTEN: sanierungsbedürftige 2,5-Zimmer-Gartenwohnung mit 9 m² Loggia & 177 m² Garten - Objektnr. 5635540

1130
Ort
86,20 m²
Fläche
2.5
Zimmer

ECKDATEN
FindMyHome.at // Externe Immobilien-ID5635540 // 16210
ImmobilienartWohnung - Eigentum
AnschriftGhelengasse
1130 Wien
Baujahr1909
Stock1
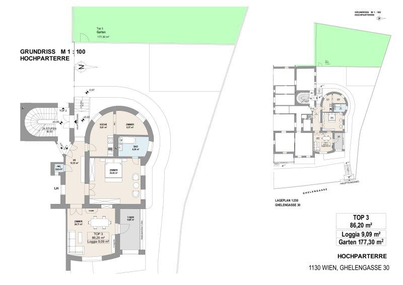
Fläche86,20 m²
Zimmer2.5
Bad1
WC1
Kaufpreis:€ 750.000,00
Ratenzahlung:Finanzierungsmöglichkeiten für diese Immobilie anzeigen
Provision: 3% des Kaufpreises zzgl. 20% USt.







BESCHREIBUNG

NÄHE LAINZER TIERGARTEN: sanierungsbedürftige 2,5-Zimmer-Gartenwohnung mit 9 m² Loggia & 177 m² Garten

NÄHE LAINZER TIERGARTEN:
Sanierungsbedürftige 2,5-Zimmer-Gartenwohnung mit 9m² Loggia & 177m² Garten

 

Diese hofseitig gelegene 2,5-Zimmerwohnung in der Ghelengasse bietet Ruhe, Sonne und viel Gestaltungspotenzial ideal für alle, die eine sanierungsbedürftige Wohnung nach eigenen Vorstellungen in eine traumhafte Gartenwohnung verwandeln möchten.

Die Wohnung befindet sich im Hochparterre eines gepflegten, familiären Hauses und bietet auf 86,20m² Wohnfläche plus einer 9,09m² großen Loggia eine Gesamtnutzfläche von rund 95,29m². Die Loggia ist nach Norden und Osten ausgerichtet, der zusätzliche private Garten mit 177m² befindet sich direkt gegenüber vom Hauseingang.

Zustand & Sanierungsbedarf:
Die Wohnung befindet sich in einem insgesamt sanierungsbedürftigen Zustand. Ein Großteil der Bodenbeläge ist erneuerungs- bzw. sanierungsbedürftig. Badezimmer und WC entsprechen nicht mehr dem heutigen Standard und sollten modernisiert werden. Sämtliche Wandflächen sind zu überarbeiten (Malerarbeiten sowie teilweise Spachtelarbeiten erforderlich). Die bestehenden Türen können je nach Anspruch und Geschmack adaptiert oder getauscht werden.

Das Stiegenhaus und die Fassade wurden 2024 vom Verkäufer aufwendig saniert und präsentieren sich in neuem Glanz. Im modernisierten Keller stehen ein Fahrradraum sowie Kellerabteile für jede Wohnung zur Verfügung.

 

Highlights der Wohnung
177m² private Gartenfläche ein Paradies mitten in der Stadt

Hofruhelage jedes Zimmer blickt ins Grüne

Altbaucharme mit Potenzial hohe Räume, Flügeltüren & Fischgrätparkett als Basis für stilvolle Sanierung

Loggia (ca. 9,09m²) Erweiterung des Wohnraums mit Grünblick

Separate Küche mit Fenster

Badezimmer mit Fenster, Wanne, Waschmaschinenanschluss & Gastherme (Sanierung empfohlen)

 

Lage Natur und Stadt perfekt vereint
Ruhig und grün, aber mit perfekter Anbindung:
Der Bus vor der Haustür bringt Sie in nur ca. 13 Minuten zur U4. In unmittelbarer Umgebung laden der Rote Berg mit Spielplatz und Outdoor-Fitness-Park, der Lainzer Tiergarten mit der Hermesvilla sowie der Hohenauer Teich zu Spaziergängen und Erholung ein.

Hier genießen Sie das Beste aus beiden Welten:
Natur pur und städtische Lebensqualität mit bester Infrastruktur.

 

Ein wunderbarer Ort zum Leben mit viel Potenzial für Ihre persönliche Gestaltung.

 

Öffentliche Verkehrsanbindung:

  • U-Bahnlinie: U4 "Ober St. Veit" (ca. 13 Min. mit dem Bus entfernt oder 12 Min. mit dem Fahrrad)
  • Buslinie: 54A, 54B "Stock im Weg" direkt gegenüber

 

Nebenkosten:

Grundbucheintragung: 1,1% des Kaufpreises

Grunderwerbssteuer: 3,5% des Kaufpreises

Maklerprovision: 3% des Kaufpreises + 20% USt.

Kaufvertragshonorar: 1,2% des Kaufpreises zzgl. USt und Barauslagen I Kaufvertragserstellung erfolgt durch die Kanzlei Tiefenthaler & Gnesda Rechtsanwälte

 

Maklervereinbarung: Wir ersuchen um Verständnis, dass wir bei Anfragen zur Objektadresse, bzw. Besichtigungstermin aufgrund neuer gesetzlicher Bestimmungen Unterlagen erst dann zusenden können, wenn Sie vorab bestätigen, dass Sie unser sofortiges Tätigwerden wünschen und über Ihre Rücktrittsrechte aufgeklärt wurden. Sie bekommen nach Ihrer schriftlichen Anfrage mit vollständiger Angabe des Namens, Anschrift und Telefonnummer ein Email, in dem Sie diese Punkte bestätigen müssen.

 

Haftungsausschluss: Wir weisen darauf hin, dass sämtliche Daten im vorliegenden Angebot sowie die von unserem Büro an Sie weitergegebenen Auskünfte, vom Eigentümer der Immobilie zur Verfügung gestellt wurden. Ebenso sind Informationen von Dritten (z.B. behördliche Informationen) eingeholt worden, auch für diese können wir unsererseits keinerlei Haftung für deren uneingeschränkte Richtigkeit übernehmen.

Wir weisen darauf hin, dass zwischen dem Vermittler und dem zu vermittelnden Dritten ein familiäres oder wirtschaftliches Naheverhältnis besteht.

Der Vermittler ist als Doppelmakler tätig.


Infrastruktur / Entfernungen

Gesundheit
Arzt <500m
Apotheke <750m
Klinik <1.250m
Krankenhaus <1.750m

Kinder & Schulen
Schule <1.250m
Kindergarten <1.000m
Universität <750m
Höhere Schule <5.500m

Nahversorgung
Supermarkt <1.000m
Bäckerei <1.250m
Einkaufszentrum <4.500m

Sonstige
Geldautomat <1.250m
Bank <1.250m
Post <1.250m
Polizei <1.750m

Verkehr
Bus <250m
U-Bahn <1.750m
Straßenbahn <1.250m
Bahnhof <2.000m
Autobahnanschluss <4.000m

Angaben Entfernung Luftlinie / Quelle: OpenStreetMap

Gartennutzung: JA
Kabel/SAT/TV: JA
Provision: 3% des Kaufpreises zzgl. 20% USt.


Alle Details anzeigen

KONTAKT






 

Lasse dich kostenlos vom Anbieter dieser Immobilie zurückrufen.







 


 
Moritz Immobilien
Anita Ochsenhofer
Telefonnummer anzeigen Telefon Allgemein: +4319971693
Handy Bearbeiter: +436607413324
 
Bitte dem Makler die FindMyHome.at - ID bekanntgeben: 5635540

Bewertungen dieses Anbieters
Netiquette
Freundlichkeit
100 %

BEWERTUNGEN DIESES ANBIETERS

 
Weiterempfehlung
WIRD SEHR GERNE

Freundlichkeit
BESONDERS
FREUNDLICH
Netiquette
FINDMYHOME
NETIQUETTE
Auch du kannst bewerten! 7 Tage nach deiner Anfrage erhältst du dafür von uns ein Bewertungsmail.
Alle Infos zu unseren Auszeichnungen und dem FINDMYHOME.AT Qualitätsprogramm findest du hier: Übersicht anzeigen

FINANZIERUNG
?>

Du willst wissen, wie viel dein Umzug kosten wird?

Mach gleich den kostenlosen Preisvergleich und schau, welche seriösen Anbieter in deiner Region günstig deinen Umzug organisieren


ZUM UMZUGS-VERGLEICH
-->

MYHOME BLOG
SuchAgentin auf FindMyHome.at
Unterschiedlichen Rechtsthemen, köstliche Rezepte, neueste Design-Highlights, sowie aktuelle Technik-Tools für Ihr Eigenheim.


FINDMYHOME.AT SUCHAGENTIN
SuchAgentin auf FindMyHome.at
Hallo, soll ich dir ähnliche Immobilien kostenfrei per E-Mail schicken?


ÄHNLICHE IMMOBILIEN
Aehnliche Immobilie - Vorschaubild 1

STOCK IM WEG - Elegante Familienwohnung mit Loggia und idyll... - Objektnr. 4703877

90,66 m² - 4 Zimmer
779000 €
PLZ: 1130

Mehr anzeigen

Aehnliche Immobilie - Vorschaubild 2

Dachgeschoß-Highlight mit allem Komfort in begehrter Hietzin... - Objektnr. 5633195

92,30 m² - 3 Zimmer
790000 €
PLZ: 1130

Mehr anzeigen

Aehnliche Immobilie - Vorschaubild 3

| WÄRMEPUMPE | TOPSANIERT | 13. BEZIRK - Objektnr. 5593460


95,92 m² - 3.0 Zimmer
638000 €
PLZ: 1130

Mehr anzeigen

Durch die Nutzung unserer Seite erklären Sie sich mit der Verwendung von Cookies zur Verbesserung Ihres Online-Erlebnisses einverstanden. Detaillierte Informationen zu diesem und weiteren Themen erhalten Sie in unserer Datenschutzerklärung.