MEIN ERGEBNIS ANPASSEN

PROVISIONSFREI - DOPPELHAUSHÄLFTE - NIEDRIGENERGIEHAUS - Objektnr. 5634837

7472
Ort
106,00 m²
Fläche
4.0
Zimmer

ECKDATEN
FindMyHome.at // Externe Immobilien-ID5634837 // 5324/3190
ImmobilienartHaus - Eigentum
Anschrift7472 Schandorf
Baujahr2023
Fläche106,00 m²
Grundfläche460,00 m²
Terrassen1 (15,00 m²)
Zimmer4.0
Bad1
WC1
Kaufpreis:€ 317.900,00
Ratenzahlung:Finanzierungsmöglichkeiten für diese Immobilie anzeigen
Provision:







BESCHREIBUNG

PROVISIONSFREI - DOPPELHAUSHÄLFTE - NIEDRIGENERGIEHAUS

NIEDRIGENERGIEHAUS * DOPPELHAUSHÄLFTE * BELAGSFERTIG oder SCHLÜSSELFERTIG

SCHANDORF - Haberkorn Immobilien darf hier eine DOPPELHAUSHÄLFTE in Niedrigenergiebauweise auf ca. 460 m² Grund in Ortsrandlage anbieten.

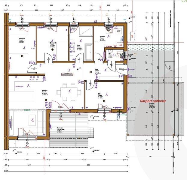
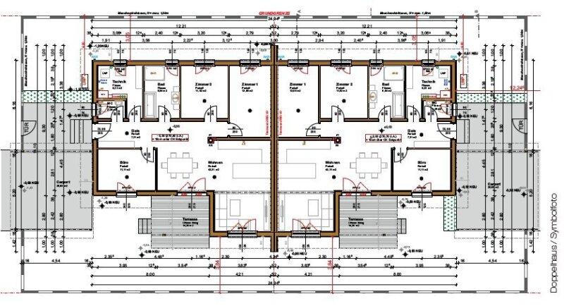
Geboten wird ein sehr gut durchdachtes, final geplantes Doppelhaus - die Haushälfte ist eingeschoßig und gliedert sich in Diele, offener Wohn-Essbereich, 3 Zimmer, Badezimmer, WC extra und einen großzügigen Technikraum.

Angrenzend an Wohnzimmer und Essplatz erstreckt sich eine ca. 15 m² große Terrasse.

Ausgestattet ist dieses Niedrigenergiehaus mit Holz-Alu-Fenstern, Parkettböden, Zellulosedämmung, Zentralheizung mittels Luftwärmepumpe kombiniert mit Fußbodenheizung und bietet damit sehr hohes Niveau zu einem sehr guten Preis!

Optional erhältlich sind ein Doppel-Carport bzw. eine PV-Anlage mit ca. 6 kWp Peak.

Die Doppelhaushälfte steht in 2 Varianten, jeweils inkl. Grundstück und Fundamentplatte, zur Verfügung:

Ausbaustufe Belagsfertig: EUR 317.900,-

Ausbaustufe Schlüsselfertig: EUR 359.900,-

Die ökologische, moderne und hoch effiziente Bauweise und die hohe Landesförderung (€ 82.000,-- zB. für die Variante schlüsselfertig) bzw., mögliche Zuschüsse seitens der Gemeinde (bis zu € 2.000,-), machen diese Doppelhaushälfte durchaus attraktiv!

 

  • Grün-Ruhelage am Ortsrand
  • Wohnfläche ca. 106 m²
  • Zentralheizung / Luftwärmepumpe / Fußbodenheizung
  • Holz/Alu-Fenster
  • Zellulosedämmung
  • Parkett
  • Terrasse
  • Option Doppel-Carport
  • Option PV-Anlage

 

Lage

Schandorf, kroatisch emba, ungarisch Csém, ist eine zweisprachige Gemeinde im Bezirk Oberwart im Burgenland. Sie erstreckt sich über ca. 11 km² und weist ca. 280 Einwohner auf. Die Bezirkshauptstadt ist ca. 20 km entfernt.

Die Gemeinde Schandorf ist stetig bestrebt, für alle Generationen etwas anzubieten, damit sich die Menschen im Ort wohlfühlen. Im Ort gibt es ein Kaffee- und ein Gasthaus sowie einen Greissler-Wagen mit den wichtigsten Lebensmitteln. In Schandorf wurde 2023 das erste dreisprachige (deutsch, kroatisch und ungarisch) Pflegeheim Burgenlands eröffnet.

Ein reges Vereinsleben (Feuerwehr, Tamburizza, Kinderfreunde, Traktor-Club, Pensionistenverein und Kulturverein) sorgt dafür, dass Sie im Ort rasch Anschluss bzw. neue Freunde finden können. Für Kindergarten- und Schulkinder wurde ein Shuttle-Service eingerichtet. So kommen Ihre Kinder sicher in den Kindergarten bzw. in die Schule und wieder gut nach Hause.

Geschichte

Das Gebiet um Schandorf war schon in der alten Eisenzeit besiedelt und dürfte der Mittelpunkt des gesamten Gebietes gewesen sein. Im Schandorfer Wald befinden sich 170 Hügelgräber, die bis zu 16 Meter hoch sind und einen Durchmesser bis zu 40 Meter aufweisen. Die Gräber stammen aus der Hallstattzeit.

Urkundlich wurde die Dorfgemeinde im Jahre 1244 erstmals als villa Chem genannt, als der ungarische König Béla IV. den Herren von Csém/Schandorf die alte Burg Óvár zur Neuerrichtung übergab. Damals war Schandorf ein deutsch besiedeltes Bauerndorf, das zur ungarischen Grenzwächter- und Schützensiedlung des Gyepsystems gehörte.

Nachdem im 15. Jahrhundert das Schicksal Schandorfs eng mit der Herrschaft Schlaining unter Andreas Baumkircher verbunden war, kam der Ort 1537 in den Besitz der Grafen Batthyány, die das durch die Türkenkriege verödete und entvölkerte Dorf 1543 mit kroatischen Bauern neu besiedelten.

Das Gemeindesiegel von 1872 zeigt eine aufgestellte Getreidegarbe mit davor überkreuzten Getreiderechen mit Sense und trägt die ungarische Aufschrift Csémi Község (Gemeinde Schandorf). Seit 1898 musste aufgrund der Magyarisierungspolitik der Regierung in Budapest der ungarische Ortsname Csém verwendet werden.

Nach dem Anschluss des Burgenlandes an Österreich im Jahre 1921 kam Schandorf erst am 10. Jänner 1923 als eines der letzten rückgegliederten Dörfer zu Österreich.

Aufgrund des Gemeindestrukturverbesserungsgesetzes wurde Schandorf mit 1. Jänner 1971 gemeinsam mit Dürnbach und Schachendorf zur Großgemeinde Schachendorf vereint. Seit 1995 ist Schandorf wieder eine eigene Gemeinde.

 

Grenzübergang SchandorfNarda

Seit 1. Juni 2007 besitzt die Gemeinde Schandorf einen Grenzübergang zu Ungarn, der ausschließlich zu Fuß, mit dem Fahrrad oder mit dem Pferd benutzt werden darf. Von diesem Grenzübergang gelangt man direkt in die ungarische Nachbargemeinde Narda.

 

Sonstiges

Die Liegenschaft kann nach Fertigstellung und Treuhandabwicklung sofort übernommen werden.

Rechtliche Info

Als Immobilienmakler sind wir einerseits Ihnen als Interessent, als auch dem Abgeber als Verkäufer bzw. Vermieter verpflichtet. Wir sind einerseits gegenüber dem Abgeber, als auch gegenüber Behörden verpflichtet bei Ungereimtheiten Auskunft geben zu können, an welche Personen Immobilien angeboten wurden.

Auch die europäischen Verbraucherrechte wurden vereinheitlicht, somit wird seit 13. Juni 2014 ebenso mit Ihnen als Interessent ein schriftlicher Maklervertrag abgeschlossen (früher geschah dies mündlich & es entfällt das Ausfüllen von "Besichtigungsscheinen"). Der Verband der Österreichischen Immobilienwirtschaft hat hierzu ebenso eine detaillierte Informationsseite

 

Wir benötigen daher, um Ihnen detaillierte Unterlagen zukommen zu lassen, Ihren Namen und Ihre Wohnadresse (Straße, Hausnummer - wenn vorhanden: Stiege & Tür - PLZ und Ort).

Der Makler steht mit dem zu vermittelnden Dritten in einem familiären oder wirtschaftlichen Naheverhältnis.

 

Haben Sie eine Immobilie zu verkaufen oder zu vermieten

Wir freuen uns, diese unseren vorgemerkten Kundinnen und Kunden präsentieren zu dürfen bzw. Sie bei der Vermarktung Ihrer Liegenschaft zu unterstützen!

Bitte kontaktieren Sie mich gerne unter: +43 664 137 97 87  oder für eine kostenfreie und umfassende Erstberatung!

Besuchen Sie uns auch gerne auf der Website von Haberkorn Immobilien GmbH

Wir weisen darauf hin, dass zwischen dem Vermittler und dem zu vermittelnden Dritten ein familiäres oder wirtschaftliches Naheverhältnis besteht.

Der Vermittler ist als Doppelmakler tätig.


Infrastruktur / Entfernungen

Gesundheit
Arzt <7.500m
Apotheke <7.500m

Kinder & Schulen
Kindergarten <3.000m
Schule <4.000m

Nahversorgung
Supermarkt <3.000m
Bäckerei <3.500m

Sonstige
Bank <7.500m
Post <3.500m
Geldautomat <7.500m
Polizei <7.500m

Verkehr
Bus <500m
Bahnhof <3.000m

Angaben Entfernung Luftlinie / Quelle: OpenStreetMap

Barrierefrei: JA
Provision:


Alle Details anzeigen

KONTAKT






 

Lasse dich kostenlos vom Anbieter dieser Immobilie zurückrufen.







 


 
Haberkorn Immobilien
Manuela Hohenschläger
Telefonnummer anzeigen Telefon Allgemein: +436641379787
 
Bitte dem Makler die FindMyHome.at - ID bekanntgeben: 5634837

Bewertungen dieses Anbieters
Qualitätsmakler
Qualitätsmakler:
2025,
Netiquette
Freundlichkeit
Antwortszeit
87 %

BEWERTUNGEN DIESES ANBIETERS

 
Qualit�tsmakler
Qualitätsmakler
2025
Antwortzeit
ø 24h ANTWORT
Weiterempfehlung
WIRD SEHR GERNE

Freundlichkeit
BESONDERS
FREUNDLICH
Netiquette
FINDMYHOME
NETIQUETTE
Auch du kannst bewerten! 7 Tage nach deiner Anfrage erhältst du dafür von uns ein Bewertungsmail.
Alle Infos zu unseren Auszeichnungen und dem FINDMYHOME.AT Qualitätsprogramm findest du hier: Übersicht anzeigen

FINANZIERUNG
?>

Du willst wissen, wie viel dein Umzug kosten wird?

Mach gleich den kostenlosen Preisvergleich und schau, welche seriösen Anbieter in deiner Region günstig deinen Umzug organisieren


ZUM UMZUGS-VERGLEICH
-->

MYHOME BLOG
SuchAgentin auf FindMyHome.at
Unterschiedlichen Rechtsthemen, köstliche Rezepte, neueste Design-Highlights, sowie aktuelle Technik-Tools für Ihr Eigenheim.


FINDMYHOME.AT SUCHAGENTIN
SuchAgentin auf FindMyHome.at
Hallo, soll ich dir ähnliche Immobilien kostenfrei per E-Mail schicken?


ÄHNLICHE IMMOBILIEN
Aehnliche Immobilie - Vorschaubild 1

PROVISIONSFREI - DOPPELHAUSHÄLFTE - NIEDRIGENERGIEHAUS... - Objektnr. 5634841

106,00 m² - 4.0 Zimmer
359000 €
PLZ: 7472

Mehr anzeigen

Durch die Nutzung unserer Seite erklären Sie sich mit der Verwendung von Cookies zur Verbesserung Ihres Online-Erlebnisses einverstanden. Detaillierte Informationen zu diesem und weiteren Themen erhalten Sie in unserer Datenschutzerklärung.