MEIN ERGEBNIS ANPASSEN

Neubau Serviced Apartments nahe Siemens City - Objektnr. 5634640

1210
Ort
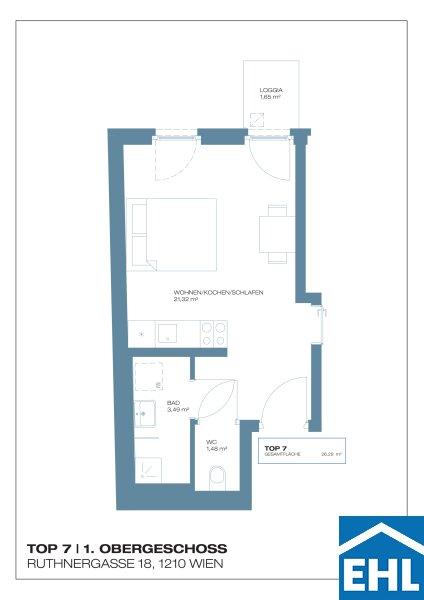
49,29 m²
Fläche
2.0
Zimmer
WEITERE MEDIEN

ECKDATEN
FindMyHome.at // Externe Immobilien-ID5634640 // 95358
ImmobilienartAnlage-Vorsorgewohnung - Eigentum
AnschriftRuthnergasse
1210 Wien
Stock1
Geschosse6
Fläche49,29 m²
Zimmer2.0
Bad2
WC2
Kaufpreis:€ 481.200,00
Ratenzahlung:Finanzierungsmöglichkeiten für diese Immobilie anzeigen
Provision: Provision bezahlt der Abgeber.







BESCHREIBUNG

Neubau Serviced Apartments nahe Siemens City

Serviced Apartments. Investieren. Zukunft sichern.

In der Ruthnergasse 18 in Wien-Floridsdorf entsteht ein modernes Neubauprojekt, das urbanes Wohnen, nachhaltige Bauweise und attraktive Investmentchancen vereint. Das Projekt verbindet zeitgemäße Architektur mit effizienter Energietechnik und schafft damit eine zukunftssichere Anlageform in einer gefragten Wiener Wohnlage.

Das Gebäude umfasst 38 moderne Serviced Apartments, die schlüsselfertig ausgeführt werden und überwiegend über attraktive Freiflächen wie Balkon, Loggia oder Terrasse verfügen. Durch die Kombination aus effizienter Grundrissgestaltung, moderner Ausstattung und nachhaltiger Gebäudetechnik entsteht ein Investment mit langfristigem Potenzial.

Das digitale Betriebskonzept ermöglicht einen Check-in der Kunden über Terminals vor Ort und en 24/7 erreichbares Servicecenter gewährleistet eine rundum Betreuung. 

Das Projekt - Investment mit Zukunft

  • 38 Serviced Apartments mit durchdachten Grundrissen
  • Großteils mit Balkon, Loggia oder Terrasse ausgestattet
  • Nachhaltige Energieversorgung durch Luftwärmepumpe und Photovoltaikanlage
  • Fußbodenheizung mit zusätzlicher Kühlfunktion in den Regelgeschossen
  • Klimaanlagen in den Dachgeschossen für optimalen Wohnkomfort
  • Moderne 3-fach verglaste Kunststofffenster für hohe Energieeffizienz
  • Liftanlage, begrünter Innenhof und attraktive Allgemeinflächen

Hochwertige Ausstattung mit Komfort

Die Apartments überzeugen durch eine moderne Ausstattung und eine langlebige Bauqualität.

  • Vinylböden in Holzoptik in Wohn- und Schlafräumen
  • Großformatige Fliesen (60×60 bzw. 30×60) in Bad und WC
  • Bodenebene Duschen mit Glasabtrennung
  • Marken-Sanitärausstattung (u. a. Laufen, Hansgrohe)
  • Sicherheitseingangstüren mit einbruchhemmender Ausführung
  • Fußbodenheizung mit Einzelraumregelung
  • Video-Gegensprechanlage und moderne Elektroausstattung
  • Beschattungssysteme und hochwertige Fensterlösungen
  • Begrünter Innenhof und moderne Außenanlagen

 

Die Kombination aus moderner Gebäudetechnik, energieeffizienter Bauweise und funktionalen Grundrissen sorgt für geringe Betriebs- und Energiekosten und macht das Projekt zu einer langfristig attraktiven Anlage.

Perfekte Lage in Floridsdorf

Die Ruthnergasse im 21. Wiener Gemeindebezirk verbindet ruhiges Wohnen mit guter Infrastruktur. Die S-Bahn-Station Wien Siemensstraße sowie der Verkehrsknoten Floridsdorf mit U6 und S-Bahn sorgen für eine schnelle Anbindung in die Wiener Innenstadt. Einkaufsmöglichkeiten, Gastronomie und Freizeitangebote befinden sich im direkten Umfeld, während nahegelegene Grünflächen zusätzliche Erholungsmöglichkeiten bieten. Dadurch entsteht eine attraktive Wohnlage mit hoher Lebensqualität und nachhaltigem Vermietungspotenzial.

Kaufpreise der Vorsorgewohnungen

von EUR 270.000, - bis EUR 712.800, - netto zzgl. 20% USt.

Zu erwartender Mietrendite p.a.

3,6% - 3,8% 

Provisionsfrei für den Käufer!
Fertigstellung: voraussichtlich Q1/2028

 

Bei diesem Angebot handelt es sich um eine Vorsorgewohnung, die zu Vermietungszwecken erworben wird. Der angegebene Kaufpreis versteht sich daher zzgl. 20% USt. Diese Daten sind vorbehaltlich möglicher Änderungen.

Wir weisen darauf hin, dass zwischen dem Vermittler und dem zu vermittelnden Dritten ein familiäres oder wirtschaftliches Naheverhältnis besteht.

Der Vermittler ist als Doppelmakler tätig.


Infrastruktur / Entfernungen

Gesundheit
Arzt <750m
Apotheke <1.000m
Klinik <1.000m
Krankenhaus <1.000m

Kinder & Schulen
Schule <1.000m
Kindergarten <750m
Universität <2.250m
Höhere Schule <2.250m

Nahversorgung
Supermarkt <500m
Bäckerei <750m
Einkaufszentrum <1.000m

Sonstige
Geldautomat <1.000m
Bank <1.000m
Post <1.000m
Polizei <1.000m

Verkehr
Bus <500m
U-Bahn <1.750m
Straßenbahn <1.000m
Bahnhof <500m
Autobahnanschluss <1.500m

Angaben Entfernung Luftlinie / Quelle: OpenStreetMap

Klimaanlage: JA
Provision: Provision bezahlt der Abgeber.


Alle Details anzeigen

KONTAKT






 

Lasse dich kostenlos vom Anbieter dieser Immobilie zurückrufen.







 


 
EHL Wohnen GmbH
Andrea PÖCHHACKER; MSc
Telefonnummer anzeigen Telefon Allgemein: +4315127690411
Handy Bearbeiter: +436648373481
 
Bitte dem Makler die FindMyHome.at - ID bekanntgeben: 5634640

Bewertungen dieses Anbieters
Qualitätsmakler
Qualitätsmakler:
Netiquette
Freundlichkeit
82 %

BEWERTUNGEN DIESES ANBIETERS

 
Qualitätsmakler
UNSERE HALL OF FAME DER BESTEN ANBIETER
Qualit�tsmakler
Qualitätsmakler
2012, 2013, 2014, 2015, 2016, 2017, 2018, 2019, 2020, 2021, 22/23, 2024, 2025
Weiterempfehlung
WIRD GERNE

Freundlichkeit
BESONDERS
FREUNDLICH
Netiquette
FINDMYHOME
NETIQUETTE
Auch du kannst bewerten! 7 Tage nach deiner Anfrage erhältst du dafür von uns ein Bewertungsmail.
Alle Infos zu unseren Auszeichnungen und dem FINDMYHOME.AT Qualitätsprogramm findest du hier: Übersicht anzeigen

FINANZIERUNG
?>

Du willst wissen, wie viel dein Umzug kosten wird?

Mach gleich den kostenlosen Preisvergleich und schau, welche seriösen Anbieter in deiner Region günstig deinen Umzug organisieren


ZUM UMZUGS-VERGLEICH
-->

MYHOME BLOG
SuchAgentin auf FindMyHome.at
Unterschiedlichen Rechtsthemen, köstliche Rezepte, neueste Design-Highlights, sowie aktuelle Technik-Tools für Ihr Eigenheim.


FINDMYHOME.AT SUCHAGENTIN
SuchAgentin auf FindMyHome.at
Hallo, soll ich dir ähnliche Immobilien kostenfrei per E-Mail schicken?


ÄHNLICHE IMMOBILIEN
Aehnliche Immobilie - Vorschaubild 1

Serviced Apartments als Kapitalanlage - Ruthnergasse 18... - Objektnr. 5634614

51,86 m² - 3.0 Zimmer
536400 €
PLZ: 1210

Mehr anzeigen

Aehnliche Immobilie - Vorschaubild 2

Langfristig verpachtetes Serviced-Apartment-Projekt nahe Sie... - Objektnr. 5634625

49,29 m² - 2.0 Zimmer
483600 €
PLZ: 1210

Mehr anzeigen

Aehnliche Immobilie - Vorschaubild 3

Serviced Apartments als Kapitalanlage - Ruthnergasse 18... - Objektnr. 5634630

49,29 m² - 2.0 Zimmer
477600 €
PLZ: 1210

Mehr anzeigen

Durch die Nutzung unserer Seite erklären Sie sich mit der Verwendung von Cookies zur Verbesserung Ihres Online-Erlebnisses einverstanden. Detaillierte Informationen zu diesem und weiteren Themen erhalten Sie in unserer Datenschutzerklärung.