MEIN ERGEBNIS ANPASSEN

Wohnung mit gutem Grundriss Nähe Prater! - Objektnr. 5633875

1020
Ort
54,42 m²
Fläche
2.0
Zimmer

ECKDATEN
FindMyHome.at // Externe Immobilien-ID5633875 // 29534
ImmobilienartWohnung - Eigentum
AnschriftVorgartenstraße
1020 Wien
Baujahr1956
Stock1
Geschosse7
Fläche54,42 m²
Zimmer2.0
Bad1
WC1
Kaufpreis:€ 250.000,00
Ratenzahlung:Finanzierungsmöglichkeiten für diese Immobilie anzeigen
Provision:







BESCHREIBUNG

Wohnung mit gutem Grundriss Nähe Prater!

Die Liegenschaft wurde 1956 errichtet und befindet sich in einem guten Erhaltungszustand.
Im Zuge der Wohnungseigentumsbegründung kommen nun insgesamt 7 Wohnungen in die Vermarktung.

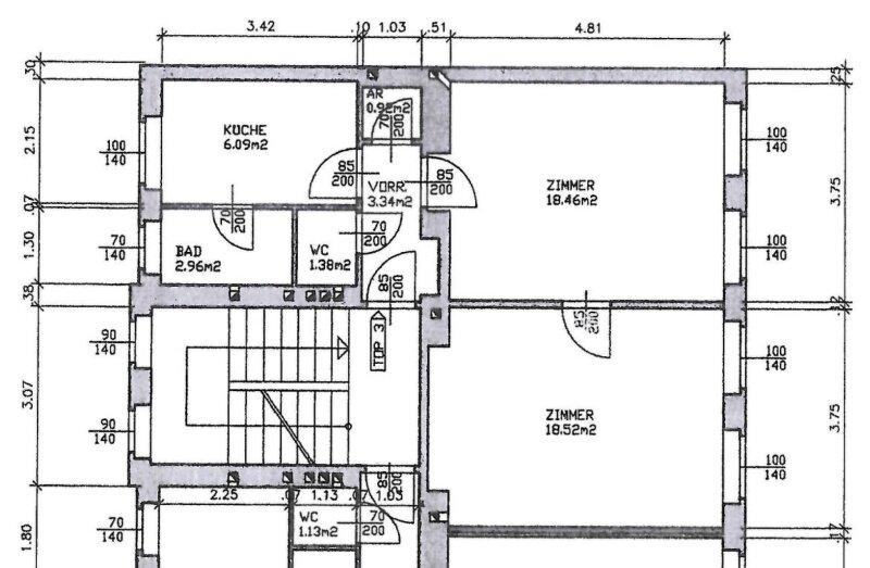
Die Wohnung, Top 3, im 1.Stock gelegen, befindet sich in einem guten, bezugsfähigen Zustand.
Diese Einheit verfügt über einen guten Grundriss (2 geräumige Zimmer, Küche, ) und hat eine Wohnfläche von ca. 54 m2.


Gerne übermitteln wir Ihnen auf Anfrage weiterführende Unterlagen und stehen für eine Besichtigung zu Ihrer Verfügung!

 

Dieses Objekt wird Ihnen unverbindlich und freibleibend zum Kauf angeboten.
Oben angeführte Angaben basieren auf Informationen und Unterlagen des Eigentümers und sind unsererseits ohne Gewähr.

Es besteht ein wirtschaftliches Naheverhältnis zum Verkäufer.
Wir weisen darauf hin, dass wir als Doppelmakler tätig sind.

Nebenkosten

Der guten Ordnung halber halten wir fest, dass, sofern im Angebot nicht anders vermerkt, bei erfolgreichem Abschlussfall eine Provision anfällt, die den in der Immobilienmaklerverordnung BGBI. 262 und 297/1996 festgelegten Sätzen entspricht das sind 3 % des Kaufpreises zzgl. 20 % USt. Diese Provisionspflicht besteht auch dann, wenn Sie die Ihnen überlassenen Informationen an Dritte weitergeben.
Die Vertragserrichtung und Treuhandabwicklung ist gebunden an Rechtsanwalt Mag. Leopold Gnesda, A-1010 Wien, Rockhgasse 6/Top 6. Die Kosten betragen 1,5% des Kaufpreises zzgl. 20 % USt., Barauslagen und Beglaubigung.

Wir weisen darauf hin, dass zwischen dem Vermittler und dem zu vermittelnden Dritten ein familiäres oder wirtschaftliches Naheverhältnis besteht.

Der Vermittler ist als Doppelmakler tätig.


Infrastruktur / Entfernungen

Gesundheit
Arzt <250m
Apotheke <250m
Klinik <1.000m
Krankenhaus <2.000m

Kinder & Schulen
Schule <500m
Kindergarten <250m
Universität <500m
Höhere Schule <2.500m

Nahversorgung
Supermarkt <250m
Bäckerei <500m
Einkaufszentrum <1.500m

Sonstige
Geldautomat <500m
Bank <500m
Post <250m
Polizei <500m

Verkehr
Bus <250m
U-Bahn <250m
Straßenbahn <250m
Bahnhof <250m
Autobahnanschluss <1.250m

Angaben Entfernung Luftlinie / Quelle: OpenStreetMap

Provision:


Alle Details anzeigen

KONTAKT






 

Lasse dich kostenlos vom Anbieter dieser Immobilie zurückrufen.







 


 
WINEGG Makler GmbH
Christoph Kral
Telefonnummer anzeigen Telefon Allgemein: +4313157280
Handy Bearbeiter: +436766461289
 
Bitte dem Makler die FindMyHome.at - ID bekanntgeben: 5633875

Bewertungen dieses Anbieters
Qualitätsmakler
Qualitätsmakler:
2015, 2017, 2025,
Netiquette
Freundlichkeit
83 %

BEWERTUNGEN DIESES ANBIETERS

 
Qualit�tsmakler
Qualitätsmakler
2015, 2017, 2025
Weiterempfehlung
WIRD GERNE

Freundlichkeit
BESONDERS
FREUNDLICH
Netiquette
FINDMYHOME
NETIQUETTE
Auch du kannst bewerten! 7 Tage nach deiner Anfrage erhältst du dafür von uns ein Bewertungsmail.
Alle Infos zu unseren Auszeichnungen und dem FINDMYHOME.AT Qualitätsprogramm findest du hier: Übersicht anzeigen

FINANZIERUNG
?>

Du willst wissen, wie viel dein Umzug kosten wird?

Mach gleich den kostenlosen Preisvergleich und schau, welche seriösen Anbieter in deiner Region günstig deinen Umzug organisieren


ZUM UMZUGS-VERGLEICH
-->

MYHOME BLOG
SuchAgentin auf FindMyHome.at
Unterschiedlichen Rechtsthemen, köstliche Rezepte, neueste Design-Highlights, sowie aktuelle Technik-Tools für Ihr Eigenheim.


FINDMYHOME.AT SUCHAGENTIN
SuchAgentin auf FindMyHome.at
Hallo, soll ich dir ähnliche Immobilien kostenfrei per E-Mail schicken?


ÄHNLICHE IMMOBILIEN
Aehnliche Immobilie - Vorschaubild 1

Helle 2-Zimmer-Wohnung nähe U2 Messer Prater in Ruhelage... - Objektnr. 5633413

53,00 m² - 2.0 Zimmer
289000 €
PLZ: 1020

Mehr anzeigen

Aehnliche Immobilie - Vorschaubild 2

*Single- oder Pärchenhit inkl. Küche in Top-Lage beim Augart... - Objektnr. 5619057

48,17 m² - 2.0 Zimmer
219500 €
PLZ: 1020

Mehr anzeigen

Aehnliche Immobilie - Vorschaubild 3

Altbauwohnung Nähe Prater und Donaukanal - Objektnr. 5633834


64,83 m² - 3.0 Zimmer
299000 €
PLZ: 1020

Mehr anzeigen

Durch die Nutzung unserer Seite erklären Sie sich mit der Verwendung von Cookies zur Verbesserung Ihres Online-Erlebnisses einverstanden. Detaillierte Informationen zu diesem und weiteren Themen erhalten Sie in unserer Datenschutzerklärung.