MEIN ERGEBNIS ANPASSEN

Exklusive Villa in Ruhelage - Baujahr 2016 - Objektnr. 5633126

1140
Ort
465,00 m²
Fläche
8.5
Zimmer

ECKDATEN
FindMyHome.at // Externe Immobilien-ID5633126 // 1096/19918
ImmobilienartHaus - Eigentum
Anschrift1140 Wien
Baujahr2016
Geschosse4
Fläche465,00 m²
Grundfläche1.007,00 m²
Terrassen3 (132,00 m²)
Zimmer8.5
Bad4
WC6
Kaufpreis:€ 3.750.000,00
Ratenzahlung:Finanzierungsmöglichkeiten für diese Immobilie anzeigen
Provision: 3% des Kaufpreises zzgl. 20% USt.







BESCHREIBUNG

Exklusive Villa in Ruhelage - Baujahr 2016

Exklusive Villa in hochwertiger Massivholzbauweise

Die 2016 von Venture Property Holding GmbH fertiggestellte, unterkellerte Villa vereint moderne Architektur mit luxuriöser Ausstattung und innovativer Gebäudetechnik. Ein Glas-Personenaufzug erschließt alle Ebenen, ein intelligentes BUS-System steuert zentral sämtliche Haustechnikfunktionen.

Fußbodenheizung im gesamten Haus, Kaminofen im Wohnbereich sowie maßgefertigte Tischlereinbauten und zwei hochwertig ausgestattete Küchen mit Geräten von Miele unterstreichen den exklusiven Wohnanspruch.

Ein nachhaltiges Energiekonzept mit Luftwärmepumpe und dachintegrierter Photovoltaikanlage gewährleistet effiziente Betriebskosten auf zeitgemäßem Niveau.

Raumaufteilung

Eingangsebene

  • Großzügiger Vorraum
  • Abstellraum
  • Separates Gäste-WC
  • Eigener Stiegenaufgang zur Einliegerwohnung
  • Wohn- und Essbereich mit ca. 81 m² WNF
  • Direkter Zugang zur ca. 58 m² großen Terrasse
  • Südseitig ausgerichteter Garten
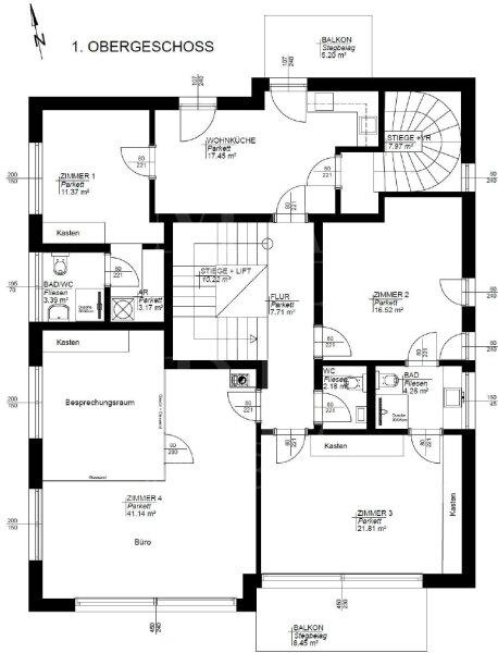
1. Obergeschoss
  • Zwei Schlafzimmer
  • Separates WC
  • Badezimmer mit Dusche und WC
  • Büro für zwei Arbeitsplätze mit integriertem Besprechungsbereich
  • Südseitiger Balkon (ca. 8,45 m²)
Einliegerwohnung (ca. 35,38 m²):
  • Wohnküche
  • Schlafzimmer
  • Badezimmer mit WC
  • Abstellraum
  • Straßenseitiger Balkon (ca. 5,20 m²)
2. Obergeschoss
  • Fitnessraum
  • Sauna
  • Ruheraum
  • Dusche und WC
  • Schlafzimmer
  • Badezimmer
  • Separates WC
  • Gartenseitige Terrasse (ca. 60,48 m²)
Kellergeschoss
  • Vorraum
  • Waschküche
  • Technikraum
  • Garage mit ca. 70 m²
  • Stellplätze für bis zu vier PKW

Ausstattung & Highlights im Überblick

 

Architektur & Bauqualität
  • Massivholzhaus mit vollwertigem Kellergeschoss
  • Personenaufzug mit Haltestellen auf jeder Ebene (barrierefreies Gesamtkonzept)
  • Holz-Alu-Fenster mit 3-fach-Verglasung
  • Sechs Hebe-Schiebe-Glastüren zu Terrassen und Balkonen
  • Glasgeländer auf allen Außenflächen
  • Gebürsteter Eichenparkettboden
  • Flächenbündige Innentüren mit Magnetfallenschlössern
Küchen, Sanitär & Wellness
  • Zwei voll ausgestattete Designküchen mit Geräten von Miele (Induktionskochfeld im Erdgeschoss)
  • Wellness- und Fitnessbereich mit Infrarot-, Dampf- und finnischer Sauna
  • 4 Badezimmer & 6 Toiletten
Smart Home & Sicherheit
  • Loxone BUS-System zur Steuerung von Licht, Raffstores, Heizung, Zutritt, Gartenbewässerung und Sauna
  • Fingerprint-Zugang für Gartentor und Eingangstür
  • Video-Gegensprechanlage
  • Alarmanlage (Bewegungs- und Rauchmelder, GSM-gestützt)
Technik & Multimedia
  • Flächendeckendes WLAN und CAT 6-Verkabelung
  • Serverschrank im Hauswirtschaftsraum
  • 6 TV-Geräte (Wohnzimmer-TV um 360° drehbar)
  • Satellitenanlage & Wetterstation
  • Multiroom-Soundsystem mit Komponenten von Sonos und Bose
  • Bodensteckdosen in Büro, Besprechungsraum und Fitnessbereich
Außenbereiche und Garage
  • 4 Badezimmer & 6 Toiletten
  • Feinsteinzeugbelag auf der Erdgeschoss-Terrasse
  • Auf allen Freiflächen: Kemper-Ventil, Außenbeleuchtung und Steckdosen
  • Hochbeet mit Bewässerung
  • Automatischer Gartenroboter mit integrierten Schleifen
  • Regenwasserzisterne mit Pumpe
  • Fassadenbeleuchtung
  • Separate Mülllösung am Grundstück
  • Garage mit Hubparker-System
  • Zwei (elektrische) Garagentore 

Noch nichts gefunden Wir informieren Sie über geeignete Immobilienangebote noch vor allen anderen.
Legen Sie jetzt Ihren individuellen Suchagenten unter folgendem Link an. Wir schicken Ihnen passende Immobilien exklusiv vorab zu.
Suchagent anlegen - https://realkanzlei-hildegard-mayerl-eva-krulis.service.immo/registrieren/de

Wir weisen darauf hin, dass zwischen dem Vermittler und dem zu vermittelnden Dritten ein familiäres oder wirtschaftliches Naheverhältnis besteht.

Der Vermittler ist als Doppelmakler tätig.


Infrastruktur / Entfernungen

Gesundheit
Arzt <500m
Apotheke <500m
Klinik <1.500m
Krankenhaus <1.000m

Kinder & Schulen
Schule <500m
Kindergarten <500m
Universität <2.000m
Höhere Schule <3.500m

Nahversorgung
Supermarkt <500m
Bäckerei <1.000m
Einkaufszentrum <3.500m

Sonstige
Geldautomat <500m
Bank <500m
Post <500m
Polizei <1.500m

Verkehr
Bus <500m
U-Bahn <1.000m
Straßenbahn <500m
Bahnhof <1.000m
Autobahnanschluss <4.500m

Angaben Entfernung Luftlinie / Quelle: OpenStreetMap

Kabel/SAT/TV: JA
Swimmingpool: JA
Rollstuhlgerecht: JA
Barrierefrei: JA
Provision: 3% des Kaufpreises zzgl. 20% USt.


Alle Details anzeigen

KONTAKT






 

Lasse dich kostenlos vom Anbieter dieser Immobilie zurückrufen.







 


 
MAYERL IMMOBILIEN
Eva Krulis
Telefonnummer anzeigen Telefon Allgemein: +431479411710
 
Bitte dem Makler die FindMyHome.at - ID bekanntgeben: 5633126

Bewertungen dieses Anbieters
Netiquette
Freundlichkeit
Antwortszeit
100 %

BEWERTUNGEN DIESES ANBIETERS

 
Antwortzeit
ø 24h ANTWORT
Weiterempfehlung
WIRD SEHR GERNE

Freundlichkeit
BESONDERS
FREUNDLICH
Netiquette
FINDMYHOME
NETIQUETTE
Auch du kannst bewerten! 7 Tage nach deiner Anfrage erhältst du dafür von uns ein Bewertungsmail.
Alle Infos zu unseren Auszeichnungen und dem FINDMYHOME.AT Qualitätsprogramm findest du hier: Übersicht anzeigen

FINANZIERUNG
?>

Du willst wissen, wie viel dein Umzug kosten wird?

Mach gleich den kostenlosen Preisvergleich und schau, welche seriösen Anbieter in deiner Region günstig deinen Umzug organisieren


ZUM UMZUGS-VERGLEICH
-->

MYHOME BLOG
SuchAgentin auf FindMyHome.at
Unterschiedlichen Rechtsthemen, köstliche Rezepte, neueste Design-Highlights, sowie aktuelle Technik-Tools für Ihr Eigenheim.


FINDMYHOME.AT SUCHAGENTIN
SuchAgentin auf FindMyHome.at
Hallo, soll ich dir ähnliche Immobilien kostenfrei per E-Mail schicken?


Durch die Nutzung unserer Seite erklären Sie sich mit der Verwendung von Cookies zur Verbesserung Ihres Online-Erlebnisses einverstanden. Detaillierte Informationen zu diesem und weiteren Themen erhalten Sie in unserer Datenschutzerklärung.